Y 7100
Les Y 7100 sont des locotracteurs diesel mis en service par la SNCF entre 1958 et 1962.
Ils se caractérisent par une transmission hydromécanique qui les différencie des Y 7400 à transmission mécanique ; ces deux séries doivent contribuer au remplacement d'un parc disparate de locotracteurs et de petites locomotives à vapeur datant d'avant la Seconde Guerre mondiale.
Les derniers d'entre eux sont retirés du service en 2015 mais quelques-uns sont encore utilisés par des tiers. D'autres, dans des dépôts ou des ateliers SNCF, ne quittent plus l'enceinte des établissements qui les emploie et ne figurent plus dans les inventaires de la SNCF car ils sont assimilés à de l'outillage. D'autres, enfin, sont profondément modifiés avec une nouvelle chaîne cinématique (moteur et transmission) et une nouvelle cabine pour devenir, en compagnie de Y 7400 ayant subi les mêmes modifications, des Y 9000.
Genèse de la série
Les Y 7100 forment, avec les Y 7400, la plus importante des séries unifiées de locotracteurs de la SNCF, et ont été conçus pour assurer aussi bien du service de ligne que des manœuvres. À partir de 1958, ils ont remplacé, dans un souci d'unification, les nombreuses séries de locotracteurs existantes, aux caractéristiques très variables et ne comprenant chacune qu'une nombre réduit d'unités, mises en service par les différents réseaux avant la création de la SNCF ainsi que de petites locomotives à vapeur qui assurent les mêmes tâches[3].
Description
Caractéristiques

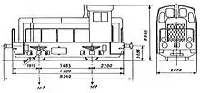
Ces locotracteurs présentent un aspect extérieur absolument identique à celui des Y 7400 ; seul le mode de transmission les distingue. Ils se composent d'une châssis reposant sur deux essieux parallèles et supportant l'appareillage et la cabine de conduite. L'appareillage est réparti sous deux capots de taille inégale de part et d'autre de la cabine de conduite. À l'avant, le grand capot abrite le moteur, son système de refroidissement et les auxiliaires. Le petit capot, à l'arrière, recouvre les bonbonnes d'air comprimé. La boîte de vitesse prend place dans le châssis, entre les deux essieux.
Les Y 7100 sont équipés d'un moteur Poyaud PYT à six cylindres sans turbocompresseur d'une puissance limitée à 129 kW relié à une boîte de vitesses hydromécanique Voith L213U de conception allemande ; celle-ci, par l'intermédiaire de chaînes, transmet le mouvement aux deux essieux du locotracteur. Ce mode de transmission différencie les Y 7100 des Y 7400 qui disposent d'une boîte mécanique Asynchro fabriquée en France par les CFD[4].
La cabine est surélevée pour une meilleure visibilité et possède deux pupitres de conduite symétriquement positionnés par rapport à l'axe de la machine. Seul celui qui est disposé à gauche dispose de l'ensemble des commandes, celui placé à droite ne possédant que celles strictement nécessaires à la marche du locotracteur (manipulateur de traction, commande des sablières et avertisseur). Chaque poste de conduite est accompagné d'un petit siège sans dossier. Le locotracteur ne possède pas d'indicateur-enregistreur de vitesse, mais un dispositif comptabilisant les heures de fonctionnement, utilisé pour programmer les visites d'entretien de l'engin[5].
Les locotracteurs mesurent 8,940 m de long pour une masse en ordre de marche de 32 t. Leur vitesse est limitée à 54 km/h en service mais, acheminés comme véhicules une fois leurs chaînes démontées, ils sont autorisés à rouler à 80 km/h[4].
Leurs évolutions, souvent constituées d'allers et retours sur de faibles distances, et leur dénomination en « Y » leur ont valu le surnom de « yoyos »[6].
Livrées
La livrée initiale des Y 7100 est vert extérieur 306 à bandes bouton d'or 411, avec châssis en noir et traverses de choc en rouge vermillon 605. Elle est remplacée à partir de par la livrée vert celtique 301 à bandes et traverses de choc jaune jonquille 401, avec châssis en gris ardoise 807[7].
À partir de 1983, le livrée dite « Arzens » des engins de manœuvre est appliquée aux Y 7100. Elle est initialement composée de chamois 432, havane 501, gris perle 805 et gris ardoise 807. La teinte chamois se décolorant en rose avec le temps, elle est remplacée à partir de 1989 par de l'orange TGV 535 et le gris perle par du gris 804[8],[9].
Deux engins en service à la Cité du train sont dotés d'une livrée de damiers bariolés reprenant la charte couleurs de la cité[6]. Les exemplaires achetés neufs auprès des constructeurs, rachetés à la SNCF ou ceux qui opèrent l'intérieur de dépôts ou d'ateliers portent souvent des livrées spécifiques[10].
Y 7148, livrée verte.
Y 7134, livrée « Arzens ».
Y 7108, livrée Cité du train.
Engin particulier
L'Y 7192 est modifié dès sa fabrication en 1960 pour devenir le Y 7001, prototype des Y 7400 à transmission mécanique, affecté à la gare de L'Aigle ; le numéro Y 7192 n'apparaît donc jamais dans les inventaires SNCF et, dans les faits, la série n'a jamais comporté que 209 exemplaires[9].
Services effectués et dépôts titulaires
Les livraisons des Y 7100 débutent le avec trois mois d'avance sur le calendrier prévu et à une cadence de cinq engins par mois au lieu de quatre[11]. Les 7101 à 1791 et 1793 à 7230 sont livrés par les établissements Billard à Tours entre 1958 et 1960 et les 7231 à 7310 par Decauville à Corbeil-Essonnes de 1960 à 1962, la dernière livraison intervenant le [4],[12].
Les Y 7100 sont destinés en priorité à réaliser les manœuvres dans les gares de moyenne importance ; présents sur l'ensemble du réseau, ils assurent au début des années 1960, avec d'autres séries d'engins diesels, plus de la moitié des manœuvres à la place des locomotives à vapeur. Ils se montrent également sur de petites lignes locales, en tête de compositions courtes mixtes marchandises-voyageurs, bien que ce type de train ait tendance à se raréfier quand les Y 7100 sont mis en service ; ils peuvent ainsi tracter une voiture DEV Inox ou une remorque d'autorail[13].
Il leur arrive également de tracter des trains d'entretien (auscultation des voies, maintenance des caténaires, désherbage)[14]. En 1976, au plus fort de leur déploiement, les Y 7100 sont répartis dans vingt-six dépôts sur l'ensemble de la France[15].

Les premières radiations ont lieu en 1994, mais quelques engins, encore en bon état, sont revendus à des industriels ou des associations de sauvegarde du patrimoine ferroviaire[16]. Ils peuvent également être transformés en « LocMas » (locotracteurs de manœuvres) ; ces engins, qui assurent des manœuvres dans l'enceinte de l'atelier ou du dépôt où ils sont affectés sans jamais en sortir, sont considérés comme du simple outillage et ne font plus partie des inventaires du matériel moteur[17]. Le dernier exemplaire de la série, le Y 7258, est radié le [18].
Au , soixante-douze exemplaires ont fait l'objet d'une reconstruction partielle par Socofer (Saint-Pierre-des-Corps) et la SNCF (Technicentre industriel de Rouen Quatre-Mares), incluant une nouvelle cabine agrandie et plus ergonomique, une re-motorisation avec un moteur Diesel MAN, une nouvelle chaîne cinématique (boîte de vitesses Voith, transmission par cardans), la possibilité de circuler en couplages de deux unités. Ces locotracteurs constituant la nouvelle série des Y 9000 sont aussi issus de la transformation de Y 7400[19].
| Motrices | Mise en service | Radiation | Livrée | Dépôts | Baptême (Date) | Activité |
|---|---|---|---|---|---|---|
| 7101 | Vert | Lens | LocMa UO de Dunkerque | |||
| 7102 | Transf. Y 9037 | Vert | STF Thionville | / | ||
| 7103 | Vert | Metz | / | |||
| 7104 | Transf. Y 9038 | Arzens | Metz | / | ||
| 7105 | Vert | Béziers | / | |||
| 7106 | Arzens | Béziers | Vendu à Toulousaine de farines | |||
| 7107 | Transf. Y 9052 | Arzens | STF Thionville | / | ||
| 7108 | Cité du Train | Strasbourg | Conservé à la Cité du train de Mulhouse | |||
| 7109 | Transf. Y 9006 | Arzens | Achères | / | ||
| 7110 | Transf. Y 9035 | Vert | STF Thionville | / | ||
| 7111 | Arzens | Strasbourg | / | |||
| 7112 | Transf. Y 9039 | Arzens | STF Thionville | / | ||
| 7113 | Arzens | STF Thionville | / | |||
| 7114 | Transf. Y 9107 | Arzens | STF Thionville | / | ||
| 7115 | Transf. Y 9081 | Vert | STF Thionville | / | ||
| 7116 | Transf. 9082 | Arzens | STF Thionville | / | ||
| 7117 | Arzens | Epernay | / | |||
| 7118 | Arzens | Sotteville | Vendu à Normande de Manutention | |||
| 7119 | Arzens | Marseille | / | |||
| 7120 | Vert | Béziers | / | |||
| 7121 | Vert | STF Thionville | / | |||
| 7122 | Arzens | STF Thionville | LocMa UO de Dunkerque | |||
| 7123 | Transf. Y 9089 | Vert | STF Thionville | / | ||
| 7124 | Vert | Dijon-Perrigny | / | |||
| 7125 | Vert | Metz | LocMa UOM de Thionville | |||
| 7126 | Arzens | Longueau | / | |||
| 7127 | Transf. Y 9030 | Vert | STF Thionville | / | ||
| 7128 | Vert | Sotteville | Vendu à UCASPOR | |||
| 7129 | Transf. Y 9088 | Vert | STF Thionville | / | ||
| 7130 | / | Arzens | STF Loc. INFRA SLI | MAT | ||
| 7131 | Arzens | Avignon | / | |||
| 7132 | Vert | STF Thionville | / | |||
| 7133 | Transf. Y 9026 | Vert | Metz | / | ||
| 7134 | Transf. Y 9083 | Arzens | STF Thionville | / | ||
| 7135 | Transf. Y 9042 | Arzens | STF Thionville | / | ||
| 7136 | Transf. Y 9034 | Arzens | STF Thionville | / | ||
| 7137 | Arzens | Avignon | / | |||
| 7138 | Arzens | STF Thionville | / | |||
| 7139 | Transf. Y 9074 | Vert | STF Thionville | / | ||
| 7140 | Vert | Avignon | / | |||
| 7141 | Transf. Y 9060 | Vert | STF Thionville | / | ||
| 7142 | Arzens | Avignon | Vendue à Ateliers d'Occitanie | |||
| 7143 | Vert | Bordeaux | / | |||
| 7144 | Transf. Y 9027 | Arzens | Metz | / | ||
| 7145 | Transf. Y 9020 | Arzens | STF Thionville | / | ||
| 7146 | Vert | STF Thionville | / | |||
| 7147 | Vert | Longueau | / | |||
| 7148 | Vert | STF Thionville | / | |||
| 7149 | Arzens | STF Thionville | / | |||
| 7150 | Vert | STF Thionville | / | |||
| 7151 | Transf. Y 9018 | Arzens | STF Thionville | / | ||
| 7152 | Transf. Y 9108 | Arzens | STF Thionville | / | ||
| 7153 | Arzens | Tous-St-Pierre | / | |||
| 7154 | Vert | Bordeaux | / | |||
| 7155 | Vert | Achères | / | |||
| 7156 | Arzens | Lyon-Vaise | / | |||
| 7157 | Transf. Y 9056 | Arzens | STF Thionville | / | ||
| 7158 | / | Vert | STF Thionville | Infra | ||
| 7159 | Transf. Y 9019 | Arzens | STF Thionville | / | ||
| 7160 | Arzens | Tous-St-Pierre | / | |||
| 7161 | Transf. Y 9075 | Vert | STF Thionville | / | ||
| 7162 | Transf. Y 9012 | Arzens | STF Thionville | / | ||
| 7163 | Transf. Y 9098 | Arzens | STF Thionville | / | ||
| 7164 | Vert | Bordeaux | / | |||
| 7165 | Vert | STF Thionville | / | |||
| 7166 | Vert | Lens | / | |||
| 7167 | Vert | STF Thionville | / | |||
| 7168 | Arzens | Tours-St-Pierre | / | |||
| 7169 | Transf. Y 9046 | Arzens | STF Thionville | / | ||
| 7170 | Transf. Y 9086 | Arzens | STF Thionville | / | ||
| 7171 | Vert | Hendaye | / | |||
| 7172 | Vert | Metz | Vendu à VFLI | |||
| 7173 | Vert | Béziers | / | |||
| 7174 | Arzens | Lens | / | |||
| 7175 | Vert | STF Thionville | / | |||
| 7176 | Transf. Y 9073 | Arzens | STF Thionville | / | ||
| 7177 | Arzens | STF Thionville | / | |||
| 7178 | Transf. Y 9009 | Arzens | STF Thionville | / | ||
| 7179 | Vert | Dijon-Perrigny | / | |||
| 7180 | Transf. Y 9001 | Arzens | Achères | / | ||
| 7181 | Vert | Avignon | / | |||
| 7182 | Vert | Avignon | Vendu à Ets Claude | |||
| 7183 | Vert | Limoges | / | |||
| 7184 | Transf. Y 9103 | Arzens | STF Thionville | / | ||
| 7185 | Arzens | Achères | / | |||
| 7186 | Vert | Bordeaux | / | |||
| 7187 | Arzens | Limoges | / | |||
| 7188 | Transf. Y 9106 | Arzens | STF Thionville | / | ||
| 7189 | Transf. Y 9044 | Arzens | STF Thionville | / | ||
| 7190 | Transf. Y 9079 | Vert | STF Thionville | / | ||
| 7191 | Vert | Lens | / | |||
| 7192 | Devenu Y 7001 | Vert | / | / | ||
| 7193 | Arzens | Longueau | / | |||
| 7194 | Transf. Y 9105 | Vert | STF Thionville | / | ||
| 7195 | Transf. Y 9028 | Vert | STF Thionville | / | ||
| 7196 | Transf. Y 9049 | Vert | STF Thionville | / | ||
| 7197 | Vert | Lyon-Vaise | / | |||
| 7198 | Vert | Sotteville | / | |||
| 7199 | Cité du Train | Achères | Conservé à la Cité du train de Mulhouse | |||
| 7200 | Arzens | Metz | Vendue à VFLI | |||
| 7201 | Transf. Y 9036 | Vert | STF Thionville | / | ||
| 7202 | Vert | Achères | / | |||
| 7203 | Arzens | Sotteville | / | |||
| 7204 | Transf. Y 9084 | Vert | STF Thionville | / | ||
| 7205 | Transf. Y 9109 | Arzens | STF Thionville | / | ||
| 7206 | Transf. Y 9013 | Arzens | STF Thionville | / | ||
| 7207 | Fantôme | Rennes | / | |||
| 7208 | Arzens | STF Thionville | Conservé par le Vélorail du Larzac, à Ste-Eulalie de Cernon | |||
| 7209 | Transf. Y 9058 | Vert | STF Thionville | / | ||
| 7210 | Arzens | Béziers | / | |||
| 7211 | Vert | Tours-St-Pierre | / | |||
| 7212 | Arzens | Bordeaux | / | |||
| 7213 | Vert | Bordeaux | / | |||
| 7214 | Arzens | Avignon | Vendu à VFLI | |||
| 7215 | / | Vert | Lyon-Vaise | Fret | ||
| 7216 | Transf. Y 9078 | Arzens | STF Thionville | / | ||
| 7217 | Arzens | lens | Conservé à Mortagne sur Sèvre | |||
| 7218 | Vert | Sotteville | / | |||
| 7219 | Transf. Y 9094 | Arzens | STF Thionville | / | ||
| 7220 | Transf. Y 9031 | Arzens | STF Thionville | / | ||
| 7221 | Transf. Y 9077 | Arzens | STF Thionville | / | ||
| 7222 | Transf. Y 9017 | Arzens | STF Thionville | / | ||
| 7223 | Arzens | Nevers | / | |||
| 7224 | Vert | STF Thionville | / | |||
| 7225 | Transf. Y 9067 | Arzens | STF Thionville | / | ||
| 7226 | Vert | Sotteville | / | |||
| 7227 | Transf. Y 9093 | Vert | STF Thionville | / | ||
| 7228 | Arzens | Avignon | / | |||
| 7229 | Vert | STF Thionville | / | |||
| 7230 | Arzens | Nevers | / | |||
| 7231 | Vert | Epernay | / | |||
| 7232 | Vert | Metz | / | |||
| 7233 | Transf. Y 9041 | Arzens | STF Thionville | / | ||
| 7234 | Arzens | Dijon-Perrigny | / | |||
| 7235 | Arzens | STF Thionville | / | |||
| 7236 | Vert | Lens | / | |||
| 7237 | Arzens | Lens | / | |||
| 7238 | Transf. Y 9054 | Arzens | STF Thionville | / | ||
| 7239 | Arzens | Hendaye | / | |||
| 7240 | Arzens | Limoges | / | |||
| 7241 | Arzens | Hendaye | / | |||
| 7242 | Transf. Y 9052 | Arzens | STF Thionville | / | ||
| 7243 | Arzens | Avignon | / | |||
| 7244 | Arzens | STF Thionville | / | |||
| 7245 | Vert | Metz | Vendue à VFLI | |||
| 7246 | Arzens | Béziers | EP Ateliers d'Occitanie à Narbonne | |||
| 7247 | Vert | Metz | / | |||
| 7248 | Vert | Epernay | / | |||
| 7249 | Vert | Achères | / | |||
| 7250 | Transf. Y 9021 | Arzens | STF Thionville | / | ||
| 7251 | Arzens | Longueau | / | |||
| 7252 | Vert | Lens | / | |||
| 7253 | Arzens | Longueau | / | |||
| 7254 | Transf. Y 9076 | Arzens | STF Thionville | / | ||
| 7255 | Arzens | Limoges | / | |||
| 7256 | Arzens | Nevers | / | |||
| 7257 | Transf. Y 9100 | Vert | STF Thionville | / | ||
| 7258 | Arzens | LocMa Nîmes | Matériel | |||
| 7259 | Transf. Y 9063 | Arzens | STF Thionville | / | ||
| 7260 | Vert | Marseille | / | |||
| 7261 | Arzens | Avignon | / | |||
| 7262 | Transf. Y 9025 | Arzens | Metz | / | ||
| 7263 | Transf. Y 9080 | Vert | STF Thionville | / | ||
| 7264 | Transf. Y 9029 | Vert | STF Thionville | / | ||
| 7265 | Vert | Bordeaux | / | |||
| 7266 | Vert | Tours-St-Pierre | / | |||
| 7267 | Vert | Bordeaux | / | |||
| 7268 | Arzens | STF Thionville | / | |||
| 7269 | Transf. Y 9070 | Arzens | STF Thionville | / | ||
| 7270 | Transf. Y 9104 | Vert | STF Thionville | / | ||
| 7271 | Arzens | STF Thionville | / | |||
| 7272 | Vert | Lens | / | |||
| 7273 | Vert | Achères | / | |||
| 7274 | Transf. Y 9040 | Vert | STF Thionville | / | ||
| 7275 | Arzens | Marseille | / | |||
| 7276 | Arzens | Lyon-Vaise | / | |||
| 7277 | Vert | Avignon | / | |||
| 7278 | Arzens | Avignon | / | |||
| 7279 | Vert | Chambéry | / | |||
| 7280 | Vert | Longueau | / | |||
| 7281 | Vert | Achères | / | |||
| 7282 | Vert | Sotteville | / | |||
| 7283 | Arzens | Lens | / | |||
| 7284 | Vert | Tours-St-Pierre | / | |||
| 7285 | Vert | Lens | / | |||
| 7286 | Transf. Y 9090 | Arzens | STF Thionville | / | ||
| 7287 | Vert | STF Thionville | / | |||
| 7288 | Arzens | STF Thionville | / | |||
| 7289 | / | Arzens | STF Loc. INFRA SLI | MAT | ||
| 7290 | Transf. Y 9016 | Arzens | STF Thionville | / | ||
| 7291 | Transf. Y 9096 | Arzens | STF Thionville | / | ||
| 7292 | Vert | Sotteville | / | |||
| 7293 | Transf. Y 9033 | Vert | STF Thionville | / | ||
| 7294 | Arzens | Sotteville | Conservé à Mortagne sur Sèvre | |||
| 7295 | Vert | Achères | / | |||
| 7296 | Transf. Y 9055 | Arzens | STF Thionville | / | ||
| 7297 | Arzens | STF Thionville | / | |||
| 7298 | Arzens | STF Thionville | / | |||
| 7299 | Vert | STF Thionville | / | |||
| 7300 | Vert | Achères | / | |||
| 7301 | Arzens | Marseille | / | |||
| 7302 | Vert | Achères | / | |||
| 7303 | Arzens | Avignon | Conservé à Mortagne sur Sèvre | |||
| 7304 | Arzens | STF Thionville | / | |||
| 7305 | Arzens | STF Thionville | / | |||
| 7306 | Arzens | STF Thionville | / | |||
| 7307 | Arzens | Dijon-Perrigny | / | |||
| 7308 | Transf. Y 9015 | Arzens | STF Thionville | / | ||
| 7309 | Arzens | Lyon-Vaise | / | |||
| 7310 | Transf. Y 9023 | Arzens | Achères | / |
Préservation
Une vingtaine d'exemplaires de Y 7100 sont préservés. Parmi ceux-ci, certains sont exploités par des associations de sauvegarde du patrimoine ferroviaire, qu'elles en soient propriétaires ou qu'elles bénéficient d'une convention de mise à disposition par la SNCF.
- Y 7108 : préservé en état de marche par la Cité du train à Mulhouse[20] ;
- Y 7199 : préservé en état de marche par la Cité du train à Mulhouse[20] ;
| Images externes | |
| Y 7208 du TTL sur medias.caravelis.com | |
| Y 7288 de l'Agrivap sur patrimoine ferroviaire.fr | |
| Y 7303 du CFV sur rail86.free.fr | |
- Y 7208 : préservé en état de marche par le Train touristique du Larzac (TTL)[21] ;
- Y 7217 : préservé en état de marche par le Chemin de fer de la Vendée (CFV)[22] ;
- Y 7282 : préservé en état de marche par l'écomusée de Marquèze[23] ;
- Y 7288 : préservé en état de marche par l'Agrivap[24] ;
- Y 7294 : préservé en état de marche par le Train touristique de Guîtres à Marcenais (TTGM)[25] ;
- Y 7303 : préservé en état de marche par le Chemin de fer de la Vendée (CFV)[22].
Modélisme
Y 7100 et Y 7400 étant extérieurement identiques, certains fabricants de modèles réduits proposent à la vente une base commune, des jeux de marquages différents permettant d'obtenir l'une ou l'autre série[26].
Au début des années 1980, la firme Carmina propose le Y 7435 à l'échelle HO. En 1991, Atmofer 87 met sur le marché un modèle Y 7100/7400 en HO avec plusieurs numérotations, en livrée verte ou Arzens. En 2003, c'est au tour de ModelLoco de commercialiser un Y 7100/7400, toujours en HO. C'est encore la même échelle qui est retenue par LS Models pour reproduire, début 2007, un Y 7100/7400[27].
Le modèle est également reproduit à l'échelle 0 par AMJL et L'Obsidienne, ainsi qu'à l'échelle N par Transmondia.
Références
- Revue bimestrielle Voies Ferrées, « Le matériel moteur de la SNCF », en plusieurs articles sur plusieurs numéros par année
- Revue mensuelle Rail Passion, « État trimestriel du matériel moteur SNCF », un article par trimestre
- Loïc Fieux, « Des fourmis ouvrières omniprésentes », p. 3.
- Loïc Fieux, « Variantes et évolutions au quotidien », p. 12.
- Loïc Fieux, « Levier en main », p. 30.
- « Y Expérience », sur le site de la Cité du train (consulté le ).
- Jehan-Hubert Lavie, « Sous le signe de la visibilité », p. 20-21.
- Jehan-Hubert Lavie, « Sous le signe de la visibilité », p. 21-22.
- Jean-Paul Demoy, « Le matériel moteur de la SNCF en 2002 (5e partie) », Voies ferrées, no 134, , p. 20-21.
- Jehan-Hubert Lavie, « Sous le signe de la visibilité », p. 23.
- Loïc Fieux, « Vingt ans au sommet... des locotracteurs », p. 42.
- Sylvain Moreau, « Locotracteurs Y 7100 : modernisation en vue », Rail Passion, no 61, , p. 22.
- Loïc Fieux, « Vingt ans au sommet... des locotracteurs », p. 42-43.
- Loïc Fieux, « Vingt ans au sommet... des locotracteurs », p. 43.
- Jehan-Hubert Lavie, « De l'Exploitation au Fret », p. 37.
- Loïc Fieux, « Vingt ans au sommet... des locotracteurs », p. 45-46.
- Loïc Fieux, « Des fourmis ouvrières omniprésentes », p. 5.
- « Inventaire des Y 7100 » [PDF], sur Trains du Sud-Ouest (consulté le ).
- « Y 9000 SNCF », sur Trains d'Europe (consulté le ).
- « Le panorama ferroviaire », sur le site de la Cité du train (consulté le ).
- « SNCF locotr. Y-7208 – TTL (Larzac) », sur le site du Patrimoine ferroviaire français (consulté le ).
- « Locomotives Diesel », sur le site du Chemin de fer de la Vendée (consulté le ).
- « SNCF locotracteur Y-7282 – PLG », sur le site du Patrimoine ferroviaire français (consulté le ).
- « SNCF locotracteur Y-7288 – AGRIVAP », sur le site du Patrimoine ferroviaire français (consulté le ).
- « Guîtres. Un nouveau train entre en gare », Le Résistant, (lire en ligne).
- Jean-Paul Quatresous, « Indispensables Yoyo », p. 47-48.
- « Les Y 7100-7400 LS Models en bref », Loco Revue, no 715, , p. 64-65.
Voir aussi
Bibliographie
: document utilisé comme source pour la rédaction de cet article.
- Ferrovissimo, « les portraits du rail », no 8 « Y 7100 et 7400 : les petites mains des grandes manœuvres », .

- Jacques Defrance, "Le matériel moteur de la SNCF", N.M. La Vie du Rail, 1969 et réédition 1978.
- M. Olive, « Les locotracteurs diesel-hydraulique de 32 t, série Y 7100 de la S.N.C.F. », Revue générale des chemins de fer, , p. 743-749.
- Aurélien Prévot, « Les Y 7100-7400, des engins incontournables », Loco Revue, Auray, LR Presse, no 801, , p. 60-61.
- Denis Redoutey, Marc Carémantrant et Patrick Staehlé, "Le matériel moteur de la SNCF", Paris, La Vie du Rail, , 399 p. (ISBN 978-2-915034-65-3).