Palais de Topkapı
Le palais de Topkapı (ou Topkapi[1] ; en turc : Topkapı Sarayı [top.kɑ.'pɯ sɑ.ɾɑ.'jɯ], ou en turc ottoman طوپقپو سرايى est un palais d'Istanbul, en Turquie. De 1465 à 1853, il est la résidence de ville, principale et officielle, du sultan ottoman. Le palais est construit sur l’emplacement de l’acropole de l’antique Byzance. Il domine la Corne d'Or, le Bosphore et la mer de Marmara. Le nom de « Topkapı Sarayı » signifie littéralement « palais de la porte des canons », d'après le nom d'une porte voisine aujourd'hui disparue. Il s'étend sur 700 000 m2 (70 ha) et est entouré de cinq kilomètres de remparts.
| Palais de Topkapı | |||||
La façade est du noyau intérieur du palais. | |||||
| Nom local | Topkapı Sarayı | ||||
|---|---|---|---|---|---|
| Période ou style | Ottoman | ||||
| Type | Palais | ||||
| Architecte | Davud Ağa Alaüddin | ||||
| Début construction | 1459 | ||||
| Propriétaire initial | Mehmet II | ||||
| Destination initiale | Résidence du sultan | ||||
| Propriétaire actuel | République de Turquie (ministère de la Culture et du Tourisme) | ||||
| Destination actuelle | Musée | ||||
| Protection | |||||
| Coordonnées | 41° 00′ 47″ nord, 28° 59′ 02″ est | ||||
| Pays | Turquie | ||||
| Région historique | Empire ottoman | ||||
| Localité | Istanbul | ||||
| Géolocalisation sur la carte : Turquie
Géolocalisation sur la carte : province d'Istanbul
Géolocalisation sur la carte : Istanbul
Géolocalisation sur la carte : Fatih
| |||||
| Site web | www.millisaraylar.gov.tr/saraylar/topkapi-sarayi et www.millisaraylar.gov.tr/en/palaces/topkapi-palace | ||||

La construction commence en 1459, sous le sultan Mehmed II[2], conquérant de la Constantinople byzantine. Par la suite, le palais impérial connaît de nombreux agrandissements : la construction du harem au cours du XVIe siècle, ou les modifications après le séisme de 1509 et l'incendie de 1665. Le palais est un complexe architectural composé de quatre cours principales et de nombreux bâtiments annexes. Au plus fort de son existence comme résidence impériale, il abritait plus de 4 000 personnes et s'étendait sur une zone encore plus vaste.
Le palais de Topkapı perd progressivement de son importance à partir de la fin du XVIIe siècle, lorsque les sultans lui préfèrent un nouveau palais, le long du Bosphore. En 1853, le sultan Abdülmecid Ier décide de déplacer sa cour vers le palais de Dolmabahçe, premier palais de style européen de la ville, dont la construction vient de se terminer. Certaines fonctions, comme le trésor impérial, la bibliothèque, les mosquées et la monnaie restent à Topkapı.

Après la fin de l'Empire ottoman en 1921, le palais de Topkapı est transformé en musée de l'ère ottomane par décret du nouveau gouvernement républicain du . Le musée du palais de Topkapı est, depuis, placé sous l'administration du ministère de la Culture et du Tourisme. Si le palais comporte des centaines de pièces et de chambres, seules les plus importantes sont habituellement ouvertes aux visiteurs. Le complexe est surveillé par des fonctionnaires du ministère ainsi que des gardes de l'armée turque. Il offre de nombreux exemples de l'architecture ottomane et conserve d'importantes collections de porcelaine, de vêtements, d'armes, de boucliers, d'armures, de miniatures ottomanes, de manuscrits de calligraphie islamique et de peintures murales, ainsi qu'une exposition permanente du trésor et de la joaillerie de l'époque ottomane.
Le palais de Topkapı est répertorié parmi les monuments de la zone historique d'Istanbul. Il a été inscrit sur la liste du patrimoine mondial de l'UNESCO en 1985, où il est décrit comme « un ensemble incomparable de bâtiments construits sur quatre siècles, unique par la qualité architecturale de ses bâtiments autant que par leur organisation qui reflète celle de la cour ottomane »[3].
En 2018, il s'agit du musée le plus visité de Turquie avec 2 980 450 de visiteurs[4].
Histoire et conception du palais
Un ancien site grec


Le palais est situé sur la « pointe du Sérail » ((tr) Sarayburnu), un promontoire donnant sur la Corne d'Or et la mer de Marmara, avec de nombreux points de vue sur le Bosphore. Cette hauteur qui commande le détroit était l'acropole de l'ancienne ville grecque de Byzance. Une citerne byzantine, sous la seconde cour, a été utilisée tout au long de l'époque ottomane. Des fouilles y ont été menées, ainsi que sur les vestiges d'une petite église appelée « basilique du palais ». L'église Sainte-Irène, bien que située dans la première cour, n'est pas considérée comme faisant partie de l'ancienne acropole byzantine.
Après la conquête ottomane et la Chute de Constantinople en 1453, le sultan Mehmed II trouve le Grand Palais impérial byzantin de Constantinople en grande partie ruiné[Necipoğlu 1].
La Cour ottomane s'installe d'abord dans le « Vieux Palais » ((tr) Eski Sarayı) (qui deviendra au XXe siècle le site de l'Université d'Istanbul). Le sultan recherche un meilleur emplacement, et choisit l'ancienne acropole byzantine. Il ordonne en 1459 la construction d'un « Nouveau Palais » ((tr) Yeni Sarayı). Il ne reçoit le nom de Topkapi qu'au XIXe siècle.
Le plan de base
.JPG.webp)
.JPG.webp)
Le sultan Mehmed II lui-même crée la disposition de base du palais. Il choisit le point le plus élevé du promontoire pour ses appartements[Necipoğlu 2]. C'est à partir de ce noyau privé que commencent à s'édifier les autres pavillons, depuis le promontoire vers les rives du Bosphore. L'ensemble du complexe est entouré de hauts murs, dont certains remontent à l'acropole byzantine. Ce schéma de base continue à régir les futures rénovations et extensions.
Selon le témoignage de l'historien contemporain Kritovolous d'Imbros[Necipoğlu 3] :

« [Le sultan] [...] prit soin de convoquer les meilleurs ouvriers de toutes parts - maçons, tailleurs de pierre, charpentiers [...]. Il voulait construire de grands édifices qui devaient être utiles et devaient, à tous égards, rivaliser avec les plus grandes et les meilleures réalisations du passé. Pour cette raison, il veillait à ce qu'on accordât le plus grand soin à la supervision du travail et à la qualité des matériaux de toutes sortes, et il était également préoccupé par toutes les dépenses que cela occasionnait. »
Les témoignages diffèrent sur les dates de début et d'achèvement de la construction du noyau central : Kritovolous donne les dates de 1459-1465, alors que d'autres sources suggèrent une date d'achèvement proche de la fin des années 1460[Necipoğlu 4].
Contrairement à d'autres résidences royales qui ont des plans très stricts (comme le château de Schönbrunn ou le château de Versailles), le palais de Topkapi se développe au cours des siècles, avec des ajouts et des changements opérés par différents sultans. L'asymétrie de l'ensemble résulte de cette croissance erratique et de ces modifications accumulées[5], bien que le projet de Mehmed II ait toujours été préservé.
La plupart des changements ont lieu durant le règne du sultan Soliman le Magnifique, dans les années 1520-1560. Avec l'expansion rapide de l'Empire ottoman, Soliman veut que sa résidence soit le reflet de sa puissance et de sa gloire. De nouveaux bâtiments sont construits, d'autres agrandis, sous la responsabilité de l'architecte en chef de cette période, le persan Alaüddin, également connu sous le nom d'Acem Ali[Necipoğlu 5]. Il est aussi le responsable de l'extension du harem.
En 1574, quand un grand incendie détruit les cuisines, Mimar Sinan est chargé par le sultan Selim II de la reconstruction des parties détruites, qu'il agrandit, ainsi que le harem, les bains, le salon privé et divers pavillons annexes[Necipoğlu 5]. À la fin du XVIe siècle, le palais acquiert son aspect actuel.

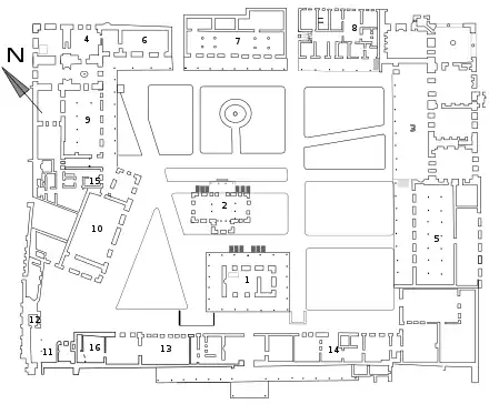
A. Première cour B • Anciens jardins, près du mur le long de la mer de Marmara • C. Cinquième cour, aujourd'hui partie du parc Gülhane, s'étendant jusqu'à la Corne d'Or à Seraglio • D. Anciens jardins, aujourd'hui parc Gülhane, s'étend jusqu'à la ligne de chemin de fer • E. Niveau où se trouvent le Pavillon des Tuiles et d'autres musées.
1) Fontaine du bourreau • 2) Porte du milieu, entrée du musée • 3) Deuxième Cour • 4) Selâm ou pierre de bienvenue • 5) Sommet de la citerne byzantine • 6) Vieux puits • 7) Fontaine • 8) Porte de la Mort • 9) Mosquée de Haci Beşir Ağa • 10) Porte de la mosquée • 11) Porte extérieure de la Mort • 12) Écuries impériales • 13) Dortoirs des hallebardiers à tresses • 14) Terrasse • 15) Arcades avec inscriptions anciennes • 16) Porte des Carrosses, vers le harem • 17) Chambre du Conseil impérial • 18) Chambre des scribes • 19) Chambre du grand Vizir • 20) Trésor impérial • 21) Pierre cible • 22) Monument à Sukhum • 23) Porte vers les pompes du palais • 23a) Pompes • 24) Cuisine des sultans, des princes et de la sultane validé • 26) Cuisine des femmes du harem • 27) Cuisine des sentinelles • 28) Cuisines du divan • 29) Cuisine des pages • 30) Cuisine des serviteurs • 31) Cuisine des femmes servant le harem • 32) Cuisine pour les servants civils du divan, pièce du fabricant de café et pâtisserie • 33) Mosquée des cuisiniers • 34) Dortoir des apprentis cuisiniers et plongeurs • 35) fonderie d'étain • 36) zone utilisée par les serviteurs de la cuisine • 37) Porte de la Félicité • 38) Troisième Cour • 39) Salle d'audience • 40) Librairie d'Ahmed III • 41) Quartiers des eunuques blancs • 42) Porte de la volière • 43) Cuisine privée du sultan • 44) Rue de marbre du pavillon du manteau sacré à la salle du trône • 45) Mosquée des Ağas • 46) Mosquée du harem • 47) Chapelle • 48) Dortoirs des pages de la chambre forte sacrée • 49) Chambre forte sacrée • 50) Salle du foulard • 51) Pavillon du manteau sacré • 51a) Antichambre de la chambre forte sacrée • 51b) Salle du manteau sacré • 52) Pierre où s'arrêtait le sultan • 53) Fontaine • 54) Trésor des reliques sacrées (anc. Trésor des armures) • 55) Dortoir des pages du trésor • 56) Dortoir des pages du commissariat • 57) Passage souterrain de la troisième à la quatrième cour • 58) Trésor impérial • 59) Dortoir des pages royaux • 60) Conservatoire • 61) Quartiers des eunuques blancs • 62) Corridor à piliers • 63) Porte vers le harem et la route dorée • 64) Salle des circoncisions • 65) Pavillon d'Erevan • 66) Quatrième Cour (jardin des tulipes) • 67) Fontaine à étages • 68) Piscine avec jets sur la terrasse • 69) Terrasse de marbre • 70) Jardins Iftariye • 71) Porte des éléphants ou du jardin • 72) Pavillon de Bagdad • 73) Pavillon sur la terrasse et pavillon de Mustafa pacha • 74) Salle du médecin principal • 75) Jardin de la quatrième cour • 76) Porte des jardins privés, reliant la quatrième et la cinquième cour, aujourd'hui partie du parc Gülhane • 77) Guérites • 78) Grand Pavillon • 79) Mosquée sur la terrasse • 80) Garde-robe • 81) Piscine sculptée de thèmes marins.
Le palais est un vaste complexe constitué d'un ensemble de bâtiments de faible hauteur disposés autour de cours intérieures et reliés par des galeries et des passages. Les bâtiments ne dépassent pas deux étages. Ils sont parsemés d'arbres, de jardins et de fontaines. La vie s'organisait autour de ces bâtiments et de ces cours, dans une atmosphère ouverte, et agréablement fraîche en été.
Le palais, vu du ciel, forme approximativement un rectangle divisé entre les quatre grandes cours et le harem. L'axe principal va du sud vers le nord, partant de la première cour et rejoignant les autres successivement vers le nord. La première cour était la plus accessible, tandis que la plus éloignée (la quatrième) et la cour du harem étaient les plus secrètes, le domaine du seul sultan. La cinquième cour se trouve en bordure extérieure du palais sur des terrains proches du rivage. L'accès à ces cours est limité par de hauts murs et contrôlé par des portes successives. Outre les quatre ou les cinq cours principales, de nombreuses autres cours, moyennes ou petites, sont disséminées dans tout le complexe. L'ensemble couvre une surface entre 592 600 mètres carrés[Necipoğlu 6] et 700 000 mètres carrés, selon les éléments pris en compte[6].

Les côtés sud et ouest sont bordés par le grand parc floral du sultan, de nos jours le parc Gülhane (gülhane signifiant "la maison des roses"). Au sud et à l'est s'étend la mer de Marmara. Divers bâtiments annexes comme les petits palais d'été (kasrı), les pavillons, les kiosques (köşkü) et autres structures pour l'agrément et l'administration existaient autrefois sur la rive, dans la zone appelée « cinquième place ». Ils ont disparu au cours du temps, négligés, ou supprimés lors de la construction de la ligne de chemin de fer littorale au XIXe siècle. Un dernier kiosque subsiste en bord de mer : le « kiosque des Vanniers » (Sepetçiler Kasrı), construit en 1592 par le Sultan Murad III. Tout ceci explique que la superficie totale du palais de Topkapı était plus importante qu'aujourd'hui.
Fonctions et organisation
Le palais de Topkapı était la résidence principale du sultan et de sa cour ; il était aussi le siège officiel du gouvernement. Son accès était strictement réglementé, mais ses habitants avaient rarement à en sortir, car le palais était presque autonome, une ville dans la ville. Les salles d'audiences et les espaces de conférences servaient aussi aux questions liées à l'administration politique de l'empire. Pour les résidents comme pour les hôtes, le palais disposait de son propre approvisionnement en eau grâce aux citernes et les grandes cuisines fournissaient les repas. La cour disposait de dortoirs, jardins, bibliothèques, écoles, même de mosquées.
Un cérémonial très strict était suivi afin d'assurer l'isolement du souverain du reste du monde[Necipoğlu 7]. Le principe de cet isolement impérial est certainement un héritage des traditions de la cour byzantine. Il a été codifié par Mehmed II en 1477 et 1481 dans le code Kanunname, qui régissait la préséance des fonctionnaires de la cour, la hiérarchie administrative et les questions de protocole[Necipoğlu 8]. Ce principe de l'isolement, qui n'a fait que se renforcer, s'est traduit dans le style et l'arrangement des salles et des bâtiments. Les architectes veillaient à ce que, même dans le palais, le sultan et sa famille puissent bénéficier du maximum d'intimité, ce qui conduisait au recours à des fenêtres grillagées et à d'innombrables passages secrets[Necipoğlu 9].
La porte de l'Auguste ou porte Impériale

La rue principale menant au palais est la mésé (ἡ mέση ὁδός / hē mésē hodós, litt. « la rue du milieu »), voie processionnelle byzantine, aujourd'hui (tr) Divan Yolu (rue du Conseil). La mésé était utilisée pour les processions, tant à l'époque byzantine que durant l'ère ottomane. Elle menait directement à la basilique Sainte-Sophie, puis obliquait vers le nord-ouest pour aboutir à l'entrée du palais marquée par la fontaine d'Ahmed III (1728).
Le sultan entrait dans le palais par la porte de l'Auguste ou porte impériale (en turc ottoman transcrit Bab-ı Hümâyûn ou latin : Porta Augusta), également appelée porte du sultanat ((tr) Saltanat Kapısı), située au sud du palais[7].
Cette énorme porte, datant de 1478, a été recouverte de marbre au XIXe siècle. L'aspect massif de cette porte accentue son caractère défensif. Son arche centrale conduit à un passage haut. Une calligraphie ottomane en caractères dorés orne la partie supérieure de la structure, avec des versets du Coran et des tuğras des sultans. Deux tuğras sont identifiés : celui de Mehmed II, et celui du sultan Abdulaziz, qui a rénové la porte[Necipoğlu 10]. De chaque côté de la salle se trouvent des pièces pour abriter les gardes. La porte était ouverte depuis la prière du matin jusqu'à la dernière prière du soir.
Selon les documents anciens, il y avait un logement en bois au-dessus de la porte, jusqu'à la seconde moitié du XIXe siècle[8]. Il a d'abord été utilisé comme pavillon par Mehmed, puis comme dépôt pour les biens de ceux qui venaient à mourir sans héritiers à l'intérieur du palais. Il a aussi servi de point d'observation pour les femmes du harem à certaines occasions[Necipoğlu 11].


La porte de l'Auguste donne accès à la première cour.
Première cour
La première cour (I. Avlu ou Alay Meydanı) s'étend jusqu'à la pointe du sérail ; elle est entourée de hauts murs[9]. Cette première cour est la plus grande de toutes et fonctionne comme une enceinte extérieure[Necipoğlu 12].
Les structures qui subsistent aujourd'hui sont l'ancienne monnaie impériale (Darphane-i Âmire), construite en 1727, l'église Sainte-Irène et différentes fontaines. L'église byzantine Sainte-Irène n'a jamais été détruite par les Ottomans. Elle a survécu à la conquête, et a servi d'entrepôt et d'arsenal impérial[Necipoğlu 13].
Cette cour est également nommée « cour des janissaires » ou « cour des Parades ». Les visiteurs entrant dans le palais suivaient le chemin vers la porte du Salut et la seconde cour du palais. Les fonctionnaires de la Cour et les janissaires les attendaient en grand uniforme. Les visiteurs devaient y laisser leur monture pour passer la seconde porte[Necipoğlu 14].
Porte du Milieu ou porte du Salut

La grande « porte du Salut » (en arabe : Bab-üs Selâm), ou « porte du Milieu » (turc : Orta Kapı), mène au palais et à la seconde cour. Elle est flanquée de deux grandes tours orthogonales crénelées. Sa date de construction est incertaine, car l'architecture des tours est d'influence byzantine plutôt qu'ottomane. Elle a pu s'inspirer de la porte Sainte-Barbe qui marquait l'entrée des jardins du palais impérial du côté de la rive du Bosphore[Necipoğlu 15]. Une inscription sur la porte la fait remonter au moins à 1542, c'est-à-dire au règne de Soliman le Magnifique. Une miniature de 1584 montre une structure à trois fenêtres surmontée d'un toit entre les tours, au-dessus de l'arc[10], probablement une salle de garde disparue depuis[Necipoğlu 16]. La porte est richement décorée, sur les deux côtés et dans la partie supérieure, avec des inscriptions religieuses et des monogrammes des sultans.
À part les officiels et les dignitaires étrangers, personne n'était autorisé à franchir cette porte. Seul le sultan pouvait la passer à cheval[Necipoğlu 17]. Cette tradition remonte à la Chalkè (porte de bronze) du Grand Palais byzantin.
La « fontaine du Bourreau » (Cellat Çeşmesi) se trouve du côté droit de la porte du Milieu : c'est là que le bourreau, dit-on, se lavait les mains ainsi que son glaive après une décapitation[Davis 1].
Deuxième cour



Par la porte du Milieu, le visiteur entre dans la seconde cour (II. Avlu), ou place du Conseil (Divan Meydanı), lieu de rassemblement des courtisans[11], [Necipoğlu 18]. Seul le sultan pouvait la traverser à cheval, sur les allées de galets noirs conduisant à la troisième cour.
La seconde cour a dû être achevée vers 1465, sous le règne de Mehmed II, mais n'a pris son aspect définitif que vers 1525-1529[Necipoğlu 18].
Cette cour est entourée de l'ancien hôpital du palais, de la boulangerie, des quartiers des janissaires, des écuries, du harem impérial et du Conseil (Divan) au nord, et par les cuisines au sud. Au fond se trouve la troisième porte ou porte de la Félicité qui conduit à la troisième cour. L'ensemble trouve son unité dans une colonnade de marbre ininterrompue.
Les fouilles récentes ont révélé une quantité d'objets des périodes romaine et byzantine : un sarcophage, des fonts baptismaux, des pilastres et des plaques de parapet, ainsi que des chapiteaux, exposés devant les cuisines. La citerne située sous la seconde cour remonte à l'époque byzantine. Elle est normalement fermée au public.
La seconde cour était essentiellement utilisée par le sultan pour rendre la justice. Elle était donc conçue pour impressionner les visiteurs. Des ambassadeurs autrichiens, vénitiens, français ont laissé le récit de leurs visites. L'ambassadeur Philippe du Fresne-Canaye, reçu par le sultan en 1573, raconte l'alignement des janissaires le long du mur, leurs turbans comme des épis de maïs, les mains jointes devant eux, comme des moines, restant immobiles et silencieux durant plus de sept heures, comme des statues[Necipoğlu 19].
Cette discipline et ce protocole sévère concouraient à l'aspect majestueux de cette seconde cour.
Musée des voitures

Un musée des voitures impériales est aménagé au nord-est, dans les anciennes écuries. C'est un bâtiment de faible hauteur, couvert d'un toit, et non d'une coupole comme presque partout ailleurs dans le palais. Beaucoup des voitures ont été détruites dans un incendie à la fin du XIXe siècle. On y voit encore des carrosses et des voitures légères ayant appartenu aux sultans, aux reines mères et aux personnages de la cour. Certaines de ces voitures ont été importées de l'étranger.
Cuisines du palais



Les immenses cuisines sont un des éléments essentiels du palais. Certaines d'entre elles furent construites dès le XVe siècle, en même temps que le palais lui-même, sur le modèle de celles du palais du sultan à Edirne. Elles furent agrandies sous le règne du sultan Soliman le Magnifique, mais brûlèrent en 1574. Elles furent relevées et mises au goût du jour par l'architecte de la cour Mimar Sinan[Necipoğlu 20].
Restaurées selon les plans de Sinan, elles sont organisées en deux rangées et hérissées de vingt larges et hautes cheminées octogonales, ajoutées par Sinan. Les cuisines sont desservies par les ruelles qui sillonnent l'espace compris entre la seconde cour et la mer de Marmara. L'entrée de cette section se fait par les trois portes du portique de la seconde cour : la porte du Commissariat impérial, celle des cuisines impériales et celle de la pâtisserie.
Les cuisines étaient composées de dix sections spécialisées couvertes de coupoles : cuisine impériale, école du palais (Enderûn), quartier des femmes (Harem), services extérieurs au palais (Birûn), cuisines, préparation des boissons, pâtisserie, crémerie, entrepôts et salles réservées aux cuisiniers. Elles étaient les plus grandes de tout l'Empire ottoman.
Les repas pour le sultan, les habitants du harem, les membres des services intérieurs et extérieurs au palais (Enderûn et Birûn) y étaient préparés : on y faisait donc la cuisine pour environ 4 000 personnes. Elles n'employaient pas moins de huit cents personnes, et un bon millier les jours de fêtes.
Le service du sultan était réglé par un protocole très strict. Selon le témoignage du baron Wenceslas Wratislaw, ambassadeur d'Autriche, invité par le sultan à un banquet privé en 1599, on comptait cinq cents serviteurs en livrée de soie rouge, qui portaient des couvre-chefs semblables à ceux des janissaires. Quand vint le moment du dîner, le surintendant apporta un plat de porcelaine et un autre plat couvert, qu'il passa au serveur plus proche, celui-ci à un deuxième, et ainsi de suite jusqu'à celui qui était le plus près de l'appartement du sultan. Là encore, d'autres chambellans découpaient prestement les viandes qui étaient portées au plus vite, sans aucun bruit ni parole, jusqu'à la table de l'empereur[Necipoğlu 21].
Les cuisines comptaient aussi des dortoirs, des bains et des mosquées pour les employés. Ces installations ont maintenant disparu[Necipoğlu 21].
En plus d'une intéressante exposition d'ustensiles de cuisine, les bâtiments abritent aujourd'hui des collections d'argenterie, et surtout de porcelaines chinoises bleu et blanc, blanc et céladon.
Collections de porcelaines et céladons
La céramique chinoise arrivait par caravanes ou encore par mer. Les 10 700 pièces exposées actuellement, chinoises, japonaises, turques, sont parmi les plus rares et les plus précieuses[12]. Elles représentent toutes les époques depuis le Moyen Âge : fin de la période Song (XIIIe siècle), puis Yuan (1280-1368), Ming (1368-1644) et Qing (1644-1912). Le musée conserve aussi une des plus riches collections au monde de céladons Longquan (XIVe siècle) et comprend aussi 3 000 pièces de céladons Yuan et Ming[13]. Ces céladons étaient particulièrement appréciés du sultan et de la sultane validé (reine mère), car ils étaient réputés changer de couleur si la nourriture et les boissons qu'ils contenaient étaient empoisonnées[14].
La porcelaine japonaise est essentiellement de la porcelaine d'Imari, datant du XVIIe au XIXe siècle. Certaines parties de la collection présentent aussi de la porcelaine blanche du début du XVe siècle, des « imitations » de bleu et blanc, ainsi que des porcelaines Imari provenant d'Annam, Thaïlande et Perse[15].
Les écuries
Situées de l'autre côté de la cour, à environ 5 ou 6 mètres au-dessous du niveau du sol, les écuries impériales (Istabl-ı Âmire) comprennent les écuries privées (Has Ahir) où sont conservées de vastes collections de harnachements (Raht Hazinesi). Elles ont été construites sous Mehmed II et rénovées sous Soliman. On y voit aussi la petite mosquée du XVIIIe siècle et les bains de Beşir Ağa (Beşir Ağa Camii ve Hamamı), le chef des eunuques noirs de Mahmud Ier[Necipoğlu 22].
Dortoirs des hallebardiers
À la suite des écuries impériales se trouvent les dortoirs des « hallebardiers à tresses » (Zülüflü Baltacılar Koğušu). Ces quartiers étaient utilisés par un corps de métier chargé de multiples tâches de la vie quotidienne : approvisionnement en bois des chambres du palais, nettoyage et service du harem et du quartier des serviteurs masculins, arrangement du mobilier ; ils avaient aussi des fonctions de maîtres des cérémonies. Les hallebardiers portaient de longues tresses pour bien marquer leur haute position. La première mention de ce corps date de 1527, lorsqu'il fut établi afin de dégager les routes devant l'armée en campagne.
Le dortoir a été créé au XVe siècle et agrandi par l'architecte en chef Davud Ağa en 1587, sous le règne du sultan Murad III. Les dortoirs sont construits autour d'une cour dans la disposition traditionnelle d'une maison ottomane, avec des bains et une mosquée, ainsi que des salles de loisirs, dont un fumoir. À l'extérieur comme à l'intérieur du complexe, on a retrouvé de pieuses inscriptions sur les différentes fonctions des hallebardiers et sur l'entretien des divers quartiers. Contrairement au reste du palais, le quartier des hallebardiers est construit en bois, peint en rouge et vert[Necipoğlu 23].
Le Conseil impérial ou salle du Divan



Le Conseil impérial ou salle du Divan (Dîvân-ı Hümâyûn) est la chambre dans laquelle se réunissaient les ministres d'État, le conseil des ministres (Dîvân Heyeti), le Conseil impérial, composé du grand vizir (Paşa Kapısı), des vizirs et d'autres fonctionnaires de l'État ottoman. Il est aussi appelé Kubbealtı, qui signifie « sous la coupole », en référence à la coupole qui couvre la salle principale du conseil. Il est situé au nord-ouest de la cour, à côté de la porte de la Félicité.
La première salle du Conseil remonte au règne de Mehmed II, mais le bâtiment actuel a été construit par Alseddin, architecte en chef de Soliman le Magnifique. Il a subi des modifications après les dommages causés par l'incendie du harem en 1665. Il a été et restauré sous les sultans Selim III et Mahmoud II[Necipoğlu 24].
Le lieu commença à perdre de son importance au XVIIIe siècle, lorsque l'administration de l'État a été progressivement transférée à la Sublime Porte (Bab-ı Âli), c'est-à-dire au grand vizirat, distinct du palais, un peu plus à l'ouest. La dernière réunion du Conseil dans le palais s'est tenue le , lorsque le cabinet (Vükela Heyeti) s'est réuni pour évoquer l'état de santé de Murad V.
La salle du Conseil a de multiples entrées, de l'intérieur du palais ou depuis la cour. Le portique extérieur est constitué de piliers de marbre et de porphyre, avec un plafond vert et blanc en bois doré. Le sol est dallé de marbre. Les entrées dans la salle depuis l'extérieur sont dans le style rococo, avec des grilles dorées qui laissent passer la lumière. Alors que les piliers sont de style ottoman ancien, les peintures murales et les décorations sont de la dernière période rococo. L'intérieur du bâtiment du Conseil impérial se compose de trois pièces adjacentes. Deux des trois salles à coupole de ce bâtiment ouvrent sur le porche et la cour. Le Divanhane, construit en bois avec un portique à l'angle de la place du Divan (Divan Meydani) au XVe siècle, a ensuite été utilisé comme mosquée du conseil, mais il a été démoli en 1916[Necipoğlu 25].
- La première salle à coupole, où le Conseil impérial tenait ses délibérations est le Kubbealtı.
- La deuxième chambre était occupée par le personnel de secrétariat du Divan impérial.
- Dans la troisième chambre appelée Defterhāne, les commis tenaient les dossiers et les archivaient.
Sur la façade sont inscrits des versets mentionnant les travaux de restauration effectués en 1792 et 1819, sous Selim III et Mahmoud II. Les décorations rococo sur la façade et à l'intérieur de la salle du Conseil datent de cette époque. La salle principale du Kubbealtı est décorée de tuiles ottomanes Kütahya[Necipoğlu 25]. Les trois longs sofas, sur les côtés, étaient les sièges réservés aux fonctionnaires, avec un petit foyer au milieu[pas clair]. Une petite boule dorée pend au plafond et représente la terre. Elle est placée face à la fenêtre du sultan[Quoi ?] et symbolise la justice qu'il doit rendre au monde, ainsi que la vigilance qu'il doit garder envers ses vizirs[Necipoğlu 26], [Davis 2].
Les débats, au Conseil impérial, portaient sur les affaires politiques, religieuses et administratives. Les séances avaient lieu le samedi, le dimanche, le lundi et le mardi, après la prière matinale[Davis 3]. Elles étaient réglées selon un protocole immuable.
Les membres du Conseil, comme le grand vizir, les vizirs, les chefs militaires de la justice musulmane (Kazaskers) de Roumélie et d'Anatolie, le ministre des finances et les chefs du trésor (Defterdar), le ministre des affaires étrangères (Reis-ül-Küttab) et parfois le grand Mufti (Sheikh ül-Islam) s'y réunissaient pour discuter et décider des affaires de l'État[Davis 3].
Les autres fonctionnaires autorisés étaient les secrétaires du Conseil impérial (Nişancilar), les détenteurs du sceau impérial[Quoi ?] (tuğra), les fonctionnaires chargés de la rédaction des protocoles officiels (Tezkereciler) et les greffiers qui enregistraient les décisions[Necipoğlu 24].
De la[Laquelle ?] fenêtre à la grille d'or, mentionnée pour la première fois en 1527[Necipoğlu 3], le sultan ou la sultane validé pouvaient suivre les délibérations du Conseil sans être remarqués[Davis 3]. La fenêtre pouvait être atteinte à partir des appartements impériaux par la tour de Justice (Adalet Kulesi). Lorsque le sultan donnait un coup sec sur la grille ou tirait un rideau rouge, la séance prenait fin et les vizirs venaient un à un dans la salle d'audience (Arz Odası) rendre compte des débats au souverain.
Tous les hommes d'État, à l'exception du grand vizir, accomplissaient leur prière matinale à Sainte-Sophie et pénétraient par la porte impériale en fonction de leur rang, passant ensuite par la porte du Salut dans la chambre du Divan, où ils attendaient l'arrivée du grand vizir.
Le grand vizir accomplissait ses prières à la maison, et était accompagné au palais par ses propres assistants. À son arrivée, on procédait à une cérémonie de bienvenue : avant d'ouvrir les débats du Divan impérial, il s'approchait de la porte de la Félicité et la saluait, exprimant ainsi ses respects à la porte de la demeure du sultan. Il entrait dans la chambre et prenait place directement sous la fenêtre d'or du sultan ; alors le Conseil commençait. Les affaires de l'État étaient généralement examinées jusqu'à midi, puis les membres du Conseil dînaient dans les chambres avant d'entendre les différentes requêtes[Davis 4].
Tous les membres de la société ottomane, les hommes et les femmes de toutes croyances pouvaient se voir accorder une audience. Une importante cérémonie était organisée pour marquer le premier Conseil impérial de chaque nouveau grand vizir, et aussi pour marquer sa présentation avec le Sceau impérial[Quoi ?] (Mühr-ü Hümayûn). La plus importante cérémonie avait lieu tous les trois mois au cours de la distribution des traitements (ulûfe) des janissaires[Davis 5]. La réception de dignitaires étrangers était normalement organisée le même jour, créant une occasion de refléter la richesse et la puissance de l'État. Les ambassadeurs étaient ensuite reçus par le grand vizir dans la salle du Conseil, où un banquet était organisé en leur honneur.
Tour de Justice

La tour de Justice (Adalet Kulesi) est située entre la salle du conseil et le harem. Haute de plusieurs étages, elle est la plus haute structure du palais et domine l'ensemble du paysage depuis le Bosphore. Son origine remonte probablement à Mehmet II. Elle a été rénovée et agrandie par Soliman Ier en 1527-1529[Necipoğlu 27].
Le sultan Mahmoud II a refait la lanterne en 1825 en conservant la structure existante. Les larges fenêtres à colonnes engagées et le fronton Renaissance évoquent l'architecture palladienne[Necipoğlu 26].
La tour symbolisait l'éternelle vigilance du sultan contre l'injustice. Visible de loin, elle rappelait à tous la présence du souverain. Elle était aussi pour ce dernier un point d'observation d'où il pouvait voir toute la ville et ses détroits. Les fenêtres grillagées garantissaient le principe de l'isolement impérial. La tour donnait accès à la fenêtre d'or de la salle du conseil, ajoutant encore au symbolisme de la justice[Necipoğlu 28].
Trésor impérial (« trésor extérieur »)

Le bâtiment dans lequel sont exposées les armes et armures était l'un des trésors du palais (Divan-I Humayun Hazinesi / Hazine-ý Âmire). Étant donné qu'il existait un autre trésor « intérieur » dans la troisième cour, celui-ci est également appelé « trésor extérieur » (dış hazine)[Necipoğlu 29]. On ne connaît pas exactement la date de sa construction, mais son plan et la technique employée indiquent qu'il remonte probablement à la fin du XVe siècle et au règne de Soliman. Il a ensuite subi de nombreux aménagements et rénovations. Il est constitué d'une grande salle de pierre et de brique couverte de huit coupoles [Necipoğlu 26], chacune de 5 × 11,40 m. Ce « trésor » était utilisé pour les finances de l'administration de l'État. Les kaftans donnés en cadeaux aux vizirs, ambassadeurs et résidents du palais par le service financier et le sultan, ainsi que d'autres objets de valeur, y étaient également conservés. C'est aussi sur ce trésor que les janissaires recevaient leur salaire trimestriel appelé uluefe. Le trésor était fermé par le sceau impérial confié au grand vizir[Necipoğlu 29].
L'exposition de la collection d'armes et d'armures a été mise en place dans ce bâtiment en 1928, soit quatre ans après que le palais de Topkapı eut été converti en musée.
Des fouilles, en 1937, ont révélé, en face de ce bâtiment, des vestiges d'un édifice religieux byzantin du Ve siècle. Il n'a pu être identifié comme aucune des églises connues sur le site. On le désigne par les noms de « basilique du palais de Topkapı » ou « basilique du palais ».
À l'extérieur du bâtiment du trésor se trouve également une cible de pierre (Nişan Taşı) haute de plus de deux mètres, érigée en commémoration d'un concours de tir organisé sous Selim III en 1790.
Collection d'armes
La collection d'armes (Silah Seksiyonu Sergi Salonu), qui se compose principalement d'armes restées dans le palais au moment de sa conversion, est l'un des plus riches ensembles d'armes islamiques au monde, avec des pièces s'étalant sur une période de 1 300 ans, du VIIe au XXe siècle. Cette collection d'armes et armures est constituée d'objets d'origine ottomane, ou issus de conquêtes, ou encore reçus en cadeaux.
Les armes ottomanes constituent le gros de la collection. Mais celle-ci comporte aussi de nombreuses armes omeyyades et abbassides, ainsi que des armes, armures, casques, épées et haches d'origine perse et mamelouk. Un nombre moins élevé d'armes provenant d'Europe et d'Asie constitue le reste de la collection. Actuellement[Quand ?], l'exposition compte quelque quatre cents armes, dont la plupart portent des inscriptions.
Porte de la Félicité


La porte de la Félicité (Bâbüssaâde ou Bab-üs Saadet) est l'entrée de la cour intérieure (Enderûn), ou troisième cour, où commencent les appartements privés du sultan. La porte est coiffée d'une coupole soutenue par de minces piliers de marbre. Elle est le symbole de la présence du sultan dans le palais[Necipoğlu 30] : nul ne peut passer cette porte sans l'autorisation du sultan. Même le grand vizir n'était autorisé à la franchir que selon des horaires et à des conditions bien spécifiées.
La porte a probablement été construite sous Mehmed II, au cours du XVe siècle. Elle a été redécorée dans le style rococo en 1774 par Mustafa III, puis Mahmoud II. On peut lire au-dessus la porte des versets du Coran, ainsi que des tuğras. Le plafond est en partie décoré à la feuille d'or, et une bulle d'or est suspendue en son centre. Les côtés sont ornés d'éléments décoratifs baroques et de miniatures de paysages.
Le sultan ne paraissait à cette porte et sur la place du Divan Meydani que lors de cérémonies particulières. Le sultan se tenait assis devant la porte sur son trône les jours de fêtes religieuses (bayramlar), tandis que sujets et fonctionnaires restaient debout[Necipoğlu 31]. Les funérailles des sultans se tenaient également devant cette porte.
De chaque côté de ce passage à colonnes contrôlé par le chef des eunuques du harem, appelé Bâbüssaâde Ağası, et le personnel placé sous sa responsabilité, s'étendaient les quartiers des eunuques, ainsi que les salles, grandes et petites, de l'école du palais.
Une petite dalle, en retrait dans le sol devant la porte, marque le lieu où la bannière du prophète de l'islam Mahomet était déployée. Cette bannière était confiée en une cérémonie solennelle au grand vizir ou au commandant des armées partant en guerre.
Troisième cour

Derrière la porte de la Félicité se trouve la « troisième cour » (III. Avlu), parfois nommée « palais intérieur » (Enderûn Avlusu). Elle constitue le cœur du palais, l'endroit où vivait le sultan en dehors du harem[16]. Il s'agit d'un jardin luxuriant entouré par le hall de la chambre privée (Has Oda) occupé par les officiels du palais, le trésor intérieur (qui contient certains des plus importants trésors de l'âge ottoman, en particulier les Reliques Sacrées), le harem et quelques pavillons, avec la bibliothèque d'Ahmed III en son centre. L'entrée dans la troisième cour était strictement contrôlée, et interdite aux étrangers.
La troisième cour est entourée par les quartiers des ağas (pages), jeunes garçons au service du sultan. Ils apprenaient les arts, comme la musique, la peinture et la calligraphie. Les meilleurs pouvaient devenir Has Odali Ağa (gardiens des reliques saintes et serviteurs personnels du sultan), ou bien devenir officiers ou fonctionnaires de haut rang.
La disposition de la troisième cour a été définie par Mehmed II. Sa taille est globalement comparable à celle de la seconde cour[Necipoğlu 32]. La disposition rigide n'a pas permis beaucoup de changements ultérieurs. Si Mehmed II ne dormait pas dans le harem, ses successeurs se sont reclus dans la quatrième cour et dans le harem. Le vénitien Gianfrancesco Morosini a décrit[Necipoğlu 33] la routine quotidienne de Mourad III en 1585 :
« À mon avis, le sultan n'a pas une vie si désirable, car il reste quasiment enfermé dans son sérail en la compagnie d'eunuques, de garçons, de nains, de muets et d'esclaves, ce qui semble être aussi mauvais que [la compagnie] des femmes, sans la conversation de personnes vertueuses avec lesquelles avoir une discussion. [...] Le matin il se lève relativement tard et, en sortant du quartier des femmes où il dort quasiment chaque nuit, il change de costume et aussitôt il mange. Si c'est un jour de Conseil, il donne audience à l'agha des janissaires, aux juges de l'armée, et finalement aux vizirs ; et si quelqu'un a été promu gouverneur de province ou autre, il obtient le droit de venir embrasser sa main sans émettre une seule parole ni recevoir de réponse. À ce moment les ambassadeurs, les autres ministres et les princes qui vont à cette porte font de même. [...] Quand le vizir repart après un temps assez court, il retourne la plupart du temps avec les femmes, dont la conversation l'enchante grandement, et s'il reste à l'extérieur, il se retire dans l'un de ses jardins pour pratiquer le tir à l'arc et pour jouer avec ses muets et ses bouffons. De la musique bruyante lui est souvent jouée, et il apprécie beaucoup les feux d'artifice. [...] Des pièces de théâtre sont souvent jouées pour lui [...] Enfin il rentre toujours au harem pour le dîner à l'approche de la nuit, hiver comme été. »
La miniature Hünername de 1584 montre la troisième cour et les jardins extérieurs comme ils ont dû apparaître juste après leur achèvement sous Mehmed II. Elle montre aussi en bas le sultan dans ce qui ressemble à un pavillon de plage, soit donnant audience, soit étant entretenu par des courtisans[Necipoğlu 33].

1) Salle d'audiences. 2) Bibliothèque d'Ahmed III. 3) Trésor intérieur. 4) Chambre privée et pavillon des Reliques sacrées. 5) Dortoir du Corps expéditionnaire - exposition de costumes et étoffes impériaux. 6) Trésor du porteur de l'épée - exposition d'horlogerie. 7) Dortoir du trésor - exposition de miniatures islamiques et de portraits des sultans. 8) Dortoir du Commissariat - direction du musée du Palais de Topkapı. 9) Dortoir de la Chambre privée : expositions temporaires. 10) Mosquée des pages du palais - Nouvelle bibliothèque - Collections des bibliothèques du palais 11) Sortie du Harem. 12) Volière 13) Quartiers du Chef des Eunuques blancs 14) Quartier des Eunuques blancs 16) Latrines.
Salle des audiences
_-_Foto_G._Dall'Orto_27-5-2006.jpg.webp)


La « salle des audiences », dite aussi « hall d'audience » ou « chambre des pétitions » (Arz Odası), se situe juste derrière la porte de la Félicité, de manière à cacher la vue de la troisième cour. Cet immeuble carré est un kiosque ottoman, entouré de vingt-deux colonnes, qui supporte un large toit avec des gouttières pendantes. À l'intérieur se trouvent la salle du trône et deux petites pièces. Ce bâtiment était aussi nommé « salle du Conseil intérieure », pour le différencier de la salle du Conseil de la seconde cour[Necipoğlu 34].
C'est un bâtiment ancien, datant du XVe siècle, et décoré ensuite par Soliman. Le sultan y était assis sur un trône à baldaquin, et recevait personnellement les vizirs, les officiels et les ambassadeurs qui venaient se présenter. Selon un récit de Cornelius Duplicius de Schepper[Necipoğlu 35] en 1533 :
« L'empereur était assis sur un trône légèrement surélevé entièrement couvert de drap d'or, cousu de nombreuses pierres précieuses et, de tous côtés, on voyait des coussins de valeur inestimable ; les murs de la pièce étaient recouverts de mosaïque d'azur et d'or ; le manteau de la cheminée était d'argent massif recouvert d'or et, sur un côté de la pièce, l'eau coulait dans une fontaine. »
Les vizirs venaient y présenter leurs rapports au sultan. En fonction de leur performance, le sultan les remerciait en les couvrant de cadeaux et en les affectant à un poste plus important, ou dans le pire des cas en les faisant étrangler par des eunuques sourds-muets[Necipoğlu 36]. La chambre était ainsi un bâtiment où les fonctionnaires entraient sans savoir s'ils en sortiraient vivants.
Les cérémonies les plus élaborées dans ce bâtiment concernaient la réception des ambassadeurs qui venaient, escortés par des officiels, embrasser le bord de la robe du sultan[Davis 6]. Le trône était alors richement décoré.
Le trône actuel en forme de baldaquin a été fait sur ordre de Mehmed III. Sur le plafond laqué du trône piqué de joyaux se trouvent des décorations de feuillages, ainsi que la représentation du combat d'un dragon, symbole de puissance, avec simurg, un oiseau mythique. Sur le trône est étendue une couverture faite de plusieurs pièces de brocard cousues de plaques d'émeraude, de rubis et de perles.
Le plafond de la pièce était peint d'un bleu ultramarine clouté d'étoiles d'or. Les tuiles le long du mur étaient bleues, blanches et turquoise[style à revoir][Necipoğlu 37]. La chambre était pourvue de tapis précieux et de coussins. Le but était d'impressionner les visiteurs et de les étonner par la puissance du sultan. La chambre a été rénovée en 1723 par Ahmed III et reconstruite sous sa forme actuelle après un incendie en 1856 sous le règne d'Abdülmecit Ier. L'intérieur actuel est ainsi très différent de ce qu'il était à l'origine[Necipoğlu 38].
Deux portes sur la façade, donnant accès à un porche, étaient destinées aux visiteurs. Une troisième porte, à l'arrière du bâtiment, était réservée au sultan. Des inscriptions gravées sur la porte principale, sous la forme d'un monogramme du sultan et d'éloges du sultan Abdülmecit Ier, datent de 1856. Au-dessus de la porte principale, un bismillah (confession de foi musulmane « au nom de Dieu le compatissant, le miséricordieux ») a été gravé en 1723 sous le règne de Ahmed III. De chaque côté de la porte, des tuiles ont été ajoutées lors de travaux de réparation ultérieurs.
On trouve une petite fontaine à l'entrée, construite par Soliman. La fontaine était utilisée non seulement pour les ablutions, mais son bruit pouvait être utile pour couvrir les conversations confidentielles ou secrètes dans la pièce[17],[Davis 7]. La fontaine était aussi un symbole du sultan, l'inscription perse la nommant « La fontaine de la générosité, de la justice et la mer de la bienfaisance »[Necipoğlu 39].
Les cadeaux des ambassadeurs était placés devant une grande fenêtre au milieu de la façade principale, entre les deux portes. La porte Pişkeş, à gauche (Pişkeş Kapısı, Pişkeş signifiant cadeau offert à un supérieur), est surmontée d'une inscription datant du règne de Mahmoud II (1810)[Davis 8].
Derrière la salle d'audience, du côté est, se trouve le dortoir du corps expéditionnaire.
Dortoir du corps expéditionnaire
Le « dortoir du corps expéditionnaire » (Seferli Koğuşu) abrite la « collection de la garde-robe impériale » (Padişhah Elbiseleri Koleksiyonu), une collection d'environ 2 500 costumes, la majorité étant de précieux caftans du sultan. Il abrite aussi une collection de 360 céramiques dont certaines provenant de Chine[18].
Le dortoir a été construit sous Murad IV en 1635. Le bâtiment a été restauré par Ahmed III au début du XVIIIe siècle. Il est voûté et soutenu par quatorze colonnes. Au nord-est du dortoir se trouve le pavillon du Conquérant.
Pavillon du Conquérant


Le « pavillon du Conquérant », appelé aussi « kiosque du Conquérant » (Fatih Köşkü), avec ses arcades construites à l'époque de Mehmed II est parmi les plus vieux bâtiments du palais. Le pavillon a été bâti autour de 1460, lors de la construction initiale : il était utilisé pour abriter les trésors et œuvres d'art. Il abrite le « trésor Impérial » (Hazine-i Âmire)[19].
Le pavillon comprenait initialement trois pièces, une terrasse donnant sur la mer de Marmara, un sous-sol et un hammam. Il se compose de deux étages construits sur une terrasse au-dessus du jardin, édifiés au sommet d'un promontoire, sur une falaise donnant une vue magnifique sur la mer de Marmara et le Bosphore. L'étage inférieur était composé de pièces de service, tandis que l'étage supérieur était une suite de quatre appartements et une grande loggia avec des arches doubles. Les deux premières pièces sont couvertes d'un dôme d'une hauteur considérable. Toutes les pièces donnent sur la troisième cour à travers une arcade monumentale. Le portique à colonnes du côté du jardin est ouvert sur chacune des quatre pièces par une porte de hauteur imposante. Les chapiteaux sont d'ordre ionique réduit et datent probablement du XVIIIe siècle. Le pavillon était utilisé comme trésor pour les revenus de l'Égypte sous le sultan Selim Ier. Avant cette période, sous Mehmed II et Bayezid II, ces appartements ont dû être les pièces les plus agréables du palais. Des fouilles dans le sous-sol ont mis au jour un petit baptistère byzantin au plan trifolié.
Trésor impérial (« trésor intérieur »)

Le « trésor impérial » est une vaste collection d'œuvres d'art, de joaillerie, d'objets précieux ou à valeur sentimentale, appartenant à la dynastie ottomane. Depuis que le palais est transformé en musée, une sélection y est exposée. La plupart des objets proviennent de cadeaux, de prises de guerre, ou de la production des artisans du palais. Le trésorier en chef (Hazinedarbaşı) était responsable du trésor. À leur accession au trône, il était de coutume pour les sultans de faire une visite protocolaire au trésor.
Parmi les nombreux trésors montrés dans les quatre pièces adjacentes, la première expose l'une des armures du sultan Mustafa III, faite d'une cotte de mailles de fer décorée d'or et incrustée de joyaux, avec son épée, son bouclier et ses étriers dorés. La vitrine suivante montre plusieurs couvertures du Coran décorées de perles ayant appartenu aux sultans. Le trône d'ébène de Murad IV est incrusté de nacre et d'ivoire. Une boîte à musique indienne en or, avec un éléphant doré au sommet, date du XVIIe siècle. Dans d'autres vitrines, on voit des verres décorés de gemmes rares, des pierres précieuses, des émeraudes et des diamants.
La seconde pièce abrite le Poignard de Topkapı. Sa garde dorée est ornée de trois grosses émeraudes, coiffée d'une montre d'or avec un couvercle en émeraude. Le fourreau d'or est couvert de diamants et d'émaux. En 1747, le sultan Mahmud Ier a fait faire cette dague pour Nadir Shah, mais ce dernier a été assassiné avant que l'émissaire n'ait atteint les frontières de l'empire. Le sultan a donc gardé la dague. C'est elle qui est le sujet du film Topkapi.
Le milieu de la seconde pièce est occupé par le trône de noyer d'Ahmet Ier, incrusté de nacre et d'écaille de tortue, construit par Sedefhar Mehmet Ağa. Sous le baldaquin se trouve un pendant doré avec une grosse émeraude. La vitrine suivante montre les aigrettes ostentatoires des sultans et de leurs chevaux, couvertes de diamants, d'émeraudes et de rubis. Un bol de jade, en forme de navire, est un cadeau du Tsar Nicolas II de Russie.
Le joyau le plus spectaculaire de la troisième pièce est le diamant du fabricant de cuillères, serti d'argent et entouré de deux rangs de 49 diamants taillés. La légende veut que ce diamant ait été acheté par un vizir dans un bazar, le propriétaire pensant qu'il s'agissait d'un cristal sans valeur. Parmi les objets exposés se trouvent deux grands chandeliers en or, pesant chacun 48 kg et montés de 666 diamants. Ces chandeliers furent offerts par Abdülmecid Ier à la Kaaba. Ils furent rapportés à Istanbul peu avant la chute de l'empire et la perte du contrôle de la Mecque. Le trône d'or de cérémonie[20], serti de tourmalines, a été réalisé en 1585 sur l'ordre du vizir Ibrahim Pacha et présenté au sultan Murad III. Ce trône était installé devant la Porte de la Félicité lors d'audiences particulières.
Le trône du sultan Mahmud Ier est le point d'orgue de la quatrième pièce. Ce trône d'or de style indien, décoré de perles et d'émeraudes, était un cadeau du chef perse Nadir Shah au XVIIIe siècle. Une autre pièce intéressante est le reliquaire de la main de saint Jean-Baptiste, couvert d'or. Plusieurs vitrines montrent un assemblage de fusils à silex, d'épées, de cuillères, tous décorés d'or et de joyaux. D'un intérêt particulier est le reliquaire d'or qui contenait le manteau de Mahomet.
Galerie des miniatures et des portraits

Juste au nord du trésor impérial, le dortoir des pages a été transformé en « galerie des miniatures et des portraits » (Müzesi Müdüriyeti). À l'étage inférieur se trouve une importante collection de calligraphies et de miniatures. On peut y voir de très anciens et très précieux corans (XIIe au XVIIe siècle), écrits et enluminés en coufique, et une bible du IVe siècle, écrite en arabe. Un objet inestimable de cette collection est la première carte du monde par l'amiral turc Piri Reis (1513). La carte montre des parties des côtes ouest de l'Europe et de l'Afrique du nord avec une précision raisonnable. La côte du Brésil est aussi facilement reconnaissable. La partie supérieure de la galerie contient 37 portraits de sultans, la plupart étant des copies, car les originaux sont trop fragiles pour être exposés. Un portrait de Mehmed II est dû au peintre vénitien Gentile Bellini. D'autres miniatures précieuses sont conservées soit dans cette galerie, soit dans la bibliothèque ou dans d'autres parties du palais. Les plus notables sont (tr)Hünername, Sahansahname, les Albums Sarayı, Siyer-ı Nebi, Surname-ı Hümayun, Surname-i Vehbi, et la Süleymanname[21].
Bibliothèque Enderûn (bibliothèque d'Ahmed III)


La « bibliothèque Enderûn » (Enderûn Kütüphanesi), dite aussi « bibliothèque du sultan Ahmed III » (III. Ahmed Kütüphanesi), est un bâtiment néoclassique situé derrière la salle d'audience (Arz Odası), au centre de la troisième cour. Elle a été construite sur les fondations du kiosque Havuzlu par l'architecte impérial Mimar Beşir Ağa en 1719, sur l'ordre d'Ahmed III, pour l'usage des fonctionnaires de la maison royale. La colonnade de ce kiosque antérieur est probablement celle qui trône devant le trésor actuel[pas clair].
La bibliothèque est un magnifique exemple d'architecture ottomane du XVIIIe siècle. Recouverte de marbre à l'extérieur, elle a la forme d'une croix grecque avec un hall central couvert d'un dôme et trois ailes rectangulaires. Le quatrième bras de la croix est formé par le porche qui peut être atteint par une volée de marches de chaque côté. Sous l'arche centrale du portique se trouve une fontaine, avec des niches pour boire de chaque côté. Le bâtiment est construit sur un sous-sol bas, pour protéger les livres précieux de la moisissure.
Les murs au-dessus des fenêtres sont décorés de carreaux d'İznik du XVIIe siècle de motifs variée. Le dôme central et les salles des ailes rectangulaires ont été peints. La décoration sous le dôme et dans les ailes est typique de l' « ère des tulipes », qui dura de 1703 à 1730. Les livres étaient conservés dans les niches des murs. Une alcôve opposée à l'entrée était le lieu de lecture privé du sultan.
La bibliothèque était rattachée à l'école des pages du sultan (Enderun-i Hümayun Mektebi, couramment appelée Enderûn, "intérieure") qui formait des cadres de l'administration, de l'armée et du palais. Elle comprenait des livres sur la théologie et la loi islamique en turc ottoman, en arabe et en persan et contenait plus de 3 500 manuscrits. Certains sont des bons exemples d'incrustation de nacre et d'ivoire. Aujourd'hui les ouvrages sont conservés dans la mosquée des Ağas (Ağalar Camii), située à l'ouest de la bibliothèque. Un autre objet important est le manuscrit de Topkapı (en), une copie du Coran remontant à l'époque du troisième Calife Uthman ben Affan.
Mosquée des Ağas
La « Mosquée des Ağas » (Ağalar Camii) est la plus grande mosquée du palais. C'est aussi l'une des plus anciennes constructions, datant du XVe siècle, sous le règne du sultan Mehmed II. Le sultan, les ağas et les pages venaient y prier. La mosquée est placée en diagonale dans la cour, pour que le minbar puisse faire face à la Mecque. En 1928, les livres de la bibliothèque Enderûn ont été déplacés ici pour en faire la « bibliothèque du palais » (Sarayı Kütüphanesi), qui abrite une collection de près de 13 500 livres et manuscrits turcs, arabes, perses et grecs collectés par les Ottomans. Au nord-est de la mosquée se trouve la collection des portraits impériaux.
Dortoir des pages royaux

Le « dortoir des pages royaux » (Hasoda Koğuşu) abrite la « collection des portraits impériaux » (Padişah Portreleri Sergi Salonu). Il faisait partie des appartements du sultan. Les sultans ottomans sont représentés par des peintures, et par quelques rares photographies pour les derniers d'entre eux. La pièce est climatisée pour protéger les portraits. Comme les sultans se montraient rarement en public, et pour préserver les susceptibilités islamiques concernant la représentation des humains, les portraits anciens sont essentiellement des idéalisations, et ne reflètent pas la réalité. Ce n'est qu'après le règne modernisateur de Mahmoud II que des portraits réalistes ont été effectués. On peut voir un intéressant arbre généalogique des dirigeants ottomans.
Le dôme est soutenu par des piliers d'origine byzantine, une croix est clairement visible, gravée sur l'un d'eux.
Chambre privée
La « chambre privée » abrite les « chambres fortes sacrées » (Kutsal Emanetler Dairesi), qui incluent le « pavillon du Saint Manteau ». Ces pièces ont été construites par Sinan sous le règne de Murad III. Elles étaient autrefois des bureaux du sultan.
Elles abritent le manteau du prophète Mahomet, son épée, une dent, un poil de sa barbe, ses sabres de bataille, une lettre autographe et d'autres reliques connues sous le nom de Reliques Sacrées. D'autres reliques sont présentées, comme les épées des quatre premiers califes, le bâton de Moïse, le turban de Joseph, et un tapis de la fille de Mahomet. Même le sultan n'avait accès qu'une fois par an, le 15e jour du ramadan. Aujourd'hui tout le monde peut voir ces reliques et de nombreux musulmans y viennent en pèlerinage.
Les arcades ont été ajoutées sous le règne de Murad III, mais ont été altérées quand la salle des circoncisions a été ajoutée. Une arcade a peut-être été construite sur le site du temple de Poséidon, qui a été transformé avant le Xe siècle en église de Saint-Menas[22].
La chambre privée a été transformée en salle de service pour les officiels de la porte de la Félicité (saadet kapısı) dans la deuxième moitié du XIXe siècle, en ajoutant une enclave dans la colonnade de la chambre privée dans la cour Enderûn.
Harem

Le « harem impérial » (Harem-i Hümayûn) est un vaste ensemble de pièces faisant partie des appartements privés du sultan[23]. Le harem était la résidence de la mère du sultan, la sultane validé, des concubines et femmes du sultan, du reste de sa famille, y compris les enfants, et de leurs serviteurs[24]. Il consiste en une série d'immeubles et de structures reliés par des couloirs et de petites cours. Chaque noyau hiérarchique ou groupe de service résidant dans le harem avait son propre espace de vie regroupé autour d'une cour. Le harem comprend plus de 300 pièces, dont seule une faible partie est ouverte au public. Ces appartements (daireler) étaient occupés respectivement par les eunuques, le chef des eunuques du harem (Darüssaade Ağası), les concubines, la reine-mère, les épouses du sultan, les princes et les favorites. Il était interdit d'entrer dans le harem. On estime que le harem hébergeait 400 personnes : 300 femmes et 100 eunuques pour les surveiller[25]. Malgré leur statut d'esclave, il existait entre elles une hiérarchie. Au sommet : la toute puissante sultane validé, la reine-mère, puis la favorite, les concubines en titre, celles qui avaient eu des enfants du sultan, les concubines occasionnelles et enfin les novices qui entraient vers 12-15 ans et s'occupaient de tâches domestiques. Les femmes vivaient totalement recluses, mais elles jouissaient cependant d'un pouvoir d'influence immense. Elles ont su jouer des faibles moyens qu'elles avaient à leur disposition. Leurs filles, les princesses, étaient mariées au grand vizir ou à des personnages importants et endossaient souvent le rôle d'agent double, tout comme leurs eunuques, qui étaient en contact avec le monde extérieur.
Le harem n'a été construit qu'à la fin du XVIe siècle. La plupart de ses éléments ont été conçus par Mimar Sinan. Cette partie du palais s'ouvre dans la seconde cour (Divan Meydanı) par la porte des carrosses (Arabalar Kapısı). Il s'est agrandi au fil du temps le long de la Corne d'Or. Il est devenu un immense complexe. Les immeubles qui y furent construits entre son érection au XVIe siècle et le début du XIXe siècle sont représentatifs des développements stylistiques de l'art des palais. À la suite d'un incendie important en 1665, certaines parties ont été redécorées sous Osman III et Mahmoud II dans un style inspiré du baroque italien. Ces décorations contrastent avec celles de l'âge classique ottoman.

Harem : 1) La porte des Carrosses et le trésor du harem/Dôme des Placards 2) Salle des Ablutions ou Vestibule avec Şadırvan, ou Şadırvanlı Sofa 3) Cour et dortoirs des eunuques du harem - Quartiers du chef des eunuques et école des princes - porte de la volière (sortie du harem) 4) Porte principale du harem et sentinelle 5) Cour de la sultane validé - Quartiers des princes consorts, des princes, de la servante en chef, du superintendant et des serviteurs 6)Cour des concubines et des épouses - quartier de la famille du sultan - dortoirs et bain 7) Quartiers de la sultane validé 8) Hammam du sultan et de la sultane validé.
Appartements privés du sultan : 9) Salle Impériale - Les appartements d'Abdülhamid I, Selim III et Osman III 10) Salle avec cheminée - Salle avec fontaine 11) Chambre privée de Murad III - Bibliothèque d'Ahmed I et salle à manger d'Ahmed III 12) Pavillon double (appartements des princes de la couronne) 13) Terrasse et appartements des favorites / antichambre entre quartier des hommes et quartier des femmes 14) Route dorée.
Porte des carrosses / dôme des placards
L'accès depuis la seconde cour est la « porte des carrosses » (Arabalar Kapısı) qui conduit dans le « dôme des placards » (Dolaplı Kubbe). Ce vestibule a été construit en 1587 par Murad III. Le trésor du harem y était installé. Dans armoires recueillaient des actes notariés gérés par l'eunuque en chef, l'argent provenant de fondations pieuses du harem, ainsi que la comptabilité du sultan et de la famille impériale.
Salle de la fontaine des ablutions

La « salle de la fontaine des ablutions », nommée aussi « vestibule avec Şadırvan »[26] (Şadırvanlı Sofa) a été rénovée après l'incendie du harem du . Cet espace servait de hall d'entrée pour le harem ; il était gardé par les eunuques. Les accès Büyük Biniş (grande entrée), et le Şal Kapısı (la porte du châle), qui relient le harem, le jardin privé, la mosquée des eunuques du harem et la tour de justice mènent à cet endroit. Les murs sont couverts de céramiques de Kütahya du XVIIe siècle. Une stalle d'écurie devant la mosquée servait au sultan quand il allait à cheval ; les bancs servaient aux gardes. La fontaine qui donne son nom à cette pièce a été déplacée dans la piscine de la chambre de Murad III.
Sur le côté gauche, on trouve la petite mosquée des eunuques noirs. Les carrelages vert d'eau, blanc cassé et bleu médian datent du règne de Mehmed IV (XVIIe siècle). Leur dessin est d'un haut niveau artistique, mais la réalisation est assez commune en comparaison des précédentes.
Cour des eunuques

Une autre porte mène à la « cour des eunuques noirs » (Harem Ağaları Taşlığı), avec sur la gauche leurs appartements. Au fond de la cour se trouve l'appartement du chef des eunuques noirs (Kızlar Ağası), le quatrième plus important personnage du protocole officiel. Dans l'intervalle se trouve l'école des princes impériaux avec des tuiles précieuses des XVIIe et XVIIIe siècles et des lambris dorés. À l'autre bout de la cour se trouve la porte principale du harem (Cümle Kapısi). Le couloir étroit sur la gauche mène aux appartements des odalisques (des esclaves blanches données en cadeau au sultan).
Beaucoup d'appartements des eunuques donnent sur cette cour, la première du harem, parce qu'ils étaient aussi des gardes sous le commandement du chef des eunuques. Les espaces entourant cette cour ont été reconstruits après le grand incendie de 1665. Le complexe comprend le dortoir des eunuques derrière le portique, les quartiers du chef des eunuques du harem (Darüssaade Ağası), l'école des princes et des fonctionnaires du palais (Musahipler Dairesi) et une guérite de garde. La porte principale du harem et la porte de Kuşhane sur la cour d'Enderûn, sont reliées à cette cour.
Les dortoirs des eunuques du harem (Harem Ağaları Koğuşu) datent du XVIe siècle. Ils sont organisés autour d'une cour intérieure sur trois étages. L'inscription de la façade du dortoir cite les actes de fondation des sultans Mustafa IV, Mahmoud II et Abdülmecid I, remontant au XIXe siècle. Les pièces des étages supérieurs étaient destinées aux novices et celles regardant la cour étaient occupées par les eunuques ayant des fonctions administratives. Au fond se trouve une cheminée monumentale recouverte de tuiles de Kütahya du XVIIIe siècle.
Les appartements du chef des eunuques noirs du harem (Darüssaade Ağasi Dairesi) adjacents au dortoir contiennent un bain, des pièces de vie et une chambre.
La salle d'école des princes, sous le contrôle du chef des eunuques, était à l'étage supérieur. Les murs étaient recouverts de céramiques européennes au décor baroque.
Entrée principale
L'entrée principale (Cümle Kapisi) sépare le harem, dans lequel vivaient la famille et les concubines du sultan, de la cour des eunuques. La porte mène au poste de garde (Nöbet Yeri) auquel sont reliées les trois principales sections du harem. La porte à gauche du poste de garde mène par le passage des concubines à la cour des concubines (Kadınefendiler Taşlığı). La porte du milieu mène à la cour de la sultane validé (Valide Taşlığı) et la porte de droite conduit à la route dorée (Altınyol) et au-delà aux quartiers du sultan. Le grand miroir de cette pièce date du XVIIIe siècle.
Cour de la sultane validé

Après l'entrée principale et avant de tourner vers le passage des concubines se trouve la « cour de la sultane validé » [Davis 9].
Passage des concubines
Le « passage des concubines » (Cariye Koridoru) mène à la cour des concubines et des épouses. Sur les consoles, le long du passage, les eunuques posaient les plats qu'ils amenaient des cuisines dans le palais.
Cour des concubines et des épouses
La « grande cour des concubines et des épouses » (Kadın Efendiler Taşlığı / Cariye Taşlığı) a été construite à la même époque que la cour des eunuques, au milieu du XVIe siècle. Restaurée après l'incendie de 1665, elle est la plus petite cour du harem. Entourée d'arcades, elle comporte un hammam (Cariye Hamamı), une fontaine de lavage, une blanchisserie, des dortoirs, l'appartement du chef de la famille et les appartements des hôtesses[Quoi ?] (Kalfalar Dairesi).
Les trois appartements indépendants, qui ont vue sur la Corne d'Or, décorés de tuiles et avec cheminée, étaient les logements de la famille du sultan. Ces constructions couvraient le site de la cour à la fin du XVIe siècle. À l'entrée du quartier de la sultane validé, des fresques murales de la fin du XVIIIe siècle, d'influence européenne, représentent des paysages. L'escalier dit des « quarante marches » (Kirkmerdiven) permet d'accéder à l'hôpital du harem (Harem Hastanesi), aux dortoirs des concubines, à la terrasse du harem et à ses jardins.
Appartements de la sultane validé


Les « appartements de la sultane validé » (Valide Sultan Dairesi) constituent, avec les appartements du sultan, la plus grande et la plus importante section du harem[Necipoğlu 40]. Ils ont été construits après le déménagement de la sultane validé, qui a quitté le vieux palais (Eski Saray) pour Topkapı à la fin du XVIe siècle. Ces appartements ont dû être reconstruits après l'incendie de 1665, entre 1666 et 1668[Necipoğlu 41]. Certaines pièces, comme la petite pièce de musique, ont été ajoutées au XVIIIe siècle.
Seules deux pièces sont ouvertes au public : la salle à manger avec[Davis 10], dans la galerie supérieure, la salle de réception, et la chambre avec, derrière un treillis, une petite pièce pour la prière[Davis 11]. Le rez-de-chaussée accueille les appartements des quartiers des concubines, tandis qu'à l'étage se trouvent les quartiers de la sultane validé et de ses accompagnatrices (kalfas). Un passage mène, à travers les bains de la sultane validé, aux quartiers du sultan.
Ces pièces sont toutes recouvertes de tuiles bleu-blanc et jaune-vert à motifs floraux, ainsi que de porcelaine d'İznik du XVIIe siècle. Le panneau représentant la Mecque, signé d'Osman İznikli Mehmetoğlu, constitue une innovation de style pour la porcelaine d'İznik. Les peintures panoramiques des salles supérieures sont de style européen occidental des XVIIIe et XIXe siècles[Davis 12].
Au-dessus des quartiers de la sultane validé se trouvent les appartements de Mihirisah, de style rococo. Le passage en direction des bains donne accès à l'appartement d'Abdülhamid Ier. À proximité se trouve la chambre d'amour de Selim III, construite en 1790. Un corridor étroit relie cette pièce au pavillon d'Osman III daté de 1754.
Hammam du sultan et de la sultane validé

L'ensemble suivant constitue les « hammams du sultan et de la sultane validé » (Hünkâr ve Vâlide Hamamları). Ces doubles bains, qui datent de la fin du XVIe siècle, sont constitués de plusieurs pièces. Elles ont été redécorées dans un style rococo au milieu du XVIIIe siècle. Les deux hammams présentent la même structure, constituée d'un caldarium, d'un tepidarium et d'un frigidarium[Davis 13]. Chaque pièce est éclairée soit par une coupole, soit par une structure en nid d'abeilles avec des parties vitrées. Le sol est revêtu de marbre blanc et gris. La baignoire de marbre avec sa fontaine ornementale et sa grille métallique dorée qui se trouve dans le caldarium est un élément caractéristique. Le treillage doré était destiné à protéger le baigneur des tentatives d'assassinat. Les hammams du sultan ont été autrefois décorés de carreaux d'İznik de haute qualité par Sinan. Mais l'essentiel de la décoration du harem, provenant des structures endommagées par le feu de 1574, a été recyclé par le sultan Ahmet Ier pour décorer sa nouvelle Mosquée du sultan Ahmed à Istanbul. Les murs sont aujourd'hui soit recouverts de marbre, soit délavés de blanc.
Salle impériale

La « Salle impériale » (Hünkâr Sofası), ou « Salle du trône intérieure » dite aussi « Salle des diversions » est une salle à coupole qui aurait été construite à la fin du XVIe siècle. Elle a le plus grand dôme du palais. Elle servait de salle de réception officielle, ainsi qu'aux divertissements du harem. Le sultan y recevait ses confidents, ses invités, sa mère, sa première femme (Hasseki), ses accompagnateurs et ses enfants. Des spectacles, des actes de soumission durant les fêtes religieuses et des mariages avaient lieu ici en présence des membres de la dynastie[Davis 14].
Après le grand incendie de 1666, la salle a été rénovée dans un style rococo sous le règne d'Osman III. La ceinture de faïence avec des inscriptions calligraphiques qui faisait le tour des murs a été recouverte au XVIIIe siècle de porcelaine de Delft bleue et blanche et de miroirs en verre vénitien. L'arche du dôme et les pendants portent toujours des peintures classiques datant de la construction originale[Davis 15].
Le trône du sultan est au centre de la pièce. La galerie était occupée par les accompagnateurs du sultan, dirigés par la sultane validé. Les chaises dorées sont un cadeau de l'empereur Guillaume II d'Allemagne, et l'horloge un cadeau de Victoria du Royaume-Uni. Un office où sont exposés des instruments de musique et certaines autres pièces s'ouvre sur la salle impériale et donne accès aux appartements du sultan.
Une porte secrète derrière un miroir permet une entrée discrète du sultan. Une porte s'ouvre sur l'appartement de la sultane validé, l'autre sur le hammam du sultan. La porte opposée mène à une petite salle à manger (reconstruite par Ahmet III) et sur la grande chambre à coucher[Davis 16], tandis qu'une autre ouvre sur une série d'antichambres, dont la salle à la fontaine (Çeşmeli Sofa), toutes redécorées au XVIIe siècle.
Chambre privée de Murad III

La « chambre privée de Murad III » (III. Murad Has Odası), qui a conservé son intérieur d'origine, est la plus ancienne et la plus belle chambre du harem. Elle a été dessinée par le maître architecte Sinan, et date du XVIe siècle[Davis 16]. Son dôme est légèrement plus petit que celui de la salle impériale. La porte est l'une des plus belles du palais. Elle s'ouvre sur le couloir qui longe l'aile des princes de la couronne (Kafes). Elle est décorée de faïences d'İznik bleu, blanc et rouge corail[Davis 16]. Les motifs floraux sont renforcés par des bordures orange datant des années 1570. Un bandeau de céramiques calligraphiques fait le tour de la pièce au niveau du plateau et de la porte. Les motifs en arabesques du dôme ont été redorés et repeints en noir et rouge. La grande cheminée à la hotte dorée (ocak) fait face à une fontaine à deux niveaux (çeşme), soigneusement ornée de marbre coloré. Le bruit de l'écoulement devait empêcher toute écoute, tout en produisant une atmosphère relaxante. Les deux baldaquins dorés datent du XVIIIe siècle.
Chambre privée d'Ahmet Ier

De l'autre côté par rapport à la grande chambre à coucher se trouvent deux pièces plus petites. La première est la « chambre privée d'Ahmet Ier » (I. Ahmed Has Odası), richement décorée de carreaux d'émail d'İznik[Davis 17]. La porte de la pièce, les armatures de fenêtre, une petite table et un lutrin sont décorés de nacre et d'ivoire.
Chambre privée d'Ahmet III
À côté se trouve la « chambre privée d'Ahmet III » (III. Ahmed Has Odası), petite, mais très colorée, avec des murs peints de dessins floraux et de coupes de fruits entremêlés dans les carreaux qui couvrent la cheminée (ocak)[Davis 18]. Pour cette raison, la pièce porte aussi le nom de « salle aux fruits » (Yemis Odası). Elle était probablement utilisée pour des repas.
Pavillon double, ou appartements des princes de la Couronne


Le « pavillon double », nommé aussi « appartements des princes de la Couronne » (Çifte Kasırlar / Veliahd Dairesi), consiste en deux chambres construites au cours du XVIe siècle. L'immeuble, relié au palais, est constitué d'un rez-de-chaussée construit sur une plate-forme élevée qui procure une bonne vue sur l'extérieur, tout en étant protégée des regards.
L'intérieur comporte deux grandes pièces, datant soit du règne de Murad III, soit, plus probablement, du règne d'Ahmet Ier[Davis 19]. Le plafond n'est pas plat, mais conique, dans le style du kiosque. Il évoque les tentes traditionnelles des premiers Ottomans. Dans ces tentes, il n'y avait pas de meubles en hauteur, mais des divans disposés le long des murs. Le sol est recouvert de tapis. Ces pièces présentent tous les caractères du style classique, utilisé dans d'autres parties du palais.
Le pavillon a été entièrement redécoré et la plupart des boiseries baroques ont été retirées. Les tuiles décoratives, reflétant la grande qualité des fabriques d'İznik du XVIIe siècle[Davis 20], ont été remplacées par des copies modernes, en accord avec le concept d'origine. La fresque du dôme de bois est d'origine, et est un exemple des riches travaux de la fin du XVIe et du début du XVIIe siècle. La cheminée de la seconde pièce, avec sa grande hotte dorée, a été restaurée dans son apparence d'origine[Davis 21]. Les fenêtres proches de la cheminée sont décorées d'intarsio de nacre. Les fenêtres de verre coloré donnent sur la haute terrasse et le jardin de la piscine située en dessous. Les robinets de ces fenêtres sont entourés de fresques en rouge, noir et doré.
Les princes de la Couronne (Şehzadeler) vivaient reclus dans ces pièces, qui sont connues sous le nom de kafes (cage). Les princes y étaient éduqués dans la discipline du harem jusqu'à l'âge adulte. Ils étaient ensuite nommés gouverneurs de provinces d'Anatolie, où ils étaient entraînés à la gestion des affaires d'État. À partir du début du XVIIe siècle, les princes vécurent dans le harem, qui commença à jouer un rôle dans l'administration du palais. Le pavillon double a été utilisé comme chambre privée des princes de la couronne à partir du XVIIIe siècle.
Cour des favorites

La « cour des favorites » (Gözdeler / Mabeyn Taşlığı ve Dairesi) est la dernière partie du harem. Elle domine une grande piscine et le « jardin de buis » (Şimşirlik Bahçesi)[Davis 21]. La cour a été constituée au XVIIIe siècle par l'ajout des appartements intermédiaires (Mabeyn) et des appartements des favorites (İkballer). Les appartements des dames de compagnie des favorites et la partie Mabeyn, au rez-de-chaussée, incluent aussi la salle des miroirs. C'était le lieu où Abdülhamid Ier vivait avec son harem[Davis 22]. L'appartement est décoré de boiseries rococo.
Les favorites du sultan (Gözdeler / İkballer) étaient considérées comme les instruments de la perpétuation de la dynastie selon l'organisation du harem. Quand les favorites tombaient enceintes, elles assumaient les titres et les pouvoirs de l'accompagnatrice officielle du sultan (Kadınefendi).
Route dorée

La « route dorée » (Altınyol) est un étroit passage remontant au XVe siècle, qui forme l'axe du harem. Il s'étend entre la cour des eunuques du harem (Harem Ağaları Taşlığı) et la chambre privée (Has Oda). Le sultan utilisait ce passage pour rejoindre le harem, la chambre privée et le Sofa-i Hümâyûn, la terrasse impériale.
La cour de la sultane validé (Valide Sultan Taşlığı), la cour des concubines et des épouses (Baş Haseki), les appartements des princes (Şehzadegân Daireleri), et les appartements du sultan (Hünkâr Dairesi) s'ouvrent sur ce passage. Les murs sont peints en blanc.
La dénomination dorée serait peut-être due au fait que le sultan avait l'habitude d'y jeter des pièces d'or pour les concubines durant les fêtes, mais cela est contesté[Davis 23].
Volière, porte du harem
Jusqu'à la fin du XIXe siècle, une petite cour intérieure, dans ce coin de la cour d'Enderûn, permettait d'accéder au harem par la porte Kuşhane. C'est aujourd'hui la porte par laquelle les visiteurs sortent du harem. Des oiseaux étaient élevés pour la table du sultan dans les bâtiments entourant la porte. L'une des inscriptions au-dessus de la porte Kuşhane indique que Mahmud Ier a fait réparer les cuisines de Kuşhane. Le balcon de la volière face à la porte a été construit lors d'une réparation en 1916. La façade du bâtiment rappelle les volières traditionnelles.
Quatrième cour
La « quatrième cour » (IV. Avlu), nommée aussi « sofa impérial » (Sofa-ı Hümâyûn) était le lieu le plus intime du sultan et de sa famille. Il consiste en un ensemble de pavillons, kiosques (köşk), jardins et terrasses. Il faisait initialement partie de la troisième cour. Mais il est aujourd'hui considéré séparément, pour mieux le percevoir[27].
Salle des circoncisions

En 1640, le sultan Ibrahim Ier fait construire la « salle des circoncisions » (Sünnet Odası), un kiosque d'été (Yazlik Oda) destiné à la circoncision des jeunes princes, qui est un rite de passage essentiel de l'Islam. Ses murs intérieurs et extérieurs sont décorés d'éléments recyclés, tels que les carreaux de faïence bleue à motifs floraux, à l'extérieur. Les plus importants sont les panneaux de faïence bleus et blancs de la façade, datés de 1529 et inspirés de la céramique asiatique. Ces panneaux ornaient autrefois les bâtiments de cérémonie du sultan Süleyman Ier, tels que la chambre du conseil et le trésor intérieur (tous deux dans la seconde cour), et la salle du trône (dans la troisième cour). Ils ont été déplacés ici par nostalgie, et révérence envers l'âge d'or de son règne. Ces panneaux ont servi de modèles pour la décoration des kiosques d'Erevan et de Bagdad. La pièce elle-même est symétrique, et relativement spacieuse pour le palais, avec des fenêtres agrémentées chacune d'une petite fontaine. Certaines fenêtres supérieures sont décorées de vitraux. À droite de l'entrée se trouve une cheminée avec une grille dorée. Le sultan Ibrahim a aussi construit les arcades et le toit surplombant la chambre du manteau sacré, ainsi que la terrasse supérieure entre sa chambre et le kiosque de Bagdad.
L'architecte royal Koca Kasım Ağa, sous le règne de Murad IV, a construit durant les années 1635-1636 le « kiosque d'Erevan » (Revan Köşkü) puis, en 1638-1639, le « kiosque de Bagdad » (Bağdat Köşkü), pour célébrer les victoires ottomanes à Erevan et Bagdad. Tous deux ont des gouttières larges, un dôme central et un intérieur avec des coupoles et des tesselles de nacre. Tous deux sont construits suivant le classique plan à quatre iwans, avec des divans remplissant l'intérieur.
Kiosque d'Erevan

Le « kiosque d'Erevan » (Revan Köşkü) servait pour des retraites religieuses de quarante jours. C'est un petit pavillon avec un dôme central et trois absides abritant les divans. La porte et une cheminée se trouvent sur le quatrième mur. Le mur de la colonnade est plaqué de marbre, les autres sont recouverts de carreaux d'İznik à faible coût, bleues et blanches, reproduisant des motifs de tuiles anciennes.
Kiosque de Bagdad

Le « kiosque de Bagdad » (Bağdad Köşkü) est situé sur le côté droit de la terrasse avec fontaine. Il a été construit pour commémorer la campagne de Murad IV à Bagdad après 1638.
Il ressemble beaucoup au kiosque d'Erevan. Les trois portes vers le porche sont situées entre les divans. La façade est recouverte de marbre et de bandes de porphyre rouge et vert antique. Les panneaux de marbre du portique sont exécutés dans le style des mamelouks du Caire. L'intérieur est un exemple d'une pièce ottomane idéale. Les compartiments et les étagères des renfoncements sont décorés de faïences vertes, jaunes et bleues du début du XVIe siècle. Les carreaux bleus des murs sont des copies de ceux de la salle des circoncisions, juste de l'autre côté de la terrasse. Avec ses carreaux du XVIIe siècle, sa nacre, sa décoration d'écailles et ses vitraux, ce pavillon est l'un des derniers exemples de l'architecture classique des palais.
Les portes sont finement gravées. Sur la droite de l'entrée se trouve une cheminée avec une grille dorée. Au milieu de la pièce trône un mangal (brasero à charbon) d'argent, présent du roi Louis XIV de France. À partir du milieu du XVIIIe siècle, ce kiosque a été utilisé comme bibliothèque de la chambre privée.
Pavillon d'İftar

Le « pavillon d'İftar », nommé aussi « kiosque d'İftar » ou « baldaquin d'İftar » (İftariye Köşkü ou İftariye Kameriyesi) offre une belle vue sur la Corne d'Or. Sa voûte striée en berceau et son toit doré sont une première dans l'architecture ottomane, faisant écho à la Chine et à l'Inde. Le sultan aurait eu l'habitude de rompre le jeûne dans cette tonnelle durant le mois du ramadan, après le coucher du soleil. Certaines sources mentionnent ce lieu de repos comme le « siège éclairé par la lune ». Des cadeaux particuliers, comme la douche de pièces d'or pour les officiels donnée par le sultan, étaient parfois remis ici. La terrasse de marbre a pris son aspect actuel sous le règne du sultan Ibrahim Ier (1640-1648).
Kiosque de la terrasse

Le rectiligne « kiosque de la terrasse » (Sofa Köşku / Merdiven Başı Kasrı), nommé aussi par erreur « pavillon de Mustafa Pasha » (Mustafa Paşa Köşkü), est un belvédère construit dans la deuxième moitié du XVIe siècle. Il a été restauré en 1704 par le sultan Ahmed III et reconstruit en 1752 par Mahmud Ier dans le style rococo. C'est le seul immeuble en bois, dans la partie la plus intérieure du palais. Il est constitué de deux pièces dont l'arrière est supporté par des colonnes.
Le kiosque est composé de la pièce principale, nommée Divanhane, de la salle de prière (Namaz Odası or Şerbet Odası), et de la pièce aux jus de fruits. Du pavillon, le sultan assistait à des événements sportifs et des divertissements organisés dans le jardin. Ce bâtiment ouvert de larges fenêtres était à l'origine une salle de repas ; plus tard durant l'ère des Tulipes (1718-1730), il a été utilisé comme chambre pour les invités. Il est situé à proximité du jardin des tulipes.
Tour du précepteur en chef, salle du médecin principal

La tour carrée nommée « tour du précepteur en chef » (Başlala Kulesi), nommée aussi « salle du médecin principal » et pharmacie de la cour (Hekimbaşı Odası ve ilk eczane), date du XVe siècle, probablement du règne de Mehmet II. C'est le plus vieux bâtiment de la quatrième cour. Elle a été construite pour être une tour de garde, comportant peu de fenêtres et des murs de près de deux mètres d'épaisseur. Le médecin avait sa chambre au sommet, le rez-de-chaussée étant occupé par la pharmacie du palais.
La première pharmacie de la cour a été établie durant le règne de Mehmet II. Il en existait d'autres, ainsi que des infirmeries dans le palais. Selon la légende, Enderunlu Tayyar Efendi, qui était précepteur en chef (Baş Lala) durant le règne de Selim III, aperçut du haut de cette tour les rebelles venus assassiner le sultan et alerta ses partisans. L'historien Afa indique que cette tour avait au moins deux étages de plus que les deux qu'elle conserve aujourd'hui.
Le médecin principal (Hekim Başı) et le précepteur en chef partageaient cet endroit. Le médecin était responsable de la santé du sultan et de la famille impériale, et préparait ici ses remèdes. Sous son contrôle, les médications étaient préparées, scellées dans des bouteilles, des jarres ou des bols, puis remises aux patients.
Le médecin principal était aussi un familier du sultan, qu'il accompagnait même sur le champ de bataille. Ce poste était traditionnellement occupé par des juifs. Après le XVIIe siècle, de plus en plus de musulmans occupèrent le poste, qu'ils partageaient avec des juifs et des européens. Le dernier médecin-chef fut Abdülhak Molla, qui vécut durant le règne du sultan Abdülmecit Ier. Après son règne, les sultans ont quitté Topkapı, la tour fut utilisée comme conservatoire de musique, puis pour l'entretien des armes du palais. Elle fut restaurée en 1911 et abrite la collection d'objets médicaux.
Trône de pierre
Un « trône de pierre » (Taş Taht) a été construit pour Murat IV afin qu'il puisse surveiller les activités sportives des pages. Les inscriptions indiquent qu'en 1636, Murat IV, sportif accompli, lança une trique de chêne à 120 mètres depuis son cheval.
Grand pavillon

Le « grand pavillon », appelé aussi « grand kiosque », « Kiosque Mecidiye » ou « pavillon d'Abdülmecit Ier » (Mecidiye Köşkü), construit en 1840, fut le dernier ajout significatif au palais, avec la « garde-robe » (Esvap Odası) attenante. Les deux furent construits sur l'ordre du sultan Abdülmecit Ier en tant que salle de réception impériale, du fait de sa situation. Il offre en effet une splendide vue panoramique sur la mer de Marmara et le Bosphore. Les sultans s'installaient ici lorsqu'ils visitaient Topkapı[28]. Ces constructions ont été érigées sur les fondations voûtées d'un autre pavillon datant du XVe siècle. L'architecte Sarkis Balyan l'a construit dans un style éclectique européanisant, mêlé au style traditionnel ottoman. L'intérieur est meublé dans le style Empire. Ces deux bâtiments ont été utilisés occasionnellement pour héberger des invités étrangers.
Mosquée de la terrasse

La « mosquée de la terrasse », ou encore « mosquée du sofa » (Sofa Camii), a été construite par le sultan Mahmoud II dans le style Empire pour le corps nommé Sofa Ocağ durant le XIXe siècle. Le « kiosque du porteur de l'épée » (Silahdar Köşkü) occupait autrefois cet emplacement. L'inscription sur la porte de la mosquée indique qu'elle a été restaurée par le sultan Abdülmecit Ier en 1858.
À proximité du grand pavillon se trouve un restaurant très réputé. Il a été visité par des célébrités telles que la reine Élisabeth II, la première dame Jackie Kennedy, le président Richard Nixon, et le boxeur Mohamed Ali, parmi beaucoup d'autres[29]. La terrasse du restaurant offre une vue panoramique sur le Bosphore et la rive asiatique. La plupart des touristes viennent ici pour photographier la mer et la ville.

Jardins extérieurs
Les jardins extérieurs du palais s'étendent tout autour du complexe formé par les quatre cours. Certaines parties qui séparent le palais de la mer sont parfois désignées sous le nom de « cinquième place ». Des pavillons, au bord de mer, ont disparu avec la construction du chemin de fer, à la fin du XIXe siècle. On comptait le pavillon de plage, le pavillon de perle, le pavillon de marbre et le kiosque des vanniers, qui est la dernière structure encore en place.
À proximité de la première cour, en direction de la ville se trouve le parc Gülhane, l'ancienne roseraie impériale, aujourd'hui un jardin public. À la porte du parc se trouve le pavillon de parade.
Des trois autres pavillons dus à Mehmet II, seul le pavillon aux faïences (Çinili Köşkü) a survécu. Ce bâtiment, qui date de 1473 environ, abrite aujourd'hui la collection de céramiques islamiques du musée archéologique d'Istanbul.
Arbres

La plupart des arbres du palais sont remarquables en ce que la plupart d'entre eux sont victimes d'un champignon parasite qui en a complètement évidé le tronc au cours des siècles, même si les arbres sont toujours en vie aujourd'hui. Dans certains cas, deux arbres différents ont grandi et fusionné ensemble, comme un figuier qui a grandi dans le tronc creux d'un autre arbre. Ce phénomène peut être constaté parmi les arbres de la seconde cour.
Fac-similés
L'hôtel World Of Wonders Resorts & Hotels Topkapi Palace à Antalya présente des copies de certains bâtiments du palais, comme la salle d'audience, les cuisines et la tour de justice[30].
Annexes
Articles connexes
- Palais de Dolmabahçe, résidence impériale de 1853 à 1889, puis de 1909 à 1922.
- Palais de Yıldız, résidence impériale de 1889 à 1909.
- Empire ottoman
- Organisation de l'Empire ottoman
- Histoire de la Turquie
- Dynastie ottomane
- Art de l'empire ottoman
- Corne d'Or
- Liste de musées en Turquie
- Topkapi, film de Jules Dassin (1964)
- (en) Cet article est partiellement ou en totalité issu de l’article de Wikipédia en anglais intitulé « Topkapı Palace » (voir la liste des auteurs).
Liens externes
- (fr) Insecula Topkapı
- (en) Visite virtuelle du palais de Topkapı
- (tr) Palais nationaux en Turquie
- (tr) « Konyalı Restaurant »(Archive.org • Wikiwix • Archive.is • Google • Que faire ?) (consulté le )
- (en) Bilkent University | Site d'Informations
- (en) Photos de Topkapi & Soliman le Magnifique
Sources de l'article
- (en) Gülru Necipoğlu, Architecture, ceremonial, and power : The Topkapi Palace in the fifteenth and sixteenth centuries., Cambridge (Massachusetts), The MIT Press, , 336 p. (ISBN 0-262-14050-0)

- p. 3
- p. 6
- p. 8
- p. 9
- p. 23
- p. 4
- p. 15
- p. 16-17
- p. 20
- p. 36
- p. 38-39
- p. 46-50
- p. 46
- p. 44
- p. 51
- p. 52
- p. 50
- p. 53
- p. 64-66
- p. 70.
- p. 72.
- p. 73
- p. 74-75
- p. 82
- p. 83
- p. 86
- p. 85
- p. 84-86
- p. 87
- p. 88
- p. 89-90
- p. 90
- p. 95
- p. 98-99
- p. 100
- p. 108-109
- p. 100-101
- p. 109-110
- p. 101
- p. 177
- p. 178
- (en) Fanny Davis, The Palace of Topkapi in Istanbul, New York, Charles Scribner's Sons, , 306 p. (ISBN 978-1-121-25020-8).

- p. 26-27
- p. 67
- p. 71
- p. 73-76
- p. 75
- p. 116-118
- p. 114
- p. 113
- p. 218-221
- p. 222
- p. 223
- p. 178
- p. 231
- p. 232-233
- p. 233
- p. 237
- P. 243
- p. 243-244
- p. 247
- p. 248
- p. 249
- p. 253-256
- p. 209
- (en) Regina Krahl, Nurdan Erbahar et John Ayers, Chinese ceramics in the Topkapi Saray Museum, Istanbul : a complete catalogue, New York, Sotheby's Publications, (ISBN 0-85667-184-3)

- (en) Takatoshi Misugi, Chinese Porcelain Collections in the Near East : Topkapi and Ardebil, Volume One, Hong Kong, Hong Kong University Press, (ISBN 962-209-004-4)

- (en) Claire Karaz, Topkapi Palace : Inside and Out : a guide to the Topkapi Palace Museum and grounds, Istanbul, Çitemblik Publications, , 104 p. (ISBN 975-6663-49-9)

- (en) Patricia Baker et Ahmet Ertug, Silks for the Sultans; Ottoman imperial garments from the Topkapi palace, Istanbul, Ertug & Kocabiyik,

- (en) Musée du Palais de Topkapı, The Imperial Treasury, Istanbul, MAS Publications, (ISBN 975-7710-04-0)

- (en) Mazhar Şevket İpşiroğlu, Masterpieces from the Topkapı Museum : paintings and miniatures, Londres, Thames and Hudson, (ISBN 0-500-23323-3)

- Verity Campbell (trad. de l'anglais), Turquie, Paris, Lonely Planet, , 700 p. (ISBN 978-2-84070-651-9, BNF 41104772)

Autres ouvrages
- Fahir Iz, Topkapi, le palais des sultans, Paris, Éditions Atlas, coll. « Les passeports de l'Art », , 76 p. (ISBN 2-7312-0159-2)
- Ali Ufkî, éd. présentée et annot. par Annie Berthier et Stéphane Yerasimos, Topkapi : relation du sérail du grand seigneur : Albertus Bobovius, Arles, Actes Sud-Sindbad, , 164 p. (ISBN 2-7427-2172-X)
- Édouard de la Croix, édité par Corinne Thépaut-Cabasset, Le sérail des empereurs turcs : relation manuscrite du sieur de La Croix à la fin du règne du sultan Mehmed IV, Paris, éditions du CTHS, , 62 p. (ISBN 978-2-7355-0647-7)
- Tansel Ratlas, transcription et présentation Jean-Marc Truchet, Au-delà de la porte de la félicité, Guilherand-Granges, Guilherand-Granges, coll. « Histoire », , 62 p. (ISBN 2-913788-38-6)
Pour une bibliographie détaillée en anglais, consulter (en) l'article anglais
Notes et références
- Avec le "i" sans point turc, qui se prononce plus proche de "é" que de "i, qui existe aussi dans cette langue.
- Olivier Bouquet : Pourquoi l'Empire ottoman ? : Six siècles d'histoire, 2022, Éditeur Folio; édition illustrée (ISBN 2072941431).
- UNESCO | 2006 Rapport périodique.
- (tr) « Topkapı Sarayı, 2018'de en çok ziyaret edilen müze oldu », sur hurriyet.com.tr, (consulté le ).
- Bilkent University | Historical background of the Topkapı Palace
- (en) « 1465 », The Encyclopedia of World History, (consulté le )
- « Topkapı Palace Museum »(Archive.org • Wikiwix • Archive.is • Google • Que faire ?)
- voir cette eau-forte ou ce Détail issu du manuscrit Hünername - XVIe siècle.
- Topkapı Palace Museum | I. Cour / Alay Meydanı
- Miniature du XVIe siècle (Hünername)
- Topkapı Palace | II. Courtyard / Divan Square
- Regina Krahl, Nurdan Erbahar, John Ayers 1986.
- Takatoshi Misugi 1981, p. 211-214
- Claire Karaz 2004, p. 40-41.
- Takatoshi Misugi 1981, p. 215-235.
- (en) « III. Courtyard / Enderun Avlusu », Musée du palais de Topkapı (consulté le )
- Claire Karaz 2004, p. 47-48
- Patricia Baker, Ahmet Ertug 1996
- Musée du Palais de Topkapı 2001
- trône de (tr)bayram
- Mazhar Şevket İpşiroğlu 1980
- (tr) A. Ongan, « 1937 yılında Türk Tarih Kurumu tarafından yapılanTopkapı Sarayı hafriyatı (Les fouilles du palais de Topkapı conduites par la société historique turque en 1937) », Belleten, vol. iv, , p. 318–355
- Les pièces présentées ici sont seulement celles qui sont ouvertes au public en 2008.
- (en) Musée de Palais de Topkapı, « Harem » (consulté le )
- Mehrdad Kia, Daily Life in the Ottoman Empire, Santa Barbara, Greenwood Publishing Group, 2011, p. 39.
- (tr)Şadırvan signifie « fontaine des ablutions ».
- (en) Musée du palais de Topkapı, « IV. Courtyard / Sofa-i Hümayun » (consulté le )
- Ils habitaient à partir de 1853 dans des palais au bord de mer, comme le palais de Dolmabahçe.
- (en) « Restaurant Konyalı » (consulté le )
- (en) « WOW Topkapi Palace in Kundu-Antalya » (consulté le )
- Portail des châteaux
- Portail du patrimoine mondial
- Portail des musées
- Portail de l’Empire ottoman
- Portail d'Istanbul
- Portail de la monarchie





