Hôtel des Invalides
L'hôtel des Invalides est un ensemble architectural parisien situé dans le 7e arrondissement[2], dont la construction remonte au XVIIe siècle. Elle a en effet été ordonnée par Louis XIV le [3] dans le but d'accueillir les soldats invalides de ses armées.
Demeuré fidèle à cette mission, il est également aujourd'hui le siège de différentes autorités militaires, comme le gouverneur militaire de Paris, et héberge plusieurs organismes consacrés à la mémoire des anciens combattants et au soutien des soldats blessés. Il abrite aussi la cathédrale Saint-Louis-des-Invalides, plusieurs musées et une nécropole militaire, dont l'élément principal est le tombeau de Napoléon Ier.
Ce vaste complexe architectural, conçu par Libéral Bruand et Jules Hardouin-Mansart, est l'un des chefs-d’œuvre de l'architecture classique française.
Situation
L'hôtel des Invalides est installé sur la rive gauche de la Seine, non loin du Champ-de-Mars et de la tour Eiffel. Il se trouve au niveau du pont Alexandre-III, dont il est séparé par l'esplanade des Invalides, face (sur la rive droite) à l'avenue des Champs-Élysées, au Grand Palais et au Petit Palais.
Il est relié au centre de Paris (5e et 6e arrondissements) par la rue de Grenelle, la rue de l'Université et la rue Saint-Dominique.
En ce qui concerne le métro, il est desservi par les stations Invalides, Varenne et La Tour-Maubourg.
Histoire
Origines du projet




Les prédécesseurs de Louis XIV
Le projet d'un hôtel des Invalides en France existe depuis le règne d'Henri II. Il a reçu un début d'application sous Henri III[5] puis sous Henri IV[6]. En 1634, sous le règne de Louis XIII, Richelieu fait transformer le château de Bicêtre en un établissement pour l'entretien des soldats invalides (la « commanderie Saint-Louis »)[7].
Louis XIV reprend cette idée à partir de 1659 (traité des Pyrénées).[réf. nécessaire]
Motivations du roi
L'édit royal du indique que le roi souhaite assurer aide et assistance aux soldats invalides ou trop âgés de ses armées, afin que « ceux qui ont exposé leur vie et prodigué leur sang pour la défense de la monarchie (…) passent le reste de leurs jours dans la tranquillité ».
Mais Louis XIV a aussi des objectifs politiques. En premier lieu, les invalides, issus pour la plupart de la guerre de Trente Ans[réf. nécessaire] (1618-1648), sans occupation et sans revenus, deviennent une population vue comme dangereuse, en proie à la mendicité, au vagabondage et au chapardage, ce qui cause des troubles à l'ordre public, surtout lorsqu'ils s'organisent en bandes se livrant au brigandage (Jacques Callot illustre en 1632 le sort de ces soldats sans solde dans Les Grandes Misères de la guerre)[8]. La population se plaint de leur comportement. Le roi a tenté de placer les invalides dans certains monastères en les imposant comme oblats[7], mais aussi bien les intéressés que les responsables ecclésiastiques sont en désaccord avec cette pratique, les premiers refusant une vie aussi stricte que celle de la vie monacale et préférant être valets, commensaux de maladreries ou de couvents[pas clair], mendiants, voire devenir voleurs.
En second lieu, Louis XIV ayant des projets de conquête, il doit d'une part redorer l'image de l'armée auprès de la population, d'autre part redorer sa propre image aux yeux des soldats[9].
L'édit de 1670
Le projet de Louis XIV ne se concrétise qu'en 1670, lorsque le roi crée, par ordonnance royale du , l'hôtel des Invalides destiné aux militaires âgés, blessés ou inaptes à la guerre.
Louis XIV précise ses intentions : « Nous avons estimé qu'il n'était pas moins digne de notre pitié que de notre justice, de tirer hors de la misère et de la mendicité les pauvres Officiers et Soldats de nos Troupes, qui ayant vieilli dans le service, ou qui dans les guerres passées ayant été estropiés, étaient non seulement hors d'état de continuer à Nous en rendre, mais aussi de rien faire pour pouvoir vivre et subsister ; et qu'il était bien raisonnable que ceux qui ont exposé librement leur vie et prodigué leur sang pour la défense et le soutien de cette Monarchie […] jouissent du repos qu'ils ont assuré et passent le reste de leur jours en tranquillité »[10].
L'établissement, qui répond aux fonctions d'hôpital, d'hospice, de caserne et de couvent doit être exempté d'impôts. Son administration revient à un gouverneur. L'entretien des pensionnaires repose sur des prélèvements sur les revenus des prieurés et des abbayes[11].
Construction de l'hôpital (1671-1674)
L'emplacement retenu est la plaine de Grenelle, dans le quartier du Gros Caillou, alors faubourg de Paris. Louvois, secrétaire d'État à la Guerre, confie les travaux des bâtiments principaux (logements, infirmerie, réfectoire) à Libéral Bruant, architecte du roi, qui a déjà réalisé l'hospice de la Salpêtrière. Son projet, sélectionné par Louis XIV parmi huit, propose quatre corps de logis et cours intérieurs centrés autour d'une cour royale. Ce plan à cours multiples dans la tradition de l'architecture monastique et hospitalière reprend ainsi celui de l'Escurial, le palais-monastère de Philippe II d'Espagne, près de Madrid, et des hôpitaux de l'époque (la Salpêtrière, l'hospice des Incurables)[12].
Les travaux débutent en mars 1671, la première pierre est posée le et tous les bâtiments, à l'exception de l'église et de l'infirmerie, sont achevés en février 1674 grâce à l'aide que lui apportent Louvois et ses intendants, les trois frères Camus. Durant le règne de Louis XIV, c'est le deuxième chantier en importance (coût total, près de deux millions de livres tournois après celui du château de Versailles (68 millions de livres tournois)[13].
En octobre 1674, Louis XIV inaugure l'hôtel, qui ouvre ses portes aux premiers pensionnaires.
Construction de l'église (1674-1706)
La face arrière de la grande cour est cependant détruite, moins d'un an après son achèvement, pour laisser place aux fondations du grand dôme. Les matériaux de construction, notamment la pierre de craie, sont débarqués au niveau d'un port aménagé sur la Seine au niveau du futur pont Alexandre-III[14].

L'église royale, initialement prévue par Bruant, bute sur la construction. Louvois, qui y voit l'occasion de mettre à l'écart l'un des protégés de son rival, Colbert, détourne Bruant vers d'autres travaux de ponts et chaussées et confie l'ouvrage à partir de mars 1676 à Jules Hardouin-Mansart qui travaille également aux pavillons d'entrée et aux infirmeries.
La construction de l'édifice religieux, ralentie par les restrictions de Colbert, dure près de trente ans. Après sa mort, en 1683, Louvois le remplace au ministère, quadruple la mise initiale de cent mille livres que Colbert avait alloué à la construction du dôme, se fait très présent sur le chantier et n'hésite pas à harceler les fournisseurs en pierre retardataires tel que Carel. Le , Hardouin-Mansart remet les clefs du Dôme au Roi-Soleil.
Louvois et les Invalides
Louvois, particulièrement attaché aux Invalides, souhaitait y être inhumé après sa mort. Il est bien inhumé dans l'église le , mais le , son cercueil est transféré dans l'église du couvent des Capucines, qu'il a fait construire près de la place Vendôme. On soupçonne Madame de Maintenon, épouse morganatique du roi et adversaire de Louvois, d'avoir fait retarder la construction de son mausolée car le roi n'avait pas libéré les crédits à cet effet.[pas clair]
Louvois reste néanmoins présent aux Invalides par un jeu de mots en rébus : la décoration d'armes d'une des lucarnes présente, de façon assez étrange, un loup sortant la tête de hautes herbes et fixant la cour : c'est-à-dire « d'ici, le loup voit »[15].
Les Invalides sous l'Ancien Régime

%252C_RP-P-1925-1199.jpg.webp)
L'hôtel devient rapidement un lieu de promenade pour les Parisiens, qui se mêlent aux militaires qui y résident. Les cérémonies qui s'y déroulent attirent aussi de nombreux spectateurs.
En avril 1717, au début de la Régence, le tsar de Russie Pierre le Grand y fait une visite.
L'hôtel des Invalides est délaissé par les successeurs de Louis XIV. Louis XV n'y est jamais venu, et Louis XVI seulement à de rares occasions, saluant toujours la performance de cette institution[réf. nécessaire].
Les Invalides durant la Révolution française (1789-1799)


Le 5 mai 1789 a lieu la première réunion des États généraux du royaume, qui deviennent l'Assemblée nationale constituante le 9 juillet. Le 11 juillet, le renvoi du ministre des Finances Necker suscite l'inquiétude des patriotes parisiens qui se croient menacés d'une attaque par les troupes royales. Paris entre en insurrection le 13 juillet, à l'instigation notamment de Camille Desmoulins.
Les Invalides à la veille de l'insurrection parisienne
Le gouverneur des Invalides, Charles François de Virot de Sombreuil, sait que ce climat de révolte est présent jusque chez les pensionnaires de son institution.
Le gouverneur et son état-major sont victimes de l'impopularité des réformes lancées par le comte de Saint-Germain, ministre de la Guerre de Louis XVI.
Certains invalides sont proches des loges maçonniques et les soldats rescapés du corps expéditionnaire français en Amérique (Rochambeau[17]) entretiennent de la sympathie pour le mouvement révolutionnaire.
Les événements du 13 juillet 1789
Lundi , à la nuit tombée, des barricades sont dressées dans Paris. Le baron Pierre-Victor de Besenval, lieutenant général des armées du roi et colonel du régiment des gardes suisses, est chargé de la protection de la ville. Face à la menace, il se retranche avec ses troupes dans son camp installé au champ de Mars. La foule s'arme de bâtons et pille le couvent Saint-Lazare.
Dans la soirée, Sombreuil reçoit une demande de fournir des armes au peuple, à laquelle il ne donne pas suite. Au contraire, il charge vingt invalides de retirer les chiens des fusils afin de les rendre inutilisables. Mais sans doute pour soutenir l'action révolutionnaire, ce travail n'avance pas et est abandonné.[réf. nécessaire]
14 juillet 1789
Le lendemain, , à sept heures du matin, le Comité permanent des électeurs de Paris[18], siégeant à l'hôtel de ville, envoie Ethis de Corny, procureur du roi, réclamer les armes stockées aux Invalides.
Il arrive à neuf heures avec une escorte armée. Le gouverneur, ne disposant que de sa garde et d'une compagnie d'artillerie, refuse de livrer les armes sans ordres formels du roi. Il explique à Ethis de Corny qu'un courrier est parti pour Versailles et lui demande d'attendre la réponse. Mais la foule qui se masse autour des Invalides refuse ce délai et se lance à l'assaut du bâtiment. L'ordre est donné aux artilleurs de faire feu sur la foule mais il n'est pas suivi. Les invalides eux-mêmes ouvrent les grilles. La foule s'empare de 32 000 fusils et de 27 canons qui vont être utilisés pour la prise de la Bastille.
Le 14 juillet au soir, Paris est aux mains du parti patriote et de la Commune de Paris. Le marquis de La Fayette devient commandant en chef de la Garde nationale, créée à ce moment, et accueille ensuite le roi avec le nouvel emblème de la France : la cocarde bleu-blanc-rouge.
Destin des Invalides : le statut de 1791
Le , Sombreuil ne peut calmer ses hommes. Il donne sa démission, refusée par le roi, qui lui demande d'attendre que l'Assemblée constituante prenne une décision quant au sort de l'institution.
Le dossier est examiné en 1791 par l'Assemblée, qui charge Edmond Louis Alexis Dubois-Crancé du dossier (il est déjà chargé du dossier de la réorganisation de l'armée). Celui-ci souhaite la fermeture de l'hôtel pour faire des économies et augmenter la solde des 30 000 soldats invalides répartis dans tout le pays. Les malades seraient alors répartis dans les 83 « hospices de la Patrie » que la Constituante cherche à créer. Le bâtiment serait revendu à la Commune de Paris, qui pourrait le réutiliser comme prison. Le projet est débattu, les invalides eux-mêmes sont divisés, l'abbé Jean-Sifrein Maury est l'un des plus grands détracteurs de l'idée d'une fermeture d'un établissement qu'il juge être « un exemple pour toute l'Europe ».
Le 1791, l'Assemblée décide le maintien de l'institution et de son statut, sous le nom d'« hôtel national des militaires invalides », à la charge d'un comité électif du département de la Seine. Ce nouveau statut est contesté par une partie du personnel, entre autres par un héros de la Bastille, Cordier, et par la responsable de l'infirmerie, la veuve Piat.
Les Invalides au début de la République : le statut de 1794 et les déprédations
Louis XVI est renversé le 10 août 1792 et la république instituée le 21 septembre par une nouvelle assemblée constituante, la Convention.
Le statut de 1791 est abrogé par la Convention le . Il est remplacé par une Agence révolutionnaire[réf. nécessaire], dirigée par des Jacobins. Ceux-ci font arrêter Sombreuil, qui est guillotiné avec son fils Stanislas, le .
Depuis, l'hôtel avait déjà été maintes fois pillé, les emblèmes royaux et symboles religieux martelés, les cours rebaptisées (la cour Royale devient cour de la République, celle de l'Infirmerie en cour de l'Humanité, celle du Gouverneur en cour des sans-culottes…).
Les quatre vertus qui ornent le lanternon du dôme sont saisies et fondues pour devenir des balles. Le symbole de Louis XIV est aussi détruit.
Le retour à l'ordre après la chute de Robespierre (27 juillet 1794)
Des hommes à poigne sont nommés à la tête de l'institution pour la redresser, tels que Louis-Adrien Brice de Montigny, nommé le 15 avril 1796, épaulé par l'adjudant-général Dumesnil et le général de division Jean-François Berruyer.
Avec le temps, l'institution retrouve ses marques. Mais c'est un nom qui viendra unir les pensionnaires. Les blessés de la campagne d'Italie ne parlent déjà que de lui : le jeune général Napoléon Bonaparte.[réf. nécessaire]
Le tournant napoléonien

Renommé hôtel national des militaires invalides[19], il est menacé de disparition. Tombé amoureux des lieux, le Premier Consul Napoléon rouvre dès 1800 l'église des Soldats et fait du complexe architectural un panthéon militaire, manifestant son désir de légitimation et de gagner le cœur des soldats. C'est ainsi que le , Napoléon y fait transporter le corps de Turenne et le cœur de Vauban le [20]. Dès le Consulat, des cérémonies nationales s'y déroulent : « dépôt des trophées de la campagne d'Égypte (9 mai 1800), fête de la Concorde (14 juillet 1800), anniversaire de la République (22-23 septembre 1800), première remise des étoiles de la Légion d'honneur (15 juillet 1804) et, plus tard, entrée des drapeaux pris lors de la campagne de Prusse (17 mai 1807)[21]. »

Il est accompagné des maréchaux Berthier, Duroc, Murat, Sérurier (gouverneur de Invalides), et du médecin des Invalides, Jean François Coste.
Napoléon s'occupe de la nomination de toutes les autorités de l'institution, de son fonctionnement ainsi que de sa réputation. Il efface tous les mauvais traitements qu'avait infligés la Révolution française, avec la dégradation des statues, et il demande à Pierre Cartellier la reconstitution de la statue équestre de Louis XIV (1815), sur le haut relief de la porte d'honneur, sculptée par Nicolas Coustou (1735)[22]. L'Empereur y place le en grande pompe l'épée du roi de Prusse Frédéric II de Prusse, acquise à la suite de sa victoire le à la bataille de Potsdam.
Napoléon se rendra à plusieurs reprises écouter les récriminations de ses anciens compagnons d'armes. Par le décret organique du , il concède à l'hôtel un budget de 6 millions de francs de l'époque. C'est pour les Invalides un véritable âge d'or que ce Premier Empire[23].
De la chute de Napoléon (1814) à nos jours

En 1814, les Invalides sont rebaptisés « hôtel royal des Invalides », mais dans le cœur des militaires bonapartistes, ils restent le lieu emblématique de leur héros. Avec la chute de Charles X et l'avènement de Louis-Philippe Ier, les bonapartistes sont libres d'afficher leur fidélité et la question du retour des cendres peut être posée. Victor Hugo et Alexandre Dumas réclament ce retour. Finalement, c'est Adolphe Thiers qui, à l'Assemblée, parvient à faire basculer le débat. Le retour des cendres lui semble un beau symbole du retour d'une France puissante. Si Louis-Philippe Ier reste réticent, son fils le duc d'Orléans est enthousiaste. Le , jour de la saint Louis-Philippe, celui-ci accepte la requête d'Adolphe Thiers. Charles de Rémusat, ministre de l'Intérieur, demande alors à l'Assemblée, un crédit d'un million de francs pour financer le retour des restes et la construction d'un tombeau dont l'emplacement est déjà désigné : les Invalides, déjà choisies par Napoléon lui-même. Lorsque le deuxième million réclamé à l'Assemblée est refusé, la presse se déchaîne : les royalistes y voient un affront, les républicains une somme colossale, les bonapartistes une dépense naturelle. Le prince de Joinville est chargé du transfert à bord de La Belle Poule et de La Favorite le de Toulon, revenant le à Cherbourg. Mais coup de théâtre entre deux, le gouvernement Adolphe Thiers vient de chuter et celui-ci est remplacé par le maréchal Soult qui charge François Guizot des Affaires étrangères, et ainsi donc du rapatriement. Or celui-ci est un fervent adversaire de Thiers ainsi qu'un anti-bonapartiste. Joinville se retrouve alors bloqué à Cherbourg, attendant des ordres qui n'arrivent pas. Si le chantier avance à grands pas sous la houlette des maîtres d'œuvre Henri Labrouste et Louis Visconti, la cérémonie, elle, n'est pas prête. Néanmoins, la Dorade peut enfin remonter la Seine pour accoster à Courbevoie au cri de « Vive l'Empereur ! ».
À partir de 1871, sous la troisième République, l'hôtel se dote très tôt d'une fonction muséographique : musée d'artillerie en 1872 et musée historique des armées en 1896, réunis en musée de l'armée en 1905. En 1896, il n'y a qu'une quarantaine d'invalides dans l'hôtel[19].
Différents décors ont eu une existence temporaire : outre la statue d'Eugène de Beauharnais installée entre 1870 et 1970 dans l'avant-cour du côté de l'Esplanade, les chars du Maréchal Leclerc, l'avion de Guynemer et bien d'autres témoins de l'histoire militaire du XXe siècle, on peut citer notamment les grandes fresques du peintre Bénédict Masson représentant des scènes de l'histoire de France depuis les origines, commencées sous le second Empire et jamais achevées. Restaurées en 1913, elles ont définitivement été effacées par les restaurations de la fin du XXe siècle.
La statue en pied de Napoléon dans la cour d'honneur a connu des vicissitudes : commandée par Louis-Philippe au sculpteur Charles Émile Seurre pour être installée au sommet de la colonne Vendôme en 1833, elle est remplacée sous Napoléon III par une statue jugée plus digne représentant Napoléon dans la toge de César. C'est cette statue qui sera abattue par la Commune de Paris. En attendant, la statue de Seurre est installée au rond-point de Courbevoie[25], situé dans l'axe historique de l'Ouest parisien. À la chute du Second Empire, elle est déboulonnée par les Parisiens, qui croient la rumeur selon laquelle les Prussiens veulent l'attacher par le cou et la traîner le long des rues de la capitale. Devant être transférée aux Invalides pour échapper aux Prussiens en 1870 et à la Commune en 1871, elle est placée sur une barge de la Seine, mais elle tombe à l'eau (accident ? Jetée intentionnellement ?). Une rumeur prétendit que la tête en bronze se sépara du corps lors de la chute et que la tête actuelle ne serait pas l'originale. Elle est repêchée en 1876 et placée dans les réserves des Invalides. Restaurée, à l'initiative de la Société des amis du musée de l'Armée, elle trouve le sa place actuelle aux Invalides[26]. Elle est remplacée à Courbevoie par le groupe sculpté La Défense de Paris, inauguré en 1883.
L'hôtel des Invalides accueille une centaine de grands invalides de guerre des armées françaises. L'administration chargée de cette mission est l'Institution nationale des invalides. C'est aussi resté le lieu parisien emblématique de l'armée française, et de ce fait la cour d'honneur de l'hôtel des Invalides est un cadre privilégié pour de nombreuses cérémonies militaires.
Le samedi , le pape Benoît XVI célébra une messe sur l'esplanade des Invalides devant 260 000 personnes dans le cadre de son voyage apostolique en France.
La double église
L'église Saint-Louis-des-Invalides se composait de deux espaces contigus qui partageaient initialement le même sanctuaire :
- l'église royale ou dôme des Invalides, aujourd'hui désacralisée, église à l'usage exclusif de la famille royale, puis panthéon militaire ;
- l'église des soldats, aujourd'hui cathédrale Saint-Louis-des-Invalides, construite pour les pensionnaires des Invalides, déclarée « cathédrale » du diocèse aux armées françaises en 1986[27].
Ces deux espaces sont séparés par une verrière conçue par l'architecte Alphonse-Nicolas Crépinet en 1873 et achevée en 1876[28].
Le dôme des Invalides


Le plan général de l’édifice au sol, par Jules Hardouin-Mansart, est simple : une croix grecque inscrite dans un plan carré. Chacune des façades extérieures est composée de deux ordres superposés, soulignés par un porche surmonté d’un fronton triangulaire. Elle est couronnée d'un dôme culminant à 90 mètres[29] surmonté d'un lanternon portant la hauteur total à 107 mètres (351 pieds).
Le dôme est posé sur un haut tambour à deux étages ornés de hautes fenêtres. C’est à ce niveau que la très grande rigueur « classique » de l’architecture évolue sensiblement : les formes se compliquent plus l'on s’élève en hauteur, d'une architecture à structure carrée au sol surmontée de frontons triangulaires, on passe insensiblement à des formes complexes où les courbes dominent peu à peu en s'élevant : tambour, volutes, dôme, oculi… Le premier étage du tambour est entouré de contreforts qui supportent la double coupole en pierre à l'intérieur. Ces contreforts, inspirés de ceux de Saint-Pierre de Rome, sont intercalés avec de hautes fenêtres aux linteaux courbés, ils sont chacun ornés de deux colonnes géminées comme pour les entrefenêtres où il n'y a pas de contreforts. Ces contreforts, au nombre de huit, ne sont pas disposés régulièrement aux points cardinaux de l’édifice mais regroupés par deux car les piliers sur lesquels ils reposent sont situés à l'intérieur de l'édifice, en paires, aux quatre coins de la croisée, c'est-à-dire de biais aux faces externes du monument. Des petites volutes typiquement baroques complètent ces contreforts à la base du deuxième étage du tambour, comme à l'église Notre-Dame du Val-de-Grâce et à l’image de la Salute de Venise.
Le dôme de couverture proprement dit, de forme ovoïde, entouré de pots à feu, est fait d'une couverture de plomb sur une solide charpente en bois de chêne. Il est constitué de douze compartiments dorés et décorés de trophées dans lesquels se dissimulent des lucarnes. La dorure du dôme est réalisée par Guillaume Dezauziers conformément à un marché passé le [30]. Enfin, le dôme de couverture est surmonté d’un haut lanternon élancé, entièrement doré, qui n'est pas sans rappeler des formes gothiques. C’est un pavillon carré, posé de biais à la façade, dont les colonnes d'angle, ornées de statues, encadrent un obélisque effilé terminé d’une croix. La construction de ce dôme a été achevée en 1708, 27 ans après la pose de la première pierre.
Il a été redoré en 1807, 1830, 1839, 1937 et pour la dernière fois en 1989, nécessitant 12 kilos d’or à cette occasion[31].
À l'intérieur, sous le dôme de couverture en charpente, deux coupoles en pierre de taille sont ornées de fresques. Dans la coupole du bas ornée de caissons à rosaces et percée d'un oculus, Jean Jouvenet peint à partir de 1703 les douze apôtres. Dans la coupole sommitale (sous charpente), une immense composition de Charles de la Fosse représente Saint Louis, drapé de son manteau royal d'hermine à fleurs de lys, déposant ses attributs royaux (épée, blason et couronne) aux pieds du Christ, en présence de la Vierge et des anges qui portent les instruments de la Passion. Sur la partie opposée de la calotte, un concert d'anges avec leurs instruments de musique (harpe, luth, orgue et violons) complète l'ensemble. De La Fosse décore également les pendentifs qui représentent les quatre évangélistes avec leurs attributs[32]. « Avec cette œuvre, de La Fosse rappelle l'origine divine de la royauté qui est, avec l'hérédité, l'une des deux sources de la légitimité monarchique[33] ».
Depuis 1861, sous le dôme et les coupoles, repose les cendres de l'empereur Napoléon Ier dans six cercueils successifs à l'intérieur d'un sarcophage de quartzite rouge, dans une crypte à ciel ouvert creusée à cet effet au centre de l'édifice.
Chapelles
Au rez-de-chaussée, les chapelles d'angle sont dédiées à quatre Pères de l'Église (saint Grégoire, saint Augustin, saint Jérôme et saint Ambroise), les deux médianes à la Vierge et sainte Thérèse. Elles sont décorées de peintures réalisées par Pierre Dulin, Louis de Boullogne, Bon Boullogne, Noël Coypel et Michel Corneille.
Images du dôme
Le dôme dominant Paris, vue depuis la tour Eiffel (avec le Panthéon à droite et la cathédrale Notre-Dame à gauche).
Vue du bâtiment depuis le jardin du sud-ouest.
Vue à distance depuis l'avenue de Breteuil, permettant de mieux percevoir les proportions architectoniques réelles.
Haut tambour à deux étages, dôme et lanternon.
La porte sud du dôme, en bronze, décorée à l'or.
Plan de la chapelle royale des Invalides en 1760.
Vue générale de la croisée avec le tombeau de Napoléon placé dans une crypte à ciel ouvert aménagée à partir de 1840 par Visconti.
L'intérieur du dôme (vue verticale) avec ses deux coupoles superposées et peintes.
Vue de l'architecture intérieure.
Présentation de la chapelle de Grégoire, l'un des quatre petits dômes latéraux.
Plan en coupe du dôme avec sa structure en triple coque.
Vue sur les deux coupoles en pierre sous le dôme.
Gros plan sur le dôme de couverture, en plomb sur charpente de bois, richement orné et doré.
Interstice entre les deux coupoles intérieures en pierre.
A l'intérieur, les sols en marbre sont décorés de délicates marqueteries de marbres polychromes.
La cathédrale Saint-Louis-des-Invalides
Elle a été construite à partir de 1676 par Jules Hardouin-Mansart, après la conception par Libéral Bruant, l'architecte de l'hôtel des Invalides.
Depuis le 21 juillet 1986, la cathédrale est le siège de l'évêque du diocèse aux Armées françaises. Le chœur de la cathédrale Saint-Louis est le seul de toutes les cathédrales qui soit, en permanence, orné de drapeaux français.
L'hôtel des Invalides et l'urbanisme parisien


Le dôme doré des Invalides constitue un des points de repère du paysage parisien.
Sous Louis XIV, les Invalides étaient situés en bordure externe de Paris, en rase campagne, entourée par les champs et les prairies sur trois côtés, les zones urbaines bordant l'institution à l'est. À l'origine, l'entrée principale des Invalides se faisait par la Chapelle royale (dénommée l'« église du dôme »), au sud, édifice en croix grecque qui permettait au roi et sa suite d'assister à la messe en face des soldats[34]. Un grand parvis avec colonnade était prévu pour accueillir en grande pompe le roi et sa cour venant de Versailles en empruntant de larges allées rayonnantes bordées d'arbres à travers les champs. Paris s'étendant, les Invalides se sont retrouvés au cœur de la ville et l'urbanisation a intégré ces anciennes avenues royales pour en faire le tissu urbain du 7e arrondissement, notamment l'avenue de Breteuil mais aussi l'avenue de Ségur, l'avenue de Villars, l'avenue de Tourville, le boulevard des Invalides et le boulevard de La Tour-Maubourg. L'avenue de Lowendal quant à elle a été ajoutée plus tard.
Depuis l'origine, le parvis nord de l’hôtel se prolonge jusqu'à la Seine par une large esplanade publique: l'esplanade des Invalides. Les ambassades d'Autriche et de Finlande, la gare des Invalides et l'hôtel du ministre des Affaires étrangères la longent. Deux espaces cimentés aux extrémités nord servent de terrain de jeu aux patineurs à roulettes. Comme le Champ-de-Mars et le jardin des Tuileries, l'esplanade des Invalides est un des rares grands espaces libres de construction à l'intérieur de Paris. Au bout de cette esplanade, qui accueillit l'Exposition universelle de 1900, le pont Alexandre-III a été construit sur la Seine dans l'axe de l’hôtel des Invalides et de son dôme pour les mettre en valeur dans la perceptive d'une avenue triomphale. Ce pont, le plus luxueux de Paris, mène outre-Seine au Petit Palais et au Grand Palais construits le long de cet axe.
L’hôtel a la mission de garder les emblèmes et trophées de la France. À ce titre, les canons pris à l'ennemi sont exposés en trophée le long des douves, face à l'esplanade des Invalides. Jusqu'au début du XXe siècle, ils tiraient des salves d'honneur pour marquer les grandes manifestations publiques.
L'hôpital militaire des Invalides
.JPG.webp)
Les soldats invalides n'accédaient aux Invalides qu'après dix années de service dans l'armée, délai porté à vingt ans en 1710 et ramené à dix-huit ans à partir de 1729, soit trois engagements[35]. Il incombait au gouverneur de l'hôtel, car le lieu était considéré comme un bâtiment religieux, mais à l'organisation militaire, de vérifier les différents dossiers de candidature. Ainsi les protestants, les marins et les malades des écrouelles furent refusés à l'époque de Louis XIV. Cette dimension confessionnelle se traduit par exemple par le refus des protestants à partir de 1685[36], mais aussi par la formation de quarante jours que chaque soldat recevait à son arrivée, dispensée par les prêtres. Cette instruction religieuse fut souvent réduite à quinze jours pour les officiers. Cette différence de traitement se retrouve dans le logement. Les officiers ont droit à une chambre de deux ou trois lits, chauffée par des cheminées. Les soldats sont logés dans des dortoirs de cinq ou six lits. La qualité des couvertures et la forme des lits diffèrent également. Au XVIIe siècle, on compte 343 chambres de soldats et 41 chambres d'officiers, pour un total de 2140 lits[37].
La vie quotidienne est agréable, les résidents se promènent librement, notamment dans les huit chauffoirs dont deux étaient considérés comme « fumeurs ». Si les femmes sont interdites, les soldats mariés peuvent néanmoins découcher deux fois par semaine[38]. Il est interdit de boire ou manger dans les chambres, et de se livrer à toute forme de commerce sous peine d'exclusion. Les premiers invalides rescapés de la guerre de Trente Ans sont admis dès la fin des travaux en 1674. L'institution étant saturée dès 1676, les autres invalides devaient loger à l'extérieur de l'hôtel sur leurs propres moyens. Louis XIV n'hésitait pas à distribuer des terrains à ses soldats sur lesquels ils pouvaient faire bâtir leur maison. Néanmoins, entre 1676 et 1690, le bâtiment accueille 6 000 invalides, nourris copieusement, et bénéficiant de bonnes règles d'hygiène et d'un service luxueux d'infirmerie. En effet, celui-ci comprendra 300 lits individuels à l'époque de Louis XIV, un véritable luxe. Les soins sont assurés par trente « sœurs grises » (Filles de la charité), un médecin, un apothicaire, dont le plus célèbre fut sans doute Antoine Parmentier au XVIIIe siècle, et un chirurgien.
Deux fois par jour, médecin et chirurgien font la tournée des lits, cahier d'ordonnances à la main. Béquilles et jambes de bois sont distribuées le jeudi. La nuit, deux sœurs veillent sur les malades. Douze prêtres de la congrégation de la Mission de Saint-Lazare se chargent des offices : prières quotidiennes au roi, pour sa famille et la « prospérité des armes ». Matin et soir, les invalides suivent la prière, ainsi que les vêpres les dimanches et jours de fêtes.
Les invalides travaillent néanmoins encore au service de l'État. Les plus valides sont envoyés en détachement (comme à Dieppe, Lisieux, Honfleur, Saint-Malo…), dès 1690, alors que d'autres restent à Paris pour confectionner des uniformes, des bas, des souliers ou même des tapisseries dans les ateliers installés à l'hôtel. L'une de ces manufactures, objet de toutes les fiertés, l'atelier de calligraphie et d'enluminures, travaille même pour Versailles[39]. Une discipline de fer règne sous Louis XIV aux Invalides. Aucun retardataires n'est accepté lorsque les grilles se ferment au son du tambour militaire le soir. Un système de récompense entretient la délation. En cas de faute, diverses peines sont appliquées : privation de vin, retenues, prison, expulsion ou « cheval de bois » (le soldat est assis sur un cheval d'arçon, dans l'avant-cour de l'hôtel et subit les moqueries de ses compagnons…).
À la suite de la loi du visant à combattre l'alcoolisme, notamment dans l'armée, le gouverneur des Invalides écrit au ministre de la Guerre Ernest Courtot de Cissey, qui est à l'origine de ce texte, pour lui indiquer qu'il sera « dans l'obligation de faire envoyer de l'Hôtel les vieillards ayant versé leur sang pour leur pays » et obtient de lui une exemption pour les pensionnaires des Invalides[40].
En 1918, l'hôpital connaît un afflux de blessés.
En 1940, les pensionnaires sont évacués dans l'Orne avant de revenir en . En 1942, un réseau de résistance se forme au pied du Dôme et permet l'évasion d'aviateurs alliés[19].
Après la guerre, l'Institut accueille de nombreux blessés puis ceux des guerres d'Indochine et d'Algérie, ceux des opérations extérieures (OPEX) et les victimes d'accidents au service de la France[19].
Dans les années 1970, le Ministère aux Anciens combattants décide la réfection et l'humanisation des locaux qui servent de lieu de vie à ceux qui ont servi le pays dans les ordres militaires, cette charge est confiée à l'entreprise alsacienne UA5, fondée par Jean Apprill et Pierre Gebhart, les travaux ont été dirigés par leur associé Jean-Paul Meyer. L'inauguration a été faite le par le président de la République Valéry Giscard d'Estaing et le gouverneur militaire de Paris, accompagnés de différents secrétaires d'État[41].
Depuis la loi du , l'Institut national des Invalides est un établissement public administratif.
De fait, l'hôpital est encore en activité, il dispose de 13 places en hôpital de jour. Il est ouvert à tous (pas seulement aux militaires) comme le sont tous les hopitaux militaires (Legouest (Metz), Bégin (Saint-Mandé), Percy (Clamart), Clermont-Tonnerre (Brest), Desgenettes (Lyon), Robert-Picqué (Villenave-d'Ornon), Laveran (Marseille) et Sainte-Anne (Toulon))[42],[43].
Façade nord du complexe, sur l'esplanade.
Le portail d'entrée nord avec Louis XIV en cavalier sur le fronton.
Vue générale sur la cour d'honneur des Invalides.
Sculpture et lucarne sculptée décorant la cour d'honneur.
Le panthéon militaire


Plusieurs hommes de guerre français reposent aux Invalides.
Ainsi, pour les périodes monarchique et révolutionnaire : le maréchal de France Henri de La Tour d'Auvergne, vicomte de Turenne, le cœur du maréchal Sébastien Le Prestre de Vauban, le cœur de Théophile Malo Corret de La Tour d'Auvergne, héros des guerres de la Révolution, le général François Séverin Marceau et Claude Joseph Rouget de Lisle, l'auteur de La Marseillaise.
La dépouille de Napoléon Ier, décédé en 1821 à l'île Sainte-Hélène, fut placée provisoirement — le tombeau commandé à Louis Visconti par Louis-Philippe n'étant alors pas achevé — dans la chapelle Saint-Jérôme le , sous la monarchie de Juillet dont les dirigeants cherchaient à rassembler les partisans de l'empereur défunt (dans le même temps, était en effet achevé l'arc de triomphe de l'Étoile).
Son corps (dans plusieurs cercueils successifs) ne fut placé que le , en présence de la famille impériale et de quelques dignitaires, dans un monumental sarcophage, ni dans la « très belle pierre proche du marbre » bretonne trouvée et proposée au gouvernement par le minéralogiste Paul Émile de La Fruglaye (petit-fils du célèbre Louis-René Caradeuc de La Chalotais) — qui finalement, y fit tailler son propre tombeau dans la chapelle de son château de Keranroux[44] —, ni dans du porphyre de Russie, comme il est souvent dit, mais dans du quartzite rouge de Finlande ou « grès métamorphique » extrait d'une carrière de Carélie appartenant au tsar Nicolas Ier de Russie[45], reposant sur un socle en granit vert des Vosges[46], l'ensemble étant placé dans une crypte ouverte de forme circulaire pratiquée au centre de la chapelle Saint-Louis, sous le dôme. La pierre tombale originelle de Napoléon Ier rapatriée en 1840 de l'île de Sainte-Hélène se situe elle à proximité, dans la cour de Nîmes, un jardin longeant l'église Saint-Louis-des-Invalides.
Le , les « cendres » ou plutôt le cercueil de son fils unique, dit le « roi de Rome » Napoléon II ou « l'Aiglon », y furent transportées de Vienne pour y être placées dans une chapelle du dôme des invalides[47], sur proposition d'Adolf Hitler conseillé par Otto Abetz et en présence de Fernand de Brinon pour le Gouvernement de Vichy (Paris étant à l'époque en zone occupée).
Y reposent également les dépouilles de ses frères Joseph et Jérôme Bonaparte ainsi que le cœur de la reine de Westphalie, épouse de ce dernier, et d'autres membres de la famille Bonaparte.
Plusieurs commandants en chef de la Première et Seconde Guerre mondiale ont été également inhumés aux Invalides : les maréchaux de France Ferdinand Foch, Hubert Lyautey, Philippe Leclerc de Hauteclocque, Alphonse Juin, les généraux Robert Nivelle, Charles Mangin, Pierre Auguste Roques et Henri Giraud, les amiraux Boué de Lapeyrère et Gauchet.
Les gouverneurs de l'hôtel des Invalides, qui reste une place militaire, le sont également ; l'amiral Émile Guépratte, le général Louis Ernest de Maud'huy sont enterrés dans le caveau qui leur est réservé.
À défaut de leur dépouille, plusieurs grands personnages militaires français ont seulement leur cœur inhumé aux Invalides.
Personnalités reposant dans l'église
À ce jour, le tombeau impérial est entouré[48], dans les chapelles, par :
- Napoléon II, empereur des Français, théoriquement, roi de Rome, duc de Reichstadt, « l'Aiglon », fils de Napoléon Ier
- Le maréchal de Turenne
- Le cœur de Vauban
- Joseph Bonaparte, roi d'Espagne
- Jérôme Bonaparte, roi de Westphalie, et le cœur de son épouse Catherine de Wurtemberg
- Jérôme Napoléon Charles Bonaparte, le fils de Jérôme Bonaparte
- Le maréchal Lyautey
- Le maréchal Foch
Le retour des cendres de Napoléon vers les Invalides.
Le tombeau de Napoléon, sous le dôme, dans une fosse (crypte) à ciel ouvert entourée de victoires en marbre blanc.
Le tombeau de Napoléon est une crypte à ciel ouvert au centre de l'église du Dôme.
Deux des douze victoires entourant Napoléon.
Le monument de Vauban.
Urne décorative du tombeau du roi de Rome. Le cercueil se trouvant sous la dalle de marbre.
Tombe de Joseph Bonaparte, sous l'une des quatre petites coupoles latérales.
Le tombeau du maréchal Foch, également sous l'une des coupoles latérales.
Tombeau de l'aiglon le fils de Napoléon.
Les cœurs posés sur des cippes en marbre dans la crypte
- Cœur du lieutenant du roi Jean Beryrand, seigneur de Senneric
- Cœur du général d'Hautpoul
- Cœur du lieutenant général Baraguay d'Hilliers
- Cœur de Marie-Maurille de Sombreuil, comtesse de Villelume
- Cœur du lieutenant général Deconchy
- Cœur du général de Bisson
- Cœur du général Eblé
- Cœur du général Négrier
Les corps d’autres grands militaires reposant dans la crypte[49]
- Les cœurs du général Leclerc, beau-frère de Napoléon et de son fils Dermide.
- Le cœur de Théophile-Malo de La Tour d'Auvergne, premier grenadier de la République
- Le général Duroc, maréchal du palais de Napoléon Ier
- Le général Bertrand, maréchal du palais de Napoléon Ier
- Les cendres du général Marceau
- Le cœur du général Kléber
- Le général Lasalle
- Le général Nivelle
- Le général Mangin
- Rouget de Lisle
- Le maréchal de Mac-Mahon, gouverneur général de l'Algérie et président sous la IIIe République
- Le maréchal Leclerc
- Le maréchal Juin
- Les 14 victimes de l’attentat de Fieschi du 28 juillet 1835, dont le maréchal Édouard Mortier
- Général de Lariboisière
- Maréchal Bessières
- Maréchal Lobau
- Maréchal Exelmans
- Maréchal de Saint-Arnaud
- Amiral Hamelin
- Maréchal Pélissier, duc de Malakoff
- Maréchal Regnault de Saint-Jean-d'Angely
- Général Roques
- Général de Maud'huy
- Général Humbert
- Général Maistre
- Maréchal Maunoury
- Général de Mitry
- Vice-amiral Boué de Lapeyrère
- Général Lanrezac
- Général Putz
- Général Baucheron de Boissoudy
- Général Gérard
- Général de Langle de Cary
- Maréchal Fayolle
- Général Sarrail
- Vice-amiral Gauchet
- Général Cordonnier
- Amiral Guépratte
- Maréchal Franchet d'Esperey
- Général comte de Lasalle
- Maréchal Valée
- Amiral Duperré
- Général Duvivier
- Maréchal Bugeaud
- Maréchal Sébastiani
- Maréchal Baraguay d'Hilliers
- Maréchal Canrobert
- Général Malleterre
- Général Ruffey
- Général Pau
- Vice-amiral Fournier
- Amiral Ronarc'h
- Général Guillaumat
- Général d'Amade
- Général d'Urbal
- Général Henrys
- Général Duchêne
- Général Houdemon
- Général Kientz
- Général Monclar
- Général Giraud
Gouverneurs des Invalides
Tous les gouverneurs des Invalides y ont leurs sépultures, à l'exception de Charles François de Virot de Sombreuil, remplacé par sa fille Marie-Maurille de Sombreuil[50].
Geneviève Alexandrine Framboisier de Bauney de Sainte-Honorine épouse de Guillaume Marie de Gilibert de Merliac, lieutenant colonel major de l'hôtel des Invalides de 1767 à 1793, y a également sa sépulture.
Hommage national
L'hôtel des Invalides, en tant que Panthéon militaire, est le lieu de ceux qui sont morts pour la nation. Depuis le retour des cendres de Napoléon aux Invalides en 1840[51], l'hommage national se déroule, le plus souvent, dans la cour d'honneur de l'hôtel des Invalides. Bien qu'il s'agisse habituellement d'un hommage rendu aux soldats tués dans les combats, de nombreuses personnalités civiles y ont été honorées après leur mort.
Cette distinction officielle a également lieu pour les victimes du terrorisme, comme celles des attentats du 13 novembre 2015 (première fois qu'un hommage national est rendu à des civils anonymes), Xavier Jugelé et le caporal Albéric Riveta en 2017 ou Arnaud Beltrame en 2018. En revanche, les familles des victimes des attentats de janvier 2015 en France n’ont pas voulu d’une cérémonie militaire, l'hommage ayant lieu à l’Élysée, à huis clos, loin des caméras[52].
La cérémonie d'hommage national a lieu dans la cour d'honneur des Invalides. D'un côté de cette cour sont alignés, au garde-à-vous, des détachements des trois armées et la musique, de l'autre côté les civils. La cérémonie, présidée par le président de la République, comprend traditionnellement les phases suivantes : les honneurs militaires puis la revue des troupes par le président de la République (qui est également chef des armées), l'arrivée du cercueil recouvert du drapeau national, une prise de parole de proches, l'éloge funèbre prononcé par le chef d'État, les honneurs funèbres militaires, le départ du cercueil et les honneurs aux drapeaux[53],[54].
Hommages de personnalités
- Jacques-Yves Cousteau, navigateur, en 1997[55] ;
- Jacques Chaban-Delmas, homme d'État, en 2000 ;
- Abbé Pierre, prêtre catholique, en 2007 ;
- Philippe Séguin, homme d'État, en 2010 ;
- Pierre Schoendoerffer, cinéaste, en 2012 ;
- Stéphane Hessel, diplomate, en 2013 ;
- Pierre Mauroy, homme d'État, en 2013 ;
- Dominique Baudis, journaliste, en 2014 ;
- Robert Chambeiron, résistant, en 2015 ;
- Geneviève de Gaulle, Germaine Tillion, Jean Zay et Pierre Brossolette, résistants, en 2015[56] ;
- Charles Pasqua, homme politique, en 2015 ;
- Michel Rocard, homme d'État, en 2016 ;
- Albéric Riveta, militaire, en 2017 ;
- Simone Veil, femme d'État, en 2017[57] ;
- Jean d'Ormesson, écrivain, en 2017 ;
- Arnaud Beltrame, gendarme, en 2018 ;
- Claude Lanzmann, cinéaste, en 2018 ;
- Charles Aznavour, chanteur, en 2018[58] ;
- Jacques Chirac, ancien président de la République française, en 2019 ;
- Jean Daniel, journaliste, en 2020 ;
- Daniel Cordier, résistant, en 2020 ;
- Jean-Paul Belmondo, acteur, en 2021 ;
- Hubert Germain, résistant, en 2021 ;
- Michel Bouquet, acteur, en 2022[59] ;
- Jacques Perrin, cinéaste, en 2022[60] ;
- Hélène Carrère d'Encausse, écrivaine, en 2023[61] ;
- Jacques Delors, homme politique, en 2024[62].
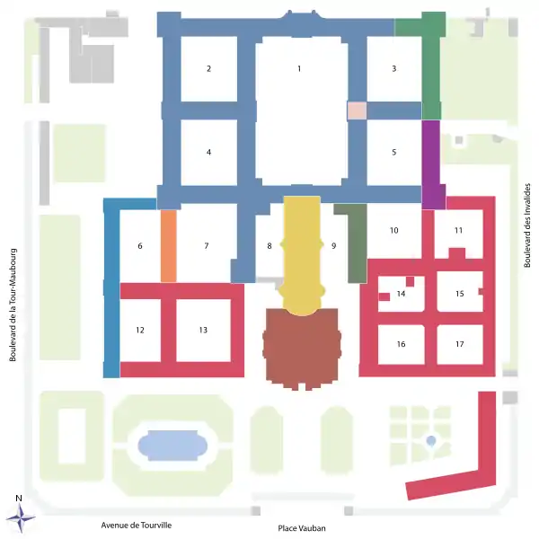
Les musées
![]() Le plan de l'Hôtel des Invalides | ||
|
|
|
Le musée des Plans-reliefs
Dès 1777, la galerie royale des plans-reliefs avait quitté le palais du Louvre pour les Invalides ; elle s'y trouve toujours, au musée des Plans-reliefs.
Le musée de l'Armée

Elle y est rejointe en 1871 par le musée de l'Artillerie, dont les pièces ornent les cours et promenades du palais.
Pour conserver la trace des traditions de l'armée, ses trophées et les objets de la vie quotidienne des soldats, un musée historique de l'Armée est créé en 1896. Il fusionne avec celui de l'artillerie en 1905 pour former le musée de l'Armée.
Une section regroupe les armes et armures anciennes placées sous vitrines. Une autre, sur trois étages, retrace l'histoire des guerres de 1870, 1914-1918 et 1939-1945 avec de nombreux objets et documents d'époque.
Depuis la fin de la Seconde Guerre mondiale, pendant laquelle les Invalides cachèrent un réseau de résistance en 1942, le musée s'est agrandi du musée de l'ordre de la Libération et du musée d'histoire contemporaine (fermé en 2021, les collections étant transférées à Nanterre au sein du nouveau bâtiment de La Contemporaine).
L'historial Charles-de-Gaulle est un espace multimédia de 2 500 m2 en sous-sol, inauguré le , qui retrace la vie et l’œuvre du général de Gaulle par l'image et le son, principalement avec des documents audiovisuels.
Administration
L'hôtel des Invalides a été dirigé par des gouverneurs (1670-1792), un conseil général d'administration (1793-1796), des commandants (1796-1803), de nouveau des gouverneurs (1803-1871), encore des commandants (1871-1941) et enfin de nouveau des gouverneurs depuis 1941.
Les Invalides hébergent également le secrétariat général de la Défense et de la Sécurité nationale et le cabinet du gouverneur militaire de Paris.
Galerie
Cour d'honneur des Invalides.
Les bâtiments autour des petites cours rassemblaient les chambrées et diverses pièces de service.
Les chaînes de bossages encadrant une travée de la façade nord permettent de souligner les axes de la composition.
Vue sur le dôme depuis le nord.
Détail de la grille d'entrée nord sur l'esplanade.
Vue sur les bâtiments des Invalides, l'esplanade et la ville de Paris depuis le lanternon.
Les Invalides et le pont Alexandre III depuis la berge de la seine.
Cour d'honneur vue de nuit, animée depuis 2011 par le spectacle vidéo La Nuit aux Invalides[63].
Vue depuis la tour Montparnasse.
Détail des sols en marqueterie de marbre sous le dôme.
Armure de l'Empereur Qianlong exposée au musée de l'Armée.
Orgue de Saint-Louis-des-Invalides.
Culture
- L'hôtel des Invalides fut le sujet d'un documentaire de commande réalisé par Georges Franju en 1951. Le documentaire glissant tout au long du film vers la critique et la dénonciation de la guerre et de ses conséquences, l'armée le refusa.
- La fin du film Les Aventures de Rabbi Jacob se déroule dans la cour de l'hôtel des Invalides.
- La fin du Guignolo se déroule dans la cour de l'hôtel des Invalides. Le dôme n'a pas encore été redoré.
Notes et références
- Notice no PA00088714, sur la plateforme ouverte du patrimoine, base Mérimée, ministère français de la Culture.
- Avant 1860, il était situé dans l'ancien 10e arrondissement, d'où l'enregistrement du décès des militaires dans l'état civil reconstitué de la capitale qu'on peut trouver dans différentes bases de données.
- Élisabeth Belmas et Serenella Nonnis-Vigilante, La santé des populations civiles et militaires : nouvelles approches et nouvelles sources hospitalières, XVIIe – XVIIIe siècles, Villeneuve d'Ascq, Presses Universitaires du Septentrion, , 311 p. (ISBN 978-2-7574-0162-0, lire en ligne), p. 52.
- Restaurée en 1962, cette façade s'étire sur 100 toises du Châtelet (environ 195 m). Elle comporte un rez-de-chaussée doté d'arcades cintrées, deux étages légèrement inégaux percés de fenêtres à mascarons, et un attique surmonté de comble dont les lucarnes sont décorées de trophées (armures, casques et armes). Le pavillon central abrite côté cour un vestibule et côté jardin un salon à l'italienne. Un fronton couronne cet avant-corps cantonné de deux massifs de forme concave. Les deux pavillons d'angle sont coiffés de comble à lucarne à deux croisées jumelées, à fronton cintré orné de faisceaux de drapeaux et de trophées. Cf Adélaïde Barbey, Paris, Hachette, , p. 273.
- Dès 1575, Henri III forme, dans la rue de Lourcine, dans l'ancien emplacement de l'« hôtel-Dieu du Patriarche », une maison royale et hospitalière pour les officiers et soldats infirmes, appelée « maison royale de la Charité chrétienne ».
- En 1603, Henri IV rend un nouvel édit en faveur de la maison royale de la charité chrétienne, qui lui accorde une portion des revenus des hôpitaux et des maladreries.
- Jean Imbert, Histoire des hôpitaux en France, Privat, , p. 184
- François Lagrange et Jean-Pierre Reverseau, Les Invalides. L'état, la guerre, la mémoire, Éditions Gallimard, , p. 12.
- Pierre Gouhier, Les militaires, Éditions universitaires, , p. 64.
- Boris Bouget, Les Invalides. Le musée de l’armée. Le tombeau de Napoléon. Guide officiel, Paris, Réunion des musées nationaux-Grand Palais, , 64 p. (ISBN 978-2-71187-259-6), p. 10.
- Jean-Pierre Labatut, Louis XIV, roi de gloire, Imprimerie nationale, , p. 155.
- Frédéric Lacaille (dir.), Peintures murales aux Invalides, Faton, , p. 55
- François Lagrange et Jean-Pierre Reverseau, Les Invalides. L'état, la guerre, la mémoire, Éditions Gallimard, , p. 15.
- Anne Muratori-Philip, Histoire des Invalides, Éditions Perrin, , p. 20.
- François Lagrange et Jean-Pierre Reverseau, Les Invalides. L'état, la guerre, la mémoire, Éditions Gallimard, , p. 17.
- Les ailes de la cour royale sont pourvues d'un pavillon central et de deux galeries superposées. Les ailes orientale et occidentale abritent, au rez-de-chaussée, les quatre réfectoires des soldats desservis par deux vestibules à l'air libre, et, à l'étage, les chambrées. Ces réfectoires sont des salles de plus de 40 mètres de long et de 7,35 mètres de large pour une hauteur de 7,5 mètres, égale à deux niveaux de l'hôtel, et reliées aux cuisines par un couloir. Elles sont couvertes de plafonds à solives et décorées de scènes guerrières dues à Martin des batailles et aux élèves de Van der Meulen. Elles peuvent recevoir chacune près de 400 hommes en un service, qui est doublé à la fin du règne de Louis XIV (deux repas principaux pris en deux services : déjeuner à 11 h et 11 h 45, dîner à 18 h et 18 h 45). Dans l'axe de la cour, une grande cuisine relie les deux réfectoires réservés aux officiers. Cf Jean-Pierre Bois, Les anciens soldats dans la société française au XVIIIe siècle, Economica, , p. 230-240
- Le marquis de La Fayette a combattu aux côtés des Américains, mais il était engagé volontaire dans l'armée américaine, et non pas envoyé par le ministre de la Guerre.
- Formé à l'occasion des élections des députés aux États généraux, à la fin de 1788.
- Journal de l'Union nationale des combattants, no 5, page 5.
- François Lagrange, Jean-Pierre Reverseau, Les Invalides. L'état, la guerre, la mémoire, Gallimard, , p. 112
- Thierry Lentz, Napoléon. Dictionnaire historique, Place des éditeurs, , p. 375.
- Ce fronton, orné d'un Louis XIV équestre entre les deux allégories de la Prudence et de la Justice, est soutenu par deux couples de colonnes ioniques au pied desquelles Coustou érige les statues de Minerve et de Mars.
- François Lagrange, Jean-Pierre Reverseau, Les Invalides. L'état, la guerre, la mémoire, Gallimard, , p. 38
- L'Artiste : journal de la littérature et des beaux-arts, Paris, (lire en ligne), p. 241.
- Elle est remplacée depuis par la statue de La Défense de Paris.
- La statue de Napoléon aux Invalides.
- Historique, sur le site du diocèse aux armées.
- Général Alexandre d'Andoque de Sériège, Saint-Louis des Invalides. La cathédrale des Armées françaises, Strasbourg, La Nuée bleue/Éditions du Quotidien et Paris, Musée de l'Armée, , 480 p. (ISBN 978-2-8099-1624-9), p. 119
- « Histoire de l'hôtel des Invalides : La coupole du Dôme par Charles de La Fosse », fiche du Musée de l'Armée (en ligne).
- Vicomte de Grouchy (publié par), « Dôme et orgues des Invalides. Devis et marché à faire avec le Sr Dezauzières pour la dorure du dosme des Invalides par ordre de Monsr de Louvois 12 décembre 1690 », Bulletin de la Société de l'histoire de Paris et de l'Île-de-France, t. 20, , p. 89-90 (lire en ligne)
- François Poche et Jean-Claude Rochette, Le Dôme des Invalides. Un chef-d'œuvre restauré, Somogy, , p. 66.
- François Poche, Jean-Claude Rochette, Le Dôme des Invalides. Un chef-d'œuvre restauré, Somogy, , p. 144-146.
- La coupole du Dôme par Charles de La Fosse, fiche-objet du musée de l'Armée
- Antoine Schnapper, « La peinture décorative », in Les Invalides. Trois siècles d'histoire, Musée de l'Armée, 1974, p. 85-88.
- Alexandre Gady (dir), L'Hôtel des Invalides, Paris, éditions de l'esplanade, , 251 p. (ISBN 979-10-95551-00-3), p. 112
- L'édit de Fontainebleau (ou révocation de l'édit de Nantes) interdit le culte protestant en France.
- Alexandre Gady (dir.), L'Hôtel des Invalides, Paris, éditions de l'esplanade, (ISBN 979-10-95551-00-3), p. 27
- François Lagrange et Jean-Pierre Reverseau, Les Invalides. L'état, la guerre, la mémoire, Éditions Gallimard, , p. 29.
- Le « Graduel et antiphonaire à l'usage de l'église Saint-Louis des Invalides », daté de 1682, constitue le plus ancien témoignage de l'activité de cet atelier dont le travail a tant émerveillé le roi Louis XIV qu'il commande pour sa chapelle de Versailles un antiphonaire et plusieurs livres d'heures. Cf Frédéric Lacaille, op. cit., p. 35.
- Georges Gugliotta, Un officier d'état-major : le général Courtot de Cissey, réorganisateur de l'armée française (1810-1882), Montpellier, Université Montpellier-III, , 1109 p., p. 362.
- La documentation française, Paris, 1980.
- « L'Hôtel national des Invalides »(Archive.org • Wikiwix • Archive.is • Google • Que faire ?), Ministère des Armées, 27 septembre 2015
- « de jour »(Archive.org • Wikiwix • Archive.is • Google • Que faire ?), Institution Nationale des Invalides, 27 Mars 2018
- Cf. Claude Frégnac, Merveilles des châteaux de Bretagne et de Vendée, Hachette-Réalités, 1970, p. 32).
- Musée de l'Armée, « Dôme des Invalides, tombeau de Napoléon Ier », sur www.musee-armee.fr, (consulté le ).
- Louis Antoine Léouzon le Duc, Le sarcophage de Napoléon en son tombeau des Invalides, , 39 p. (lire en ligne), p. 10.
- « Les cendres du roi de Rome ont été transportées près du tombeau de Napoléon », Le Monde.fr, (lire en ligne, consulté le ).
- « Dôme des Invalides, tombeau de Napoléon Ier », sur musee-armee.fr (consulté le ).
- La cathédrale Saint-Louis des Invalides et la crypte des Gouverneurs.
- Ginette Guitard-Auviste, « Maurille de Sombreuil », sur lemonde.fr, (consulté le ).
- Christian Amalvi, « Hommage national : une cérémonie qui a évolué depuis les attentats de 2015 », sur franceculture.fr, .
- « Pourquoi l'hommage national est-il rendu aux Invalides ? », sur ouest-france.fr, .
- Hommage national à Simone Veil aux Invalides, présentation par le maître de cérémonie, sur youtube.com, 24 min 10 s.
- Pierre Breteau, « Cérémonie d’hommage au gendarme Arnaud Beltrame : qu’est-ce qu’un hommage national ? », sur lemonde.fr, .
- « Avant Jean-Paul Belmondo, qui a déjà reçu un hommage national aux Invalides ? », sur tf1info.fr, (consulté le ).
- « Cérémonie d’hommage de l’Ordre de la Libération aux 4 résistants qui vont entrer au Panthéon », sur actualites.musee-armee.fr, .
- « Une « cérémonie d'obsèques » pour Simone Veil mercredi aux Invalides », sur lejdd.fr, .
- « Aznavour en direct : « Nous sommes ici pour rendre hommage au maître de la chanson française » », sur lemonde.fr, .
- « Hommage national à Michel Bouquet le 27 avril aux Invalides », sur 20minutes.fr, .
- J.L., « Hommage funèbre à Jacques Perrin vendredi aux Invalides », sur bfmtv.com, (consulté le ).
- « Mort d'Hélène Carrère d'Encausse : un hommage national aura lieu aux Invalides "avant la fin de l'été", annonce l'Elysée », sur francetvinfo.fr, .
- « Mort de Jacques Delors: Emmanuel Macron va présider une cérémonie d'hommage national le 5 janvier », sur bfmtv.com, .
- « Site officiel de La Nuit aux Invalides » [archive].
Voir aussi
Bibliographie
- Anne-Marie Grué-Gélinet, S’accrocher à une étoile - Ainsi va la vie aux Invalides, Le Cherche Midi, 2020 ;
- Alexandre Gady (sous la direction de), L'hôtel des Invalides, éditions de l'Esplanade / musée de l'Armée, 2016, 252 p.
- Georges Poisson, « Saint-Simon, le dôme des Invalides et Saint-Denis », Cahiers Saint-Simon, no 34, , p. 91-104 (lire en ligne).
- « L'Institution nationale des Invalides », dans Histoire de la médecine aux armées, tome 3 : de 1914 à nos jours, sous la direction de Pierre Lefebvre, éd. Lavauzelle, 1987, pp. 387-397 ;
- Général Malleterre, Napoléon aux Invalides, Paris, La Renaissance du livre, 1921, 162 p. ;
- Robert Burnand, L'Hôtel royal des Invalides (1670-1789), 1913, Paris, Berger-Levrault, XXIII-295 pages, [lire en ligne] ;
- Vicomte de Grouchy (publié par), « Les chapelains de l'hôtel des Invalides en 1680; contrat entre le marquis de Louvois et le supérieur des prêtres de la Mission de Saint-Lazare », Bulletin de la Société de l'histoire de Paris et de l'Ile-de-France, t. 20, , p. 185-187 (lire en ligne) ;
- Auguste Solard, Histoire de l'hôtel royal des Invalides depuis sa fondation jusqu'à nos jours, 1845, Paris, Librairie militaire Dumaine, 2 volumes in 8°, 385-407 pages, tome premier ; tome deuxième ;
- Gabriel-Louis Pérau, Description historique de l'hôtel royal des Invalides […] avec les plans, coupes, élévations géométrales de cet édifice, et les peintures et sculptures de l'église, dessinées et gravées par le Sr Cochin, Paris, Desprez, (lire en ligne) ;
Articles connexes
Liens externes
- Ressources relatives à l'architecture :
- Ressource relative à la musique :
- Site du musée de l'Armée.
- Pensionnaires reçus à l'hôtel des Invalides, 1673-1796.
- Site de l'Institution nationale des Invalides.
- Cathédrale Saint-Louis des Invalides - Diocèse aux Armées françaises
- Visite des Invalides sur la plateforme Google Arts&Culture
- Portail du catholicisme
- Portail des musées
- Portail de l’Armée française
- Portail de l’architecture et de l’urbanisme
- Portail du baroque
- Portail du classicisme
- Portail de Paris
- Portail de la France du Grand Siècle
- Portail des monuments historiques français
- Portail de l’histoire militaire
