Forum de Vieux-la-Romaine
Le forum gallo-romain de Vieux-la-Romaine fait partie du site archéologique de l'antique Aregenua située à environ 11 km au sud de Caen.
Lieu emblématique d'une cité romaine de la Gaule lyonnaise, symptomatique du processus de romanisation à l'œuvre avec la concentration des fonctions administrative, judiciaire et religieuse, le forum atteint son apogée au IIe siècle et surtout au début du IIIe siècle. La cité décline à partir de la crise du IIIe siècle ; elle est durement touchée par les invasions car elle n'est pas, à l'instar de nombreuses autres, pourvue d'une enceinte la protégeant. Les modifications radicales de l'organisation administrative de l'Empire romain d'Occident au début du Ve siècle relèguent la cité, qui perd son statut de capitale de cité au profit de Bayeux.
Le site du forum fait l'objet de fouilles archéologiques précoces, dès le XVIIe puis au XIXe siècle sous l'impulsion de la toute récente société des antiquaires de Normandie et la localisation du forum fait alors débat. Les fouilles reprennent à Vieux et la localisation du forum n'est avérée que par de nouvelles recherches à la fin du XXe et au début du XXIe siècle tant à l'aide de nouvelles techniques de recherches que de classiques sessions de fouilles archéologiques programmées qui durent pendant neuf ans et mettent au jour la partie orientale du complexe.
Localisation

La commune de Vieux-la-Romaine se situe à 11 km environ au sud-ouest de Caen et à 20 km de la Manche[D 1]. Le site se situe dans la vallée de l'Orne et est bordé par la rivière La Guigne[D 1]. Le site du « champ des Crêtes » est un espace de 4 ha[F 1].
Vieux-la-Romaine occupe le site de la ville d'Aregenua, centre urbain qui s'étendait sur 2 300 km2, habité par les Viducasses[B 1]. Aux premiers siècles de notre ère, ce secteur est probablement fortement boisé avec une quantité importante de sangliers[D 2]. Il dispose en abondance de ressources naturelles adaptées à la construction : craie dure, grès et schiste[D 2].
Dans le quartier du forum ont été aussi trouvés deux édifices thermaux[B 2], l'un à seulement 60 m au nord-est d'édifice fouillé lors des premières fouilles[F 2]. Dans ce quartier dense, l’habitat possède un « système de rues à galerie de façade » avec un réseau de voies constitué au IIe siècle , comme dans la riche maison au grand péristyle[B 3].

Non loin se trouve un autre édifice thermal fouillé au XVIIIe siècle et au XIXe siècle. Cet édifice d'environ 90 m sur 50 m semble avoir possédé une bipartition entre hommes et femmes[B 4],[D 3]. Ces thermes sont offerts à la ville par un testament de Sollemninus à la fin du IIe siècle ou au début du IIIe siècle[D 4]. Sollemninus fait construire les fondations des thermes[D 4] ; son fils Titus Sennius Solemnis achève les travaux en 234[D 3], puis il lègue des revenus à la ville[D 4]. Ces thermes possèdent tout le confort de l'époque : alternance de pièces chaudes, tièdes et froides, des gymnases, des hypocaustes et des piscines[D 3].
Dominique Bertin-Halbout a avancé l'hypothèse que le forum serait situé entre l'église Saint-Laurent de Vieux et les vestiges des thermes, à la croisée entre le cardo maximus et le decumanus maximus[D 5]. Une partie de cette hypothèse est corroborée par des fouilles archéologiques lancées entre avril et septembre 1982 qui ont permis de localiser une partie du forum[D 5].
Histoire
Histoire de la cité

Les premiers artefacts retrouvés sur le site datent du Ier siècle av. J.-C.[J 1]. La cité d'Aregenua est fondée[G 2] au Ier siècle probablement sous l'ère augustéenne[H 1] et est le siège des Viducasses[H 1]. La ville se développe sous les règnes des empereurs romains Tibère et Claude[E 1]; elle connaît son âge d'or aux IIe et IIIe siècles[E 1]. Les premiers bâtiments publics de style romain apparaissent vers 120-140[H 1]. La ville occupe alors une surface comprise entre 30 ha et 37 ha[G 3], mais très probablement 35 ha pour une population estimée à 5 000 habitants[H 1]. Aregenua bénéficie de certains privilèges qui lui permettent de se développer, exonération de l'impôt foncier dû à Rome (le tributum soli) et octroi du droit latin[H 2]. À cette époque, elle se dote de monuments de spectacles et de thermes; on y construit aussi des domus à l'image de la maison au grand péristyle datant de l'époque de la dynastie des Sévères[G 4]. Au IIIe siècle, la cité change de nom en Civitas Viducassium[K 1].
Un tournant pour la ville est son adhésion à l'empire des Gaules, comme le montre la découverte de deux dédicaces à deux consuls de Postume sur un autel dédié à Mars entre 263 et 267[H 3]. Puis, en 275, lors de la crise du troisième siècle, la ville commence une forte période de déclin[E 1],[G 3], au profit de Bayeux[G 5]. La cité est alors durement touchée mais n'est pas, tout comme à Jublains, munie d'une enceinte, contrairement à d'autres comme Lisieux, Bayeux, Évreux. À partir du milieu du IIIe siècle, plusieurs quartiers de la ville sont tout simplement abandonnés[G 3],[H 4], mais certains artisans semblent toujours présents : mosaïste, tabletier ou encore verriers[H 5]. À la fin du IIIe siècle, aucune nouvelle construction ne semble apparaître d'après les fouilles archéologiques menées dans le secteur[G 6]. Au début du IVe siècle, près de la Maison au Grand Péristyle, des ateliers métallurgiques se créent à la place des maisons[G 6] ; la voirie est rénovée voire développée, une rue traverse alors la Maison au Grand Péristyle[G 7]. La ville perd son statut de capitale de cité, perte qui est attestée par les sources vers 400[H 6].
Entre le Ve et le VIIe siècle, nous ne disposons que de peu d'informations sur la ville[G 8], à l'exception de l'implantation du christianisme comme la découverte de quatre inscriptions funéraires paléochrétiennes peut l'attester[G 8]. Pendant cette période, la ruralisation de la ville semble progresser[G 8].
À l'époque mérovingienne, la ville connaît un renouveau comme le montre la présence de nombreuses tombes du VIIe siècle et du VIIIe siècle[G 8], puis une nouvelle régression pendant le Moyen Âge[E 1], où les habitants s'installent sur un site plus septentrional[J 1]. Même si le site continue d'être habité, il ne devient pas un siège d'évêché, contrairement à Bayeux.
Histoire du forum
Le forum est construit au début du IIe siècle, modifié durant le même siècle, puis dans le premier tiers du IIIe siècle[C 1],[I 1]. C'est toujours au début du IIIe siècle que son décor est enrichi et témoigne de « la période d'apogée que connaît la capitale »[C 2].
Le forum est utilisé comme boucherie dès la fin du IIIe siècle, à la suite du changement politique et administratif : le territoire de la cité des Viducasses est intégré en partie par la cité de Bayeux[C 2].
Redécouverte
XVIe – XIXe siècles
Les premières découvertes sur ce site datent du XVIe siècle avec la mise au jour du marbre de Thorigny[K 2].
Le « champ des Crêtes »[E 2] d'une superficie de 4 000 m2[F 1], situé à proximité du forum, est fouillé à plusieurs reprises : tout d'abord dès le XVIIe siècle dans le sud du village avec la découverte de quelques vestiges antiques et médiévaux[K 1], puis par l'intendant de la généralité de Caen Nicolas-Joseph Foucault en 1703[E 3].
Puis, d'autres fouilles sont menées sur différentes périodes entre 1839 et 1861 notamment par Arcisse de Caumont et Antoine Charma[D 6]. En 1828, C-A Gervais avait exploré la même parcelle que celle de l'intendant Foucault au début du XVIIIe siècle qui a révélé les thermes et le gymnase[K 2]. En février et mars 1840, François Besongnet et Charles Gervais poursuivent les travaux de C-A Gervais en arrivant à la conclusion que le forum se situe dans une autre parcelle du site[K 2]. Arcisse de Caumont arrive sur le site le pour entreprendre de faire les plans des murs déjà dégagés et découvre les trois rangées de gradins de la Curie[K 2]. Les fouilles de la société des antiquaires de Normandie réalisées par Antoine Charma en 1859 concernent des édifices déjà fouillés[E 3],[J 1], mais permettent de dresser des plans précis et détaillent les décorations en marbre utilisées sur le forum[K 3]. Cependant les fouilles d'Antoine Charma amènent à des interprétations erronées car il conclut qu'il s'agit de fresques de thermes et non de décors d'un sénat ou d'une basilique[I 1],[K 3]. Un plan est dessiné par Georges-Aimar Lavalley-Duperroux à cette époque, mais il ne sera redécouvert dans les archives départementales du Calvados qu'en 1991[K 3].
XXe siècle
Dès le début du XXe siècle, Maurice Besnier dans son livre Histoire des fouilles de Vieux tente de localiser l'emplacement du forum d'après les différentes fouilles de la société des antiquaires de Normandie réalisées au siècle précédent[K 4].
En 1972, une nouvelle campagne de fouilles archéologiques débute[K 4]. Deux sondages de deux mètres sur un mètre sont réalisés pour déterminer la stratigraphie du terrain[K 4]. Ces fouilles vont révéler des objets allant du Ier siècle de l'époque des empereurs romains Tibère et Néron jusqu'au milieu du IVe siècle[K 4].
En 1977, Christian Pilet reprend les travaux de Maurice Besnier mais affirme qu'il y a deux groupes de thermes et que le forum se situe ailleurs sur le site[K 5]. En 1987 et 1989, de nombreuses photographies sont prises par avion permettant de mieux révéler l'emplacement des différents murs[K 6]. Enfin, en 1991, le plan de Lavalley-Duperroux est retrouvé dans les archives départementales du Calvados, ce qui permet de mieux interpréter les données dont disposent les archéologues[K 6].
XXIe siècle
Des prospections par méthode électrique tractée sont réalisées en 2005, elles permettent d'obtenir la localisation du forum et la réalisation de trois cartes d'interprétation[K 7].
Le conseil général du Calvados acquiert la parcelle du champ des Crêtes peu avant 2006[F 3], qui devient dès lors une réserve archéologique. De nouvelles fouilles archéologiques organisées par le service archéologique du conseil général du Calvados ont lieu en 2007 et permettent la réalisation d'un plan d'ensemble du forum[J 2],[K 1]. Cette même année, deux phases de recherches portant sur les maisons et l'urbanisme de la cité sont également réalisées[C 3]. La première phase se déroule en juin et juillet 2007 sous forme de sondages qui permettent de réaliser le plan du forum et de déterminer la localisation de la Curie[K 6]. La deuxième phase se déroule à partir de 2008 de manière pluriannuelle[K 8].
Les fouilles de 2007 permettent de révéler une partie de la place centrale du forum à l'aide deux tranchées perpendiculaires révélant des cailloux et des blocs de marbre de Vieux[K 9].
Architecture
Complexe architectural dans la cité

Aregenua est bâtie en utilisant le plan tripartite à l'image de la majorité des cités occidentales de l'Empire romain[J 3]. En effet, la majorité des bâtiments administratifs sont regroupés en formant une sorte de pôle composé de la basilique, de la curie et des autres bâtiments de gestion de la cité[J 3]. Ce pôle se développe au début du IIe siècle et s'embellit à la fin de ce dernier siècle[K 10]. Au IIIe siècle, les différents travaux sont achevés mais un lent déclin architectural commence : à partir de cette période, une boucherie remplace certains édifices publics jusqu'au IVe siècle[K 11]. La boucherie traite principalement des bovins et des porcs[K 12].
En théorie, le forum est situé à la croisée du cardo et du decumanus, mais en réalité sur ce site, un decumanus est bien visible et plusieurs cardinales sont attestés[D 5]. Par ailleurs, le forum se situe sur un coteau orienté vers le sud[D 5]. Il rassemble les fonctions politique, religieuse, judiciaire et commerciale[1].
Le bâtiment au nord-est des thermes du Champ des Crêtes possède des sols en marbre et une salle à abside. La prospection électrique a mis en évidence une place de 85 m sur 50 m munie d'un portique et de boutiques sur le côté méridional. Un édifice, peut-être un temple[D 5], de 27 m sur 14 m a été reconnu. Dès 2005 est émise l'hypothèse qu'avec ces fonctions rassemblées, « organes de la vie civique et religieuse », le forum a été reconnu[F 4]. La présence d'une basilique, lieu de commerce et judiciaire, est aussi soupçonnée[D 5].
La localisation du complexe est un signe de l'histoire de la cité. Le noyau de la colonie est peut-être situé sous ce complexe : les îlots sont plus petits dans cette zone (50 m sur 60 m) alors que les îlots périphériques ont 90 m de côté. Le forum serait resté au même emplacement, et donc ne serait pas au centre géométrique de la cité des Viducasses [F 5].
Description du forum
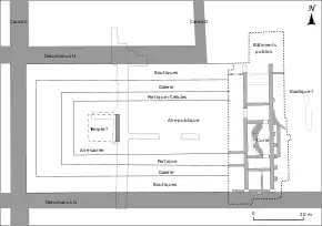
Le forum de Vieux de forme rectangulaire mesure 115 m sur 51,50 m, une dimension modeste que l'on peut comparer à la taille d'une insula[A 1]. Deux decumani permettent d'y accéder par les plus longs côtés[A 1]. Il ne se situe pas au cœur de la ville mais à l'extrémité d'un plateau dominant la vallée de La Guigne entouré par différentes voies de circulation, deux decumani (G et H) et un cardo (C)[K 9].
La place centrale mesure 68 m sur 21 m[A 1]. Elle semble être divisée en deux zones bien distinctes : une zone sacrée à l'ouest avec la présence d'un temple et une zone publique à l'est[K 9]. Cette place est entourée par une série de boutiques d'une dimension standard comprise entre 5,90 m et 6,20 m[K 9]. Des portiques se situent entre la place et les boutiques[K 9].
Au nord de la place centrale, l'archéologie révèle la présence de boutiques et de galeries-portiques qui au cours des siècles vont subir quelques aménagements[A 1]. Le sud de la place comporte également des boutiques qui ne semblent pas subir de transformations majeures[A 1], et on trouve encore plus loin dans cette direction l'édifice thermal découvert au XIXe siècle[K 13]. À l'ouest de la place, des traces laissent penser à des aménagements possibles, mais sans pouvoir en préciser la nature exacte[K 13].
Les portiques et les boutiques se situent sur les plus longs de ses côtés[C 1]. À l'ouest de l'axe nord-sud, deux boutiques de 8 m2 (quatre mètres de longueur sur deux mètres de largeur) sont découvertes lors des fouilles archéologiques de 1982, séparées par un mur en torchis et une cloison en bois[D 5]. L'une des boutiques serait celle d'un vendeur de grains et de vaisselle et l'autre une boutique de poterie qui possède de l'argile prête pour utilisation et un four de potier[D 7]. Devant les deux boutiques, un caniveau et un trottoir sont également déterrés[D 5]. Ces deux boutiques sont détruites à la fin du IIIe siècle[D 5].
Temple et aire sacrée
Dans l'Antiquité, la vie religieuse et civique sont très liées[K 14]. L'archéologie révèle qu'aucune voie ne passe par l'aire sacrée, tout en soutenant la probable existence d'un porticus triplex[K 14]. La dimension du temple, probablement construit dans la deuxième partie du IIe siècle, semble être de 12,5 m sur 11 m avec une épaisseur de mur de 1,25 m en marbre de Vieux pour le mur est[K 14].
Les archéologues évoquent l'hypothèse que ce temple pouvait être dédié à Mercure, à Sucellus, à Vulcain qui sont des divinités vénérées dans la ville ou alors au culte impérial[K 10]. Un fragment d'un autel faisant référence au culte de Vulcain et au culte impérial est révélé lors des fouilles[K 10]. Vulcain est une divinité très appréciée sur le territoire des Viducasses en raison d'abondants gisements;de fer[K 10]. Dans un atelier de marbrier, deux moules du IIIe siècle destinés à produire des images de Mercure et Sucellus au moyen de la coroplathie sont aussi découverts[K 10].
Construction et évolution

.svg.png.webp)
Le forum est composé de plusieurs bâtiments, dont la curie locale construite en deux phases[C 1],[A 2]. La première phase consiste en la construction d'une pièce importante de 12,40 m sur 9,15 m, qui est agrandie à la fin du IIe siècle et enjolivée[I 2] ; cette phase dure jusqu'à la seconde moitié du IIIe siècle[I 3]: la pièce atteint une surface de 12,15 m sur 14,60 m[A 3]. La peinture et le marbre sont refaits à cette période[I 3]. Dans un second temps, la façade Est est déplacée de 1,50 m[I 3], ce qui permet de disposer d'une curie de 14,80 m sur 14,60 m[A 4]. L'ancien mur oriental sert alors à faire un podium recouvert de dalles de calcaire joint par un mortier de tuileau et composé de trois rangs de gradins disposés en arc de cercle[I 3],[A 4],[I 3].
Le bâtiment est entouré par un mur imposant, renforcé par des contreforts dans la partie Est[A 3]. Dans la seconde moitié du IIe siècle, le mur Est est abaissé de niveau et un nouveau mur est construit plus loin[J 4]. Ces aménagements permettent une extension de l'aula (en français : la cour d'un bâtiment) et un agrandissement du bâtiment d'environ trois mètres[J 4]. L'ancien mur Est est réutilisé comme une estrade et des niches sont créées afin d'y mettre des statues de différentes divinités[J 5],[C 1].
La façade occidentale possède un stylobate en pierre de Caen[J 4].
Décoration

Dans les remblais créés par les fouilles du XIXe siècle menées par la Société des antiquaires de Normandie, des fragments d'enduits sont découverts ; ils ont permis de recréer un décor marmoréen, même si la plupart sont trop petits pour être étudiés[I 3]. Ces divers fragments permettent de supposer l'existence d'un opus sectile de différentes couleurs au IIe siècle : un premier sur fond rouge dans le style de la porphyre rouge, un deuxième avec diverses teintes de jaune comme celui de Chemtou, un troisième sur fond rose et un dernier sur fond vert[I 4]. Parmi, les éléments représentés, on peut identifier l'ombre du pied d'un candélabre, le vêtement d'un personnage et la peau d'une panthère[I 5]. La majorité des décors sont toutefois perdus à cause des fouilles du XIXe siècle et des destructions causées par l'abandon du site[J 4]. L'archéologie a permis de révéler le nombre impressionnant de 36 280 fragments postérieurs à la seconde moitié du IIe siècle et principalement attribués à la Curie[J 5].
Les matériaux pour la décoration sont divers et proviennent de tout le monde romain[A 5] : du marbre de l’île grecque de Skyros, de l'Allier en Gaule, de Chemtou dans l'ancienne province romaine d'Afrique (en Tunisie actuelle) et de Phrygie, mais également du schiste bitumeux issu du secteur d'Autun, du calcaire arrivant des Pyrénées[A 5].
« Salle IV »
Au nord de la Curie, la « salle IV » possède également un stylobate en pierre de Caen[J 4]. Sur le haut de la façade, une peinture murale de 12 m de longueur sur 0,66 m de hauteur est présente sur la façade[I 3]. Cette peinture a pour seul objectif d'embellir la pièce le long d'une galerie[I 3]. Il n'en reste que la partie inférieure, la partie supérieure ayant été détruite par un incendie au milieu du IIIe siècle[I 3]. Cette catastrophe a nécessité le réaménagement de la galerie se situant à l'ouest de la curie[I 4],[C 4].
La qualité de la conservation de l'enduit est très variable : certaines parties sont presque imperceptibles principalement dans la partie haute[I 5]. La partie basse est, elle, mieux conservée et l'on peut y distinguer une plinthe beige et kaki, surmontée d'un filet blanc et d'une hauteur variant de 25 cm à 27 cm[I 5]. Au-dessus de la plinthe, des imitations de roche sont présentes dans des compartiments en losange ou en disque[I 6]. Ces roches sont du marbre jaune de Chemtou, du porphyre rouge et un marbre vert[I 6]. La géométrie des formes n'est pas parfaite : les losanges ne sont pas réguliers et les disques ne sont pas toujours centrés[I 6].
Vestibule
Le vestibule se situe à l'ouest du forum et au sud de la curie[K 15]. Il est le lien entre ces deux espaces de la vie publique avec une dimension de 9 m sur 5,90 m[K 15]. La pièce semble avoir subi un affaissement du sol important et l'état du sol est très dégradé[K 15]. Des rénovations importantes avec la pose d'un nouveau sol semblent avoir lieu dans la seconde moitié du IIe siècle[K 15].
A la fin du IIe ou au début du IIIe siècle, le vestibulum se dote d'une entrée monumentale de 4,10 m en marbre local et permet d'accéder à la curie, en forme d'hémicycle et munie de trois rangées de gradins et d'un podium[K 16],[I 3],[J 4]. Le sol de ce dernier est fait à partir d'un béton composé de mortier de cailloux[J 4]. Les murs, méridional et ouest, devaient posséder une fresque, mais sans possibilité de l'interpréter[J 4].
Salle d'archives ?
Au sud, un passage relie la curie à une salle[I 3],[K 17] qui mesure 9 m sur 4 m, avec un sol en mortier rose[K 17]. L'unique accès se faisant avec la curie, les archéologues envisagent l'hypothèse d'un tabularium, pièce où sont déposées les archives publiques[K 17].
Statue
À cause de la découverte du marbre de Thorigny, les archéologues pensent probable qu'une statue de Titus Sennius Solemnis, homme politique important de la cité, ait orné le forum au IIIe siècle[D 5],[E 4].
Notes et références
- Groud-Coudray 2007, p. 13.
- Vieux – Le Champ des Crêtes
- Jardel, Lelièvre et Schutz 2007, p. 2.
- Jardel, Lelièvre et Schutz 2007, p. 4.
- Jardel, Lelièvre et Schutz 2007, p. 5.
- Jardel, Lelièvre et Schutz 2007, p. 6.
- Jardel, Lelièvre et Schutz 2007, p. 7.
- La maison du "Bas de Vieux" une riche habitation romaine du quartier des thermes d'Aregenua (Vieux, Calvados)
- Vipard, p. 7.
- Vipard, p. 10-11.
- Vipard 1998, p. 13.
- Vipard 1998, p. 15-16.
- Vieux-la-Romaine, nouvelles découvertes et reconstitutions
- Vieux antique (Araegenuae, Viducasses)
- Pilet 1984, p. 67.
- Pilet 1984, p. 70.
- Pilet 1984, p. 71.
- Pilet 1984, p. 65.
- Pilet 1984, p. 74.
- Pilet 1984, p. 68.
- Pilet 1984, p. 80.
- La topographie de Vieux - Araegenuae (Calvados), capitale de la cité des Viducasses, d'après les fouilles anciennes et les sondages récents
- Bertin 1977, p. 140.
- Bertin 1977, p. 133.
- Bertin 1977, p. 134.
- Bertin 1977, p. 138.
- Vieux, antique Aregenua : actualité de la recherche
- Delaval 2006, p. 217.
- Delaval 2006, p. 218.
- Delaval 2006, p. 220.
- Delaval 2006, p. 217-218.
- Delaval 2006, p. 219-220.
- Capitales déchues de la Normandie antique. État de la question
- Fichet 2004, p. 148-149.
- Fichet 2004, p. 143.
- Fichet 2004, p. 145.
- Fichet 2004, p. 145-146.
- Fichet 2004, p. 142.
- Fichet 2004, p. 146.
- Fichet 2004, p. 147.
- Fichet 2004, p. 148.
- Un exemple d’échec urbain en Gaule lyonnaise : Aregenua, chef-lieu des Viducasses (Vieux, Calvados)
- Bouet 2006, p. 32.
- Bouet 2006, p. 33.
- Bouet 2006, p. 35.
- Bouet 2006, p. 36.
- Bouet 2006, p. 37.
- Bouet 2006, p. 41-42.
- Imitations de marbres du forum de Vieux (Calvados, France), quelques particularités de la seconde moitié du IIe siècle apr. J.-C.
- Boislève et Jardel 2010, p. 631.
- Boislève et Jardel 2010, p. 631-632.
- Boislève et Jardel 2010, p. 632.
- Boislève et Jardel 2010, p. 632-633.
- Boislève et Jardel 2010, p. 633.
- Boislève et Jardel 2010, p. 634.
- Aménagement et décor de la curie du forum d'Aregenua (Vieux, Calvados)
- Jardel, Boislève et Tendron 2012, p. 92.
- Jardel, Boislève et Tendron 2012, p. 91-92.
- Jardel, Boislève et Tendron 2012, p. 93.
- Jardel, Boislève et Tendron 2012, p. 95.
- Jardel, Boislève et Tendron 2012, p. 96.
- Le forum et la curie d'Aregenua (Vieux, Calvados) : bilan sur les découvertes anciennes et les recherches récentes
- Jardel, Boislève et Mazure 2014, p. 163.
- Jardel, Boislève et Mazure 2014, p. 164.
- Jardel, Boislève et Mazure 2014, p. 165.
- Jardel, Boislève et Mazure 2014, p. 166.
- Jardel, Boislève et Mazure 2014, p. 166-167.
- Jardel, Boislève et Mazure 2014, p. 167.
- Jardel, Boislève et Mazure 2014, p. 167 et 169.
- Jardel, Boislève et Mazure 2014, p. 168.
- Jardel, Boislève et Mazure 2014, p. 171.
- Jardel, Boislève et Mazure 2014, p. 174.
- Jardel, Boislève et Mazure 2014, p. 174-175 et 185.
- Jardel, Boislève et Mazure 2014, p. 185.
- Jardel, Boislève et Mazure 2014, p. 170.
- Jardel, Boislève et Mazure 2014, p. 173.
- Jardel, Boislève et Mazure 2014, p. 175.
- Jardel, Boislève et Mazure 2014, p. 177.
- Jardel, Boislève et Mazure 2014, p. 176.
Annexes
Bibliographie
: document utilisé comme source pour la rédaction de cet article.
Ouvrages et articles généraux ou sur la cité
- Dominique Bertin, « La topographie de Vieux - Araegenuae (Calvados), capitale de la cité des Viducasses, d'après les fouilles anciennes et les sondages récents », Annales de Normandie, nos 27/2, , p. 131-150 (lire en ligne, consulté le ).
. - Pierre Bouet et François Neveux, « Un exemple d’échec urbain en Gaule Lyonnaise : Aregenua, chef-lieu des Viducasses (Vieux, Calvados) », Les Villes normandes au Moyen Âge, , p. 29-44 (lire en ligne, consulté le ).
. - Éric Delaval, « Vieux/Aregenua (Calvados) », Supplément à la Revue archéologique du centre de la France, no 25, , p. 497-500 (ISBN 2-913272-10-X, ISSN 1159-7151, lire en ligne, consulté le ).
- Éric Delaval, « Vieux, antique Aregenua : actualité de la recherche », Revue archéologique, no 1, , p. 215-220 (lire en ligne, consulté le ).
. - Élisabeth Deniaux, « La conquête et l’intégration à l’Empire romain », La Normandie avant les Normands, Rennes, Ouest-France, (ISBN 2737311179).
- François Fichet de Clairefontaine, Eric Delaval, Vincent Hincker et Jacques le Maho, « Capitales déchues de la Normandie antique. État de la question », Capitales éphémères, Supplément à la Revue archéologique du centre de la France, no 25, , p. 141-155 (lire en ligne, consulté le ).
. - Claude Groud-Coudray, La Normandie gallo-romaine, Cully, OREP éditions, , 31 p. (ISBN 978-2-915762-18-1).
. - Christian Pilet, « Vieux antique (Araegenuae, Viducasses) », Revue archéologique de l'ouest, vol. 1, no 1, , p. 63-84 (DOI 10.3406/rao.1984.861, lire en ligne, consulté le ).
. - Service départemental d'archéologie, « Vieux-la-Romaine, nouvelles découvertes et reconstitutions », Archéologia, no 535, , p. 62-67 (ISSN 0570-6270).
. - Pascal Vipard, La maison du "Bas de Vieux" une riche habitation romaine du quartier des thermes d'Aregenua (Vieux, Calvados), Caen, Service départemental d'archéologie du Calvados, , 125 p. (ISBN 2-9506496-1-0).
- Pascal Vipard, La cité d'Aregenua (Vieux, Calvados); chef-lieu des Viducasses. état des connaissances, Château-Gonthier, , 204 p. (ISBN 978-2-913993-05-1).
.
Ouvrages sur le forum
- Julien Boislève et Karine Jardel, « Imitations de marbres du forum de Vieux (Calvados, France), quelques particularités de la seconde moitié du IIe s. ap. J.-C. », Antike Malerei zwischen Lokalstil und Zeitstil,Akten des XI. Internationalen Kolloquiums der AIPMA, , p. 631-637 (lire en ligne, consulté le ).
. - Karine Jardel, Jean-Yves Lelièvre et Grégory Schütz, « Vieux – Le Champ des Crêtes », ADLFI. Archéologie de la France, (lire en ligne, consulté le ).
. - Karine Jardel, Julien Boislève et Graziella Tendron, « Aménagement et décor de la curie du forum d'Aregenua (Vieux, Calvados) », Décor des édifices publics, civils et religieux en Gaule durant l’Antiquité, Association des Publications Chauvinoises, , p. 91-110 (lire en ligne, consulté le ).
. - Karine Jardel, Jean-Yves Lelièvre et Pierre Mazure, « Le forum et la curie d'Aregenua (Vieux, Calvados): Bilan sur les découvertes anciennes et les recherches récentes », Gallia, vol. 71, no 2, , p. 163-188 (lire en ligne, consulté le ).
. - Karine Jardel, Jean-Yves Lelièvre et Pierre Mazure, « Vieux – Le forum », ADLFI. Archéologie de la France, (lire en ligne, consulté le ).
- Karine Jardel, Graziella Tendron et Jean-Yves Lelièvre, « Les décors d’applique de la curie du forum d’Aregenua (Vieux, Calvados) », Décor et architecture en Gaule entre l’Antiquité et le haut Moyen Âge, , p. 451-461 (lire en ligne, consulté le ).
- Aurore Lacroix, « La vaisselle en verre du forum de Vieux (Calvados) », Bulletin de l'Association Française pour l'Archéologie du Verre, , p. 48-52 (lire en ligne, consulté le ).
- Graziella Tendron, Cécile Germain-Vallée et Karine Jardel, « Un atelier de marbrier dans la curie du forum d’Aregenua (Vieux, Calvados) », Décor des édifices publics civils et religieux en Gaule durant l’Antiquité, Ier - IVe siècle : peinture, mosaïque, stuc et décor architectonique, , p. 111-134 (lire en ligne, consulté le ).
Articles connexes
Liens externes
- « Vieux (14) : les fouilles sont terminées », Sabine Daniel, 14 juillet 2016, france3-regions.francetvinfo.fr
- « Fouilles à Vieux-la-Romaine : sous le forum antique… des thermes ! », Louis-Sébastien Jacquel-Blanc, 23 juillet 2014, tendanceouest.com
- « Fouilles de Vieux-la-Romaine : la fin d'une ère », Louis-Sébastien Jacquel-Blanc, 7 septembre 2016
- « Patrimoine. Découvrez l’histoire d’Aregenua, la ville romaine enfouie sous la plaine de Caen », 23 juillet 2017, actu.fr
- « Vieux ou les trésors d'une capitale gallo-romaine », Benoît Lascoux, 16 septembre 2016, ouest-France.fr
- Portail de l’architecture et de l’urbanisme
- Portail de la Rome antique
- Portail de l’archéologie
- Portail de la Normandie