Abbaye de Rivalta
L'Abbaye de Rivalta est une ancienne abbaye cistercienne, située en Italie, dans la commune de Tortone (Piémont, Alexandrie).
Histoire
    
    Fondation
    
Vers la fin du XIIe siècle, un ermite, Ascherio, fonde une petite communauté monastique à Rivalta ; rapidement, Ascherio prend conscience que la stabilité de sa communauté passe par l'affiliation à un ordre plus important. Cette incorporation lui permet aussi d'avoir une légitimité institutionnelle face aux structures ecclésiastiques locales peu enclines à laisser se développer des formes d'érémitisme sans contrôle. Sur les conseils du cardinal Guglielmo, lui-même ancien moine de Chiaravalle, Ascherio choisit de s'affilier à l'abbaye de Lucedio, de l'ordre cistercien[1],[2].
Croissance
    
Comme d'autres monastères cisterciens italiens (notamment Lucedio ou Casanova, l'abbaye est rejointe, à peu de distance, par un petit noyau de proches, notamment des femmes, généralement veuves), accueillies en tant que consœurs spirituelles, quoique laïques. Cette présence hors de l'enceinte monastique permet à l'abbaye d'accroître son influence[3].
Du vivant d'Ascherio (il meurt en 1185), il avait déjà fondé une seconde abbaye, celle d'Acqualunga. Avant sa mort, il convainc cette seconde communauté d’adhérer également à l'ordre cistercien, et Acqualunga s'affilie à Rivalta[4].
Commende et déclin
    
En 1538, le pape Paul III unit la communauté de Rivalta à la congrégation (bénédictine) de l'abbaye du Mont-Cassin ; en pratique, ce sont les moines de San Nicolò del Boschetto (it), à Gênes, qui succèdent aux cisterciens le ; rapidement (au cours du XVIe siècle, l'abbaye devient une église paroissiale ; les Bénédictins l'abandonnent au XVIIe siècle[5].
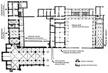
Architecture
    

L'abbaye est demeurée dans un état presque intact.
Le cloître
    

L'église abbatiale
    

L'église est en forme de croix latine à trois nefs et à transept, orientée à l'est ; les nefs sont longues de trois travées. Selon la tradition du plan cistercien, le chœur est entouré de deux chapelles latérales de chaque côté. La particularité de cette abbatiale se trouve dans l'ornementation des piliers, qui diffère pour chacun d'entre eux[5].
Notes et références
    
- Nicole Bouter 2000, Cécile Caby, « Les cisterciens dans l'espace médiéval italien », p. 576.
 - (it) Guido Cariboni, La via migliore : pratiche memorali e dinamiche istituzionali nel liber del capitolo dell'abbazia cistercense di Lucedio, Münster, Lit Verlag (de), coll. « Vita regularis », , 243 p. (ISBN 9783825891619, OCLC 181558459, lire en ligne), p. 62.
 - Nicole Bouter 2000, Cécile Caby, « Les cisterciens dans l'espace médiéval italien », p. 591.
 - (de) Franz J. Felten et Werner Rösener, Norm und Realität : Kontinuität und Wandel der Zisterzienser im Mittelalter, Münster, Lit Verlag (de), coll. « Vita regularis », , 620 p. (ISBN 9783643104083, OCLC 906608092, lire en ligne), p. 421.
 
Voir aussi
    
    Articles connexes
    
Bibliographie
    
- [Nicole Bouter 2000] Nicole Bouter (dir.), Unanimité et diversité cisterciennes : filiations, réseaux, relectures du XIIe au XVIIIe siècle ; actes du Quatrième Colloque International du CERCOR, Université de Saint-Étienne, , 715 p. (ISBN 9782862721774, lire en ligne)
 
- Portail de l’architecture chrétienne
 - Portail du christianisme
 - Portail du monachisme
 - Portail du Piémont
 - Portail du catholicisme