Abbaye d'Arthous
L'abbaye d'Arthous (anciennement appelée abbaye Sainte-Marie d'Arthous) est un ancien monastère fondé vers 1167[2] par l'ordre des chanoines prémontrés. Elle est sise au lieu-dit d'Arthous[1], sur la commune d'Hastingues, aux confins du pays d'Orthe, dans le département français des Landes.

| Abbaye d'Arthous | |
  
    | |
| Présentation | |
|---|---|
| Nom local | (aujourd'hui) Centre départemental du patrimoine | 
| Type | ancienne Abbaye | 
| Rattachement | Ordre des Prémontrés | 
| Début de la construction | XIIe siècle[1] | 
| Fin des travaux | XIVe siècle[1] | 
| Style dominant | Roman tardif | 
| Protection | |
| Géographie | |
| Pays | |
| Région | Nouvelle-Aquitaine | 
| Département | Landes | 
| Ville | Hastingues | 
| Coordonnées | 43° 31′ 38″ nord, 1° 07′ 18″ ouest | 
L'église est classée monument historique le , les bâtiments conventuels le [1]. Ils comptent comme éléments remarquables le chevet et les absidioles, ornés de chapiteaux et modillons sculptés et un intéressant ensemble de bâtiments conventuels d'époque moderne.
Présentation
    
Arthous ou Arthus vient du nom du légendaire roi Arthur[3].
Établie près du Pays basque, l'abbaye Sainte-Marie d'Arthous occupe au Moyen Âge un emplacement stratégique entre les territoires contrôlés par les seigneurs de Navarre, de Béarn et d'Aquitaine. L'extérieur présente un style roman tardif à nef unique, l'église a un chevet tripartite dont se dégage une grande unité dans les motifs qui le décorent : formes géométrique ou entrelacs végétaux, pommes de pin, personnages frustes au visage rond et yeux globuleux.
Les bâtiments conventuels, reconstruits aux XVIIe et XVIIIe siècles, à la suite des destructions des guerres de Religion, forment un intéressant exemple d'architecture canoniale d'époque moderne, avec un imposant logis abbatial et un cloître du second quart du XVIIe siècle supportant des cellules de chanoines.
Historiographie
    
    Sources historiques et témoignages
    
Au moyen-âge, les chanoines réguliers de Prémontré tiennent un nécrologue (ou obituaire), qui conserve la trace des donateurs importants et principaux personnage de l'abbaye. Le nécrologue d'Arthous est perdu, mais deux copies partielles modernes en sont faites : la première a été effectuée par Arnaud Oihénart en 1628 et demeure inédite, mais la seconde est publiée par Antoine Degert dans le bulletin de la Société de Borda en 1924. Un cartulaire (ou chartier) tenu par les religieux de l'abbaye a disparu au XVIe siècle, empêchant la connaissance précise de l'histoire de l'abbaye avant cette période, et notamment sa date de fondation. Les actes postérieurs à cette perte sont conservés par les archives départementales des Landes et des Pyrénées-Atlantiques[4].
Plusieurs témoignages de guerres du XVIe siècle qui mentionnent l'abbaye sont publiés par Nicolas de Bordenave dans son Histoire du Béarn et de Navarre en 1873. Ils racontent la prise du monastère en 1523, pendant les guerres de Religion. La majorité des autres auteurs qui mentionnent le lieu sont des religieux. En 1604, l'archevêque de Paris Pierre de Marca dans son Histoire de Béarn de 1604 décrit un conflit dans lié aux religieux de l'abbaye. Le moine Denis de Sainte-Marthe consacre une notice à Arthous dans l'encyclopédie Gallia Christiana de 1715. En 1734, Charles-Hyacinthe Hugo évoque l'abbaye dans une notice sur les Prémontrés en Gascogne de son histoire de l'ordre, Sacri ordinis præmonstratense. En 1746, le chanoine Louis-Clément de Brugèles évoque la fondation de l'édifice, tout comme Hugues Du Tems à la fin du XVIIIe siècle, mais aucun ne cite de date précise[5].
Historiographie
    
Des historiens béarnais et basques s'intéressent aussi à l'histoire de l'abbaye. En plus de Pierre de Marca, on compte dans cette catégorie Pierre Olhagaray qui dédie un chapitre de son Histoire de Foix, Béarn et Navarre (parue en 1609) à la prise de l'abbaye lors de l'invasion espagnole de 1523. L'érudit gascon Justin Cénac-Moncaut raconte sur deux pages sa visite du monastère dans son Voyage archéologique dans l’ancienne vicomté de Béarn, publié en 1856. J.-F. Bourdeau, en 1861, et Adolphe Joanne, en 1870, évoquent l'abbaye sur quelques lignes. L'archiviste Paul Raymond note la dédicace de l'édifice dans l'Hagiologue du département des Landes qu'il publie en 1836. En 1878 ou 1879, les membres du congrès archéologique de Dax visitent Arthous et prennent la première photographie connue du lieu : le détail de l'abside du chevet de l'abbatiale. En 1890, Eugène Dufourcet, Émile Taillebois et Georges Camiade publient dans Aquitaine monumentale la première véritable monographie sur le monastère, ainsi que trois photographies qui montrent l'état lamentable du bâti. À la fin du XIXe siècle, plusieurs ouvrages évoquant l'abbaye sont publiés : le Pouillé du diocèse d'Aire de Jean-Marie Cazauran (1884) et Les Huguenots dans le Béarn et la Navarre[alpha 1] d'Arnaud Communay (1885)[6].
Au cours du XXe siècle, plusieurs ouvrages d'envergure nationale mentionnent le monastère : Abbayes et prieurés de l’ancienne France de Charles Beaunier (1910) et le Répertoire topo-bibliographique des abbayes et prieurés de Laurent-Henri Cottineau (1939). Plusieurs ouvrages sur l'église paraissent à Dax ou à Bayonne. Antoine Degert publie dans les bulletin de la Société de Borda l'Histoire des évêques de Dax (1900-1902), Le nécrologe d’Arthous (1924) ainsi qu'une notice dans le Dictionnaire d’Histoire et de Géographie Ecclésiastique (1930). Charles Blanc publie plusieurs articles dont l'abbaye centrés sur ou mentionnant l'abbaye, dont L'abbaye d'Arthous (1965 & 1977) et Les revenus de l'abbaye d'Arthous, terres dîmées en 1780-1785 (1973), ce qui pousse le conseil départemental des Landes à s'intéresser à l'abbaye, qui lui est donnée en 1964. On peut également noter les travaux de Joseph Nogaret L'abbaye d'Arthous et le prieuré de Subernoa Robert Dézélus sur Arthous et Hastingues en Gascogne (1972). Les universitaires ne s'intéressent que peu à Arthous, même si Les constructions de l’ordre de Prémontré en France au XVIIe et XVIIIe siècles (1983) de Philippe Bonnet contient une notice sur l'édifice[7].
Moyen-âge
    
L'église abbatiale est fondée après 1167 par l'abbé Guillaume. En 1411, l'abbaye aurait été prise par les habitants d'Hastingues[8].
Époque moderne
    
En 1523, l'abbaye est capturée par les troupes espagnoles, causant des dégâts inconnus au bâti. En 1569, dans le cadre des guerres de Religion, elle est pillée et incendiée par les forces protestantes de Gabriel Ier de Montgommery. C'est lors de ces évènements que sont détruites les archives médiévales dans l'incendie de l'abbatiale et des bâtiments claustraux. Vers 1635, la construction d'une partie des bâtiments conventuels est ordonnée par l'abbé Salvat Gratien de Gardera. Entre 1726 et 1727, un nouveau clocher de l'église abbatiale est construit sur ordre de l’abbé Louis de Montesquiou. À sa mort en 1732, un inventaire des papiers et biens de l'abbaye est effectué, décrivant partiellement l'église et la chapelle. En 1750, un de ses successeurs, Jacques-Marie de Romatet fait construire le portail de l'entrée est et le bâtiment qui lui est attenant. Deux plans sommaires de l'abbaye sont effectués vers 1760 et 1790, année d'un inventaire en vue de sa vente en tant que bien national[8].
Époque contemporaine
    
    Protection
    
L'église a été classée au titre des Monuments historiques le , et les bâtiments conventuels ont été classés le [9].
Site départemental de l'abbaye d’Arthous
    
En 1964, Madame de Vilmorin en fait don au département des Landes qui entreprend en 1966 sa restauration avec l'aide de l'État, notamment sur la partie extérieure de l'église. Une partie des bâtiments sert aujourd'hui d’hébergement aux stagiaires en archéologie, une autre partie abrite un centre de documentation et un dépôt archéologique.
En 1979, le Conseil départemental des Landes a acquis une partie de la collection préhistorique réunie pendant les fouilles archéologiques menées par Robert Arambourou (1914-1989) entre 1957 et 1986 aux abris de Sorde-l'Abbaye, au pied de la falaise du Pastou[10].
L'abbaye est devenue depuis 2003 le site départemental de l'abbaye d’Arthous et le Centre départemental du patrimoine. Bien restaurés, les bâtiments conventuels sont devenus un lieu de recherche et de découverte sur le patrimoine, celui des Landes en particulier. Expositions et stages s'y déroulent tout au long de l’année[11]. L'abbaye d'Arthous abrite le musée départemental d’histoire et d’archéologie présentant une petite partie de ses collections préhistorique, gallo-romaine et médiévale[12].
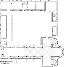
Description
    
    Bâtiments canoniaux
    

Il ne reste quasiment plus rien des bâtiments monastiques originaux mis à part la base du mur ouest et le mur nord, les bâtiments ayant été remaniés aux XVIIe et XVIIIe siècles.
Comme dans toute abbaye médiévale, celle d'Arthous possédait un réfectoire accolé au dortoir. Ce dortoir possédait un escalier appelé « escalier de nuit » qui permettait aux moines de se rendre directement dans l'abbatiale pour les offices nocturnes. On en distingue les traces sur les murs du transept nord, alors que le bâtiment lui-même a disparu.
Le mur nord de l'abbaye révèle une reconstruction des bâtiments canoniaux au XIVe siècle, avec un agrandissement des espaces de vie et peut-être un premier logis abbatial.

Les bâtiments attestent aussi une reconstruction massive dans les années 1630-1650, avec des travaux d'aménagement jusque vers 1750 : logis abbatial, chambres et réfectoire pour les chanoines avec deux galeries de cloître permettant d'accéder à l'église abbatiale, jardin extérieur[13]...
L’église abbatiale
    
L'étude des nombreuses marques de tâcherons et de la géologie des matériaux permettent de distinguer les différentes phases de construction de l'église abbatiale :
- l'absidiole sud, construite en calcaire nummulitique d'extraction locale, semble la première construite et a pu fonctionner comme première église autonome ;
 - l'abside centrale a rapidement complété cette première absidiole, avec pratiquement la même équipe de constructeurs et sculpteurs ;
 - l'absidiole nord a été construite par une nouvelle équipe après une interruption des travaux. Une porte occultée et un oculus bouché dans l'abside principale montrent qu'un bâtiment bas (un premier dortoir ?) se trouvait construit avant 1200 à l'emplacement de cette absidiole nord. Le transept est édifié dans la même phase, sauf les voûtes, ainsi qu'une partie du mur gouttereau nord (portail nord) ;
 - les murs gouttereaux sud et ouest, les voûtes du transept sont établis vers le début du XIIIe siècle, plus d'une génération après le début des travaux. Le monumental portail ouest et les fenêtres hautes de la nef révèlent une influence du style gothique ;
 - plusieurs phases d'aménagements postérieures sont décelables : voûte de la croisée, tentative de voûtement de la nef, aménagements funéraires[13]...
 
L’abside et les absidioles
    
Vu de l'extérieur, le chevet de l'abbatiale frappe par sa décoration. Orientée plein est, l'abside et ses deux absidioles sont décorées par 35 modillons répartis en 5 groupes de 7 représentant, entre autres, les péchés capitaux (luxure, ébriété, avarice, concupiscence...), les vertus (tempérance, chasteté, miséricorde...) et le Salut par l'Église[14].
Plusieurs modillons et chapiteaux présentent un décor original : des chanoines prémontrés sont sculptés avec des instruments de culte destinés à l'évangélisation des laïcs (croix, encensoir, goupillon), alors que d'autres chanoines semblent porter des pierres et modillons destinés à la construction de leur église abbatiale[13].
Au centre, tête de joueur de dolio (petit baril avec un bec).
Chanoines prémontrés
La nef et la façade ouest
    
La nef mesure 32,8 mètres de long pour une largeur de 7,4 mètres.
Cette nef était charpentée à l'origine, renforcée d'arcs-doubleaux en maçonnerie.
Elle conserve aussi dans deux travées les vestiges de deux voûtes aux lourdes ogives prismatiques, posées sur la corniche romane, entreprises au début du XVIe siècle, qui ont entraîné l'écartement des murs gouttereaux : on a alors construit deux gros contreforts au sud pour soutenir ce mur et éviter l'effondrement de toute la nef. Ce projet de voûtes a logiquement été abandonné.
On distingue encore de rares vestiges d'enduit peint qui prouvent que toute la nef était enduite et peinte a fresco : fragment de fausse draperie décorant les parties basses...
À l'ouest, la façade de l'abbatiale a été reculée et rebâtie au XVIIe siècle : on sait cependant qu'elle s'ornait à l'origine d'un portail à tympan historié doté de cinq voussures sculptées d'un zodiaque, d'un calendrier... dont quelques fragments sont conservés. Quatre colonnes avec leurs chapiteaux encore en place rappellent ce monumental décor de qualité.
Une tourelle d'escalier circulaire, dont il reste les fondations, permettait d'accéder à un probable clocher-mur au-dessus de ce portail.
En 1726, par souci d'économie, l'abbé fit couper la nef en deux par un mur doté d'une autre tourelle et d'un clocher-mur. Ce mur a été supprimé voici quelques années, quand la nef a été restaurée.


La croisée et le transept
Les bras de transept ont été voûtés en berceau dès l'époque romane : ils contrebutaient les culs-de-four des absidioles. Des indices montrent que ce transept était doté d'autels et de monuments funéraires.
La croisée a été voûtée au XIVe siècle. Au XVIe siècle, cette partie de l'édifice a été incendiée : les murs rubéfiés et les chapiteaux partiellement brûlés prouvent la destruction du mobilier en bois de l'église (un chœur liturgique ?)
En 1925, la voûte de la croisée a été dynamitée pour raisons de sécurité.
Patrimoine temporel
    
L'abbaye possédait l'ensemble de l'actuelle commune de Hastingues, au moins jusqu'à la fondation de la bastide en 1289. Elle disposait aussi des terres de deux petits prieurés, Pardies à Peyrehorade et Sept-Haux à Cauneille, sur la rive nord des Gaves réunis. Plus au sud, le prieuré souletin de Pagolle, offert aux chanoines en 1178, était au cœur d'une grande exploitation agro-pastorale. Le prieuré-hôpital disparu de Subernoa ou Zubernoa à Hendaye était également administré par les chanoines d'Arthous.
À l'époque moderne, l'ensemble de ces terres fut mis en fermage et le tout fut vendu à des particuliers en 1791.
Pèlerinage à Saint-Jacques
    
L'abbaye d'Arthous, tout comme sa voisine l'abbaye Saint-Jean de Sorde, était sans doute une étape sur la route menant de Bordeaux à Astorga. Cette route antique est utilisée par les pèlerins de Compostelle venant de Paris pour rejoindre Ostabat (voie appelée via Turonensis). Les chanoines réorganisaient le chemin en créant des prieurés facilitant le trajet des jacquets. Conformément à leur vœu de pauvreté, ils s'occupaient plus particulièrement des pèlerins les plus démunis.
Un hôpital est signalé près de l'abbaye d'Arthous en 1327. Les prémontrés administraient aussi l'hôpital de Subernoa à Hendaye. Les prieurés proches des voies jacquaires (Sept-Haux à Cauneille, Pagolle) ont aussi pu avoir une fonction hospitalière ponctuelle.
Le musée départemental d’histoire et d’archéologie
    
Ponctué d’expériences diversifiées (visites virtuelles, manipulations…), l’espace d’exposition propose un voyage dans le temps où émotions et surprises sont au rendez-vous. Bornes interactives, vidéos, objets originaux dont d’exceptionnelles sculptures magdaléniennes de chevaux, font découvrir le patrimoine du Pays d’Orthe depuis la période des hommes préhistoriques installés à Sorde jusqu’aux dernières innovations agricoles.
Ce voyage dans l’histoire du Pays d’Orthe, en compagnie d’un chasseur préhistorique, d’un pèlerin du Moyen Âge ou d’un batelier du XVIIIe siècle, se poursuit à travers un film qui utilise prises de vues aériennes et images de synthèse.
Les collections du musée de l’abbaye d’Arthous sont constituées essentiellement de pièces archéologiques.
La première collection a été acquise par le Conseil général des Landes en 1979 et comprend plus de 20 000 pièces (outillage en pierre et en os, objets d’art mobilier…) issues des fouilles archéologiques effectuées par Robert Arambourou entre 1958 et 1967 dans les abris préhistoriques (dont la grotte Duruthy) de la falaise du Pastou sur la commune de Sorde-l’Abbaye.
-20110616.jpg.webp)
La seconde collection provient des vestiges gallo-romains (mosaïques, céramiques, fragments de marbre) mis au jour lors des fouilles menées par Jean Lauffray entre 1958 et 1966 sur les deux villas antiques des Abbés et de Barat-de-Vin sur la commune de Sorde-l’Abbaye.
Des dépôts de fouilles complètent ces collections.
Le musée possède une barque monoxyle en chêne, de type chaland, datée entre 1543 et 1573 et retrouvée en 1966 au niveau du Bec-du-Gave dans l’Adour par les pêcheurs de Sainte-Marie-de-Gosse.
Sites majeurs d’Aquitaine
    
L’ensemble constitué par le patrimoine archéologique de Sorde, Arthous et Brassempouy permet de couvrir la présence de l'homme dans les Landes de −25 000 ans (Brassempouy), à −12 000 (grottes de Sorde) en poursuivant par les périodes gallo-romaines et médiévales (Sorde et Arthous) jusqu’à nos jours.
Un projet de valorisation touristique de ce patrimoine exceptionnel et de renommée internationale, porté par le Conseil général des Landes, la Communauté de communes du Pays d’Orthe et la Communauté des communes Coteaux et vallées des Luys, a été retenu au titre des Sites Majeurs d’Aquitaine par le Conseil régional, dans le cadre de sa programmation 2011-13.
La mise en synergie de ces équipements appartenant à trois collectivités qui se mobilisent aujourd'hui autour d'une offre touristique cohérente se concrétisera par une programmation et des outils communs, voire par un label scientifique national partagé, dans l’objectif d'accroître leur rayonnement et de développer l’attractivité de ce territoire du sud des Landes.
Notes et références
    
    Notes
    
- [lire en ligne] sur Gallica.
 
Références
    
- « Classement de l'abbaye d'Arthous », notice no IA40000082, sur la plateforme ouverte du patrimoine, base Mérimée, ministère français de la Culture
 - Centre départemental du patrimoine, Abbaye d'Arthous, Hastingues
 - Arthous, panneau de présentation de l'église d'Hastingues, consulté sur site le 23 décembre 2018
 - Abadie 2017 (vol. I), p. 7.
 - Abadie 2017 (vol. I), p. 7 & 9.
 - Abadie 2017 (vol. I), p. 10-13 & 15.
 - Abadie 2017 (vol. I), p. 15-16 & 18.
 - Abadie 2017 (vol. III), p. 12.
 - « Ancien prieuré d'Arthous », notice no PA00083954, sur la plateforme ouverte du patrimoine, base Mérimée, ministère français de la Culture
 - Abbaye d'Arthous : Les collections
 - Jean-Jacques Fénié, « Un été dans les Landes », Sud-Ouest du 23 juillet 2009, p. 12
 - Abbaye d'Arthous : Musée
 - Stéphane Abadie, L'abbaye d'Arthous, Arthous, Conseil départemental des Landes,
 - Nadia Fouché, Le programme sculpté de l'abbaye Sainte-Marie-d'Arthous, Arthous, Conseil départemental des Landes,
 
Voir aussi
    
    Bibliographie
    
- Stéphane d'Abbadie, L'abbaye d'Arthous, vol. I à IV, Conseil départemental des Landes, 
- [Abadie 2017 (vol. I)] Stéphane Abadie, L'abbaye d'Arthous, vol. I : Historiographie et bibliographie, Conseil départemental des Landes, , 80 p. (présentation en ligne, lire en ligne)
 - [Abadie 2017 (vol. II)] Stéphane Abadie, L'abbaye d'Arthous, vol. II : Sources et documents, Conseil départemental des Landes, , 284 p. (présentation en ligne, lire en ligne)
 - [Abadie 2017 (vol. III)] Stéphane Abadie et Médéric Zaïtier, L'abbaye d'Arthous, vol. 3 : Histoire monumentale, Conseil départemental des Landes, , 115 p. (présentation en ligne, lire en ligne)
 - [Abadie 2017 (vol. IV)] Stéphane Abadie, L'abbaye d'Arthous, vol. IV : Patrimoine temporel, Conseil départemental des Landes, , 114 p. (présentation en ligne, lire en ligne)
 
 - [Abadie 2018] Stéphane Abadie, Essai sur l'évolution architecturale de L'abbaye d'Arthous, Conseil départemental des Landes, , 159 p. (présentation en ligne, lire en ligne)
 - Bulletin de la Société de Borda, Dax, Société de Borda, 
- [Abadie 2019 (A)] Stéphane Abadie, Notes sur deux inscriptions tumulaires provenant de l'abbaye d'Arthous, Dax, Bulletin de la Société de Borda, , 8 p. (présentation en ligne, lire en ligne)
 - [Abadie 2019 (B)] Essai sur le patrimoine temporel de l'abbaye d'Arthous (XVIe-XVIIIe), Dax, Bulletin de la Société de Borda, , 10 p. (présentation en ligne, lire en ligne)
 
 - Sources centrées sur le musée et les expositions :
- [Dachary 2006] Morgane Dachary, Exposition à l'Abbaye d'Arthous à Hastingues (Landes) du 7 octobre au 10 décembre 2006. « Les Magdaléniens à Duruthy, Qui étaient-ils ? Comment vivaient-ils ? », , 3 p. (présentation en ligne, lire en ligne)
 - [Simonet 2020 (A)] Aurélien Simonet, Un nouvel espace permanent dit "la salle des trésors" à l'abbaye d'Arthous à Hastingues (Landes), Archéologie des Pyrénées Occidentales et des Landes, , 5 p. (présentation en ligne, lire en ligne)
 - [Simonet 2020 (B)] Aurélien Simonet, Exposition à l'abbaye d'Arthous à Hastingues (Landes) "Au grand galop. Duruthy et l'art des origines", Dax, Bulletin de la Société de Borda, , 4 p. (présentation en ligne, lire en ligne)
 - [Bideran et Domus 2022] Jessica de Bideran et Marieke Doremus, Accompagnement à maîtrise d'usage Abbaye d'Arthous (40). Enrichir l’expérience de visite via la médiation numérique, Pessac, Université Bordeaux-Montaigne, , 31 p. (présentation en ligne, lire en ligne)
 
 
Articles connexes
    
Liens externes
    
- Ressources relatives à l'architecture :
 - Site officiel de l'Abbaye d'Arthous
 - L'Abbaye d'Arthous sur le site du Centre culturel du pays d'Orthe
 
- Portail de l’architecture chrétienne
 - Portail des Landes
 - Portail des monuments historiques français
 - Portail du Moyen Âge central
 
